Modern sanierte Wohnung nahe Donau & Millennium City

Wohnung - Etage, 1200 Wien,Brigittenau


Beschreibung der Immobilie

Modern sanierte Wohnung nahe Donau & Millennium City

Diese wunderschöne, kernsanierte Wohnung in der Wehlistraße ist ein absolutes Schmuckstück! Sie befindet sich im 5. Stock eines gepflegten Mehrparteienhauses mit Lift und besticht durch ihre helle Atmosphäre, die durchdachte Raumaufteilung sowie den neuwertigen Zustand nach einer umfassenden Sanierung.



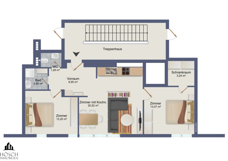
Vom einladenden Vorraum aus gelangt man in alle Räume. Das Wohnzimmer bietet ausreichend Platz für gemütliche Stunden und lässt sich ideal als Herzstück des Wohnens gestalten. Das Schlafzimmer ist ruhig gelegen und sorgt für erholsame Nächte. 



Das Badezimmer verfügt über eine große, ebenerdige Dusche sowie elegante Armaturen. Das WC ist separat angelegt, was zusätzlichen Komfort bietet.



Die Wohnung ist ideal für Singles oder Paare, die ein modernes, hochwertiges Zuhause in zentraler Lage suchen.





Infrastruktur und Anbindung



Die Lage überzeugt durch ihre perfekte Balance zwischen Ruhe und urbanem Leben. In unmittelbarer Nähe befinden sich zahlreiche Einkaufsmöglichkeiten, Restaurants, sowie Freizeitangebote wie das Cineplexx und der Holmes Place Fitnessclub in der Millennium City. Auch Naturliebhaber kommen auf ihre Kosten: Dank der unmittelbaren Nähe zur Donau, ist auch für Entspannung am Wasser gesorgt!



Die öffentliche Verkehrsanbindung ist ausgezeichnet: Die U6, der Bahnhof Handelskai sowie mehrere Bus- und Straßenbahnlinien (5A, 11A, 11B, 30, 31, 33) sind in wenigen Gehminuten erreichbar. Auch mit dem Auto besteht durch die Nähe zur Donauuferautobahn eine gute Anbindung an das überregionale Straßennetz.





HINWEIS: 



Die gegenständliche Wohnung befindet sich derzeit in Sanierung. Die beigefügten Fotos zeigen eine bereits sanierte und veräußerte Wohnung im selben Gebäude und dienen zur Veranschaulichung des vorgesehenen Sanierungsstandards.





Kaufpreis: € 329.000,--

Erfolgshonorar: 3 % des Kaufpreises zzgl. 20 % USt.



Für Rückfragen oder zur Vereinbarung eines Besichtigungstermins steht Ihnen

Frau Cheyenne Dalsasso gerne unter +43 676 467 77 39 zur Verfügung.


Der Vermittler ist als Doppelmakler tätig.

Infrastruktur / Entfernungen

Gesundheit
Arzt <500m
Apotheke <500m
Klinik <500m
Krankenhaus <1.000m

Kinder & Schulen
Schule <500m
Kindergarten <500m
Universität <1.000m
Höhere Schule <1.500m

Nahversorgung
Supermarkt <500m
Bäckerei <500m
Einkaufszentrum <500m

Sonstige
Geldautomat <500m
Bank <500m
Post <1.000m
Polizei <500m

Verkehr
Bus <500m
U-Bahn <500m
Straßenbahn <500m
Bahnhof <500m
Autobahnanschluss <1.000m

Angaben Entfernung Luftlinie / Quelle: OpenStreetMap

Eckdaten Objektnr. 7398/1264

Art: Wohnung - Etage
Land: Österreich
Baujahr: 1971
Zustand: Gepflegt
Alter: Neubau
Kaufpreis: 329.000,00
Provision: 3% des Kaufpreises zzgl. 20% USt.
Betriebskosten: 135,80 €
Heizkosten: 79,08 €
MwSt Gesamt: 27,52 €
Wohnfläche: 60,28 m²
Zimmer: 3
Bäder: 1
WC: 1
Heizwärmebedarf:  C  79,29 kWh/m²a
fGEE:  D  1,84
Immobilie merken Exposé

Ausstattung

Zentralheizung, Personenaufzug


Immobilie anfragen


Ihre persönliche Beratung

Hösch Immobilien GmbH

David-Gabriel Hösch

Hösch Immobilien GmbH

T +43 676 4677739