Mitgestalten statt Kompromisse: Sanierte Dachgeschosswohnung in Top-Lage

Wohnung , 1070 Wien


Beschreibung der Immobilie

Mitgestalten statt Kompromisse: Sanierte Dachgeschosswohnung in Top-Lage

Aus Dachatelier werden Traum-Dachgeschosswohnungen



Jetzt nach individuellen Vorstellungen mitgestalten!
Bei einer frühen Entscheidung können persönliche Wünsche direkt in den Sanierungsprozess einfließen.



Über das Projekt



Im Herzen des 7. Bezirks bietet sich eine seltene Chance: Ein ehemaliges Dachatelier wird zu hochwertigen Dachgeschosswohnungen verwandelt – stilvoll, lichtdurchflutet und mit Wiener Weitblick. Die Einheiten werden bis zur Rohdecke und zur Brandschutzebene fachgerecht entkernt; sämtliche Trennwände, Bodenaufbauten, Elektro- sowie HKLS-Installationen, Beläge und Innentüren werden neu hergestellt. Wer schnell ist, kann noch bei Details mitentscheiden – und so sein Zuhause aktiv mitgestalten.



Zwischen Mariahilfer Straße und Neubaugasse – in der Westbahnstraße – wohnen Sie im lebendigsten Neubau-Grätzl: vieles zu Fuß, der Rest top angebunden (Westbahnhof mit U3/U6/S-Bahn, U6-Burggasse–Stadthalle). Stadthalle, Lugner City, Shops, Cafés und Alltagsversorgung liegen um die Ecke; Parks wie Josef-Strauß-Park und Esterházypark sorgen für Grün in Gehweite.



Highlights auf einen Blick



- DG-Wohnungen mit Weitblick

- Kernsanierung inkl. neuer Elektro & HKLS

- Grundriss- & Ausstattungs-Mitgestaltung möglich (je nach Baufortschritt)

- Urbanes Umfeld, kurze Wege, starke ÖV-Anbindung

- Naherholung: mehrere Parks in wenigen Minuten

Über die Wohnung



Diese Wohnung befindet sich derzeit in umfassender Sanierung und wird schon bald in neuem Glanz erstrahlen – modern, hell und mit viel Liebe zum Detail gestaltet. Das Ergebnis ist ein Zuhause in dem man sich vom ersten Moment an wohlfühlt.



Über den zentralen, einladenden Gang erschließen sich drei separat begehbare Zimmer, die sich vielseitig nutzen lassen – als gemütliches Schlafzimmer, inspirierendes Homeoffice oder liebevoll eingerichtetes Kinderzimmer. 



Abgerundet wird dieser Bereich durch ein stilvolles Badezimmer mit Badewanne und WC sowie ein zweites, modern ausgestattetes Bad mit Dusche. Ein separates WC sorgt für zusätzlichen Komfort, während ein praktischer Abstellraum für ein aufgeräumtes Wohngefühl sorgt.



Das Herzstück der Wohnung bildet jedoch die großzügige Wohnküche mit rund 45 m², flankiert von einer über 6 m² großen Speis – ein Raum, der zum Mittelpunkt des Lebens wird. Hier verbinden sich Kochen, Genießen und Beisammensein auf natürliche Weise. 



Ein weiteres Highlight ist der Pool am Dach, der allen Hausbewohnern zur Verfügung steht. Von hier eröffnet sich ein atemberaubender Rundumblick über Wien – vom ersten Sonnenstrahl bis zum goldenen Abendlicht wird jeder Moment zum Erlebnis.



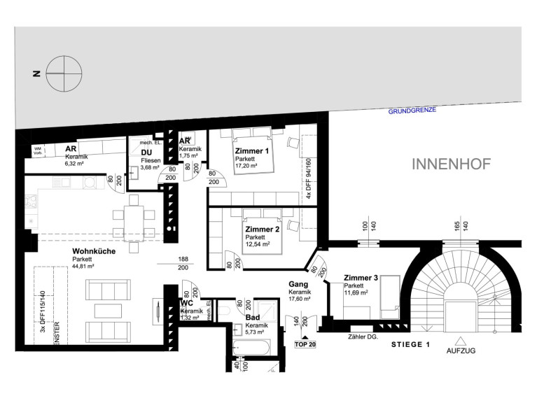
Die Raumaufteilung im Detail



- Offener Wohnbereich mit ca. 44,81 m²

- Speis mit ca. 6,32 m²

- Zimmer 1 mit ca. 17,20 m²

- Zimmer 2 mit ca. 12,54 m²

- Zimmer 3 mit ca. 11,69 m² 

- Badezimmer mit Badewanne und WC mit 5,73m² 

- Badezimmer mit Dusche mit 3,68m² 

- Vorraum mit ca. 17,60 m²

- Separates WC mit 1,32 m² 

- Abstellraum mit 1,75 m² 





Aufgrund der Nachweispflicht gegenüber dem Eigentümer können nur schriftliche Anfragen mit vollständigen Kontaktdaten (Name, Anschrift, Tel.-Nr., E-Mail) beantwortet werden.



Irrtum und Änderungen vorbehalten. Oben angeführte Angaben basieren auf Informationen und Unterlagen des Eigentümers und sind unsererseits ohne Gewähr.



Sämtliche Visualisierungen verstehen sich als Möblierungsvorschläge. Sämtliche m2 verstehen sich als ca. Angaben. 

Noch nichts gefunden? Wir informieren Sie über geeignete Immobilienangebote noch vor allen anderen.
Legen Sie jetzt Ihren individuellen Suchagenten unter folgendem Link an. Wir schicken Ihnen passende Immobilien exklusiv vorab zu.

Suchagent anlegen - https://avana-real-estate.service.immo/registrieren/de


Wir weisen darauf hin, dass zwischen dem Vermittler und dem zu vermittelnden Dritten ein familiäres oder wirtschaftliches Naheverhältnis besteht.


Der Vermittler ist als Doppelmakler tätig.

Infrastruktur / Entfernungen

Gesundheit
Arzt <500m
Apotheke <500m
Klinik <500m
Krankenhaus <1.500m

Kinder & Schulen
Schule <500m
Kindergarten <500m
Universität <500m
Höhere Schule <500m

Nahversorgung
Supermarkt <500m
Bäckerei <500m
Einkaufszentrum <1.000m

Sonstige
Geldautomat <500m
Bank <500m
Post <500m
Polizei <500m

Verkehr
Bus <500m
U-Bahn <500m
Straßenbahn <500m
Bahnhof <500m
Autobahnanschluss <5.000m

Angaben Entfernung Luftlinie / Quelle: OpenStreetMap

Eckdaten Objektnr. 6729/841

Art: Wohnung
Land: Österreich
Baujahr: 1908
Kaufpreis: 979.000,00
Provision: 3% des Kaufpreises zzgl. 20% USt.
Wohnfläche: 122,64 m²
Zimmer: 4
Bäder: 2
WC: 1
Heizwärmebedarf:  D  124,50 kWh/m²a
fGEE:  G  5,36
Immobilie merken Exposé

Ausstattung

Fliesen, Parkett, Gas, Fußbodenheizung, Personenaufzug


Immobilie anfragen


Ihre persönliche Beratung

Avana Real Estate GmbH

Avana Real Estate GmbH

Avana Real Estate GmbH

T +43 1 934 60 48