2-Zimmer Gartenwohnung - Erstbezug!

Wohnung , 1230 Wien


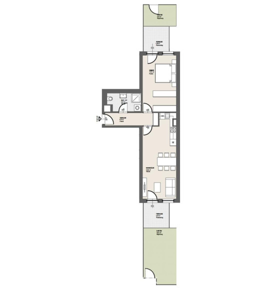
Beschreibung der Immobilie

2-Zimmer Gartenwohnung - Erstbezug!

Kompakt und doch großzügig! Eine Gartenwohnung mit Extras!


Top 3 im EG:



Für 1-2 Personen die gerne ein wenig eigenes Grün vor dem Fenster haben!

Schöne Ausstattung:


- Weitzer Parkettboden Eiche matt

- Bad mit Dusche und WC, modern mit großen Fliesen und schönen Armaturen, Waschmaschinenanschluss

- Schlafzimmer mit eigener Terrasse und kleinem Garten

- In der Wohnküche (alle Anschlüsse vorhanden) ist der Raum für Esstisch als auch für eine gemütliche Wohnecke

vorhanden.

- Und im Sommer öffnet man die Terrassentüre und erweitert den Wohnraum zum Garten!



Ein Kellerabteil gehört auch dazu. Selbstverständlich gibt es Kinderwagen- und Fahrradräume und ein Tiefgaragenplatz kann nach Verfügbarkeit auch dazu gekauft werden.



Sollte genau diese Wohnung nicht perfekt zu Ihnen passen, fragen Sie mich, es gibt noch viele weitere Angebote in diesem Projekt!

Ideal auch als Anlageobjekt. Die Wohnung lässt sich schnell und rentabel vermieten. Auf Wunsch lasse ich Ihnen gerne auch den Anlegerpreis zukommen!



LAGE


Liesing entwickelt sich seit Jahren zu einem der gefragtesten Wohn-Bezirke Wiens. Kein Wunder: Hier wird beste öffentliche Anbindung, viele Grünflächen, tolle Infrastruktur und spannende neue Wohnhäuser zu einer idealen Wohlfühlsymbiose – einfach perfekt!



Verschiedene Nahversorger sind in unmittelbarer Nähe zu finden. Auch Schulen und Kinderbetreuung ist nicht weit und wenn Sie einmal nicht selbst kochen wollen, so finden Sie verschiedene Gastronomieangebote auch fußläufig.



VERKEHR


In kurzer Zeit erreichen Sie die Südautobahn, bzw. die S1 oder auch die Tangente. Öffentlicher Verkehr, ganz in der Nähe:

U6 Perfektastraße

Badner Bahn Schönbrunner Allee

Buslinien 64A und 61A



VERTRAGSABWICKLUNG


Die vertragliche und treuhändige Abwicklung erfolgt ausschließlich durch die Rechtsanwaltskanzlei DDr. Wolfgang Doppelbauer, 4600 Wels, Rainerstraße 16.

Rechtsanwaltskosten für Vertrag, Treuhandschaft, Wohnungseigentumsbegründung und Verbücherung netto 1,35% des Kaufpreises + 20% Umsatzsteuer und Barauslagen.

Notariatskosten der Unterschriftenbeglaubigung nach Notariatstarifgesetz und geringe Gebühren.

Allfällige Finanzierungskosten bei Fremdfinanzierung (Kreditkosten, Beglaubigungskosten Pfandurkunde, Pfandrechtseintragung Grundbuchgebühr 1,2% der Summe, Kosten Treuhandschaft)



ALLGEMEINES


Wir ersuchen Sie um Verständnis, dass wir von Ihnen vor der Zusendung des Exposés die Bestätigung des sofortigen Tätigwerdens sowie die Aufklärung des Rücktrittsrechtes gemäß FAGG (Fern- und Auswärtsgeschäfte-Gesetz) benötigen.



Die Angaben beruhen auf Informationen der Eigentümerin und/oder Dritter und sind daher ohne Gewähr. Änderungen vorbehalten!


Wir weisen darauf hin, dass zwischen dem Vermittler und dem zu vermittelnden Dritten ein familiäres oder wirtschaftliches Naheverhältnis besteht.


Der Vermittler ist als Doppelmakler tätig.

Infrastruktur / Entfernungen

Gesundheit
Arzt <500m
Apotheke <1.000m
Klinik <2.000m
Krankenhaus <2.000m

Kinder & Schulen
Schule <1.000m
Kindergarten <500m
Universität <5.000m
Höhere Schule <5.000m

Nahversorgung
Supermarkt <500m
Bäckerei <1.500m
Einkaufszentrum <1.000m

Sonstige
Geldautomat <500m
Bank <1.500m
Post <1.500m
Polizei <1.500m

Verkehr
Bus <500m
U-Bahn <1.000m
Straßenbahn <3.000m
Bahnhof <500m
Autobahnanschluss <1.000m

Angaben Entfernung Luftlinie / Quelle: OpenStreetMap

Eckdaten Objektnr. 1609/42285

Art: Wohnung
Land: Österreich
Baujahr: 2024
Zustand: Erstbezug
Kaufpreis: 329.100,00
Provision: 3% des Kaufpreises zzgl. 20% USt.
Betriebskosten: 93,00 €
MwSt Gesamt: 9,30 €
Wohnfläche: 52,44 m²
Zimmer: 2
Bäder: 1
WC: 1
Terrassen: 2
Garten: 22,34 m²
Keller: 0,70 m²
Heizwärmebedarf:  B  34,00 kWh/m²a
fGEE:  A  0,77
Immobilie merken Exposé

Ausstattung

Zentralheizung, Personenaufzug


Immobilie anfragen


Ihre persönliche Beratung

Mag. Ursula Rapottnig Immobilien

Mag. Ursula Rapottnig

RE/MAX First - REM Immobilienmakler Gmbh & Co KG

H +43 664 151 30 55