Büro mit 154 m² im UKH Linz – ideal für medizinische und soziale Einrichtungen

Büro / Praxis , 4020 Linz


Beschreibung der Immobilie

Büro mit 154 m² im UKH Linz – ideal für medizinische und soziale Einrichtungen

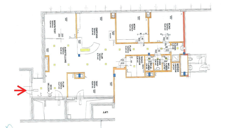
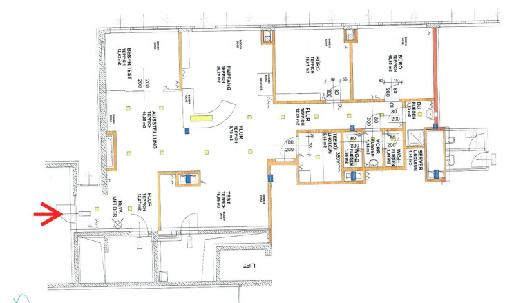
Zur Vermietung gelangt eine großzügige Bürofläche mit rund 154 m² Nutzfläche im 1. Obergeschoss des Unfallkrankenhauses Linz, die Fläche ist über eine repräsentative Treppe erreichbar. Die Räume sind funktional und vielseitig nutzbar und eignen sich besonders für Unternehmen oder Einrichtungen aus dem medizinischen oder sozialen Bereich.





Raumaufteilung & Ausstattung



  • Empfangsbereich
  • Besprechungsraum
  • offener Arbeitsbereich
  • zwei abgeschlossene Büroräume
  • Teeküche
  • Sanitäranlagen mit WC und Dusche
  • Helle, flexibel gestaltbare Räume mit vielseitigen Nutzungsmöglichkeiten




Besonderheiten



  • Direkte Anbindung an die Klinik – perfekt für Synergien im medizinischen und sozialen Umfeld
  • Liftanbindung direkt von der Tiefgarage zum Lagerraum – ideal für Anlieferungen oder Materialtransporte
  • Beheizung über Fernwärme
  • Tiefgaragenparkplätze im UKH können nach Verfügbarkeit angemietet werden




Lage



Das Büro befindet sich in der Garnisonstraße in Linz, im Bauteil 3 des Unfallkrankenhaus. Diese Lage bietet nicht nur eine ausgezeichnete Erreichbarkeit für Mitarbeiter und Besucher, sondern auch eine optimale Anbindung an das öffentliche Verkehrsnetz sowie das regionale Straßennetz.





Mietkonditionen



Das Büro ist sofort verfügbar, die Mietdauer ist zu vereinbaren.





Fazit



Die Bürofläche überzeugt durch ihre repräsentative Lage im Unfallkrankenhaus Linz, eine flexible Raumgestaltung sowie ideale Voraussetzungen für medizinische, therapeutische oder soziale Nutzungen. Ein professionelles Arbeitsumfeld mit optimaler Infrastruktur und hervorragender Erreichbarkeit.







Für Fragen zu dem Objekt oder für einen unverbindlichen Besichtigungstermin stehen wir gerne zu Verfügung.

Bei Interesse freuen wir uns auf Ihre Anfrage !



Ihr SPERER Immobilien Team 

Stefan Pichler | 0676 4630535 | s.pichler@sperer-group.com


Wir weisen darauf hin, dass zwischen dem Vermittler und dem zu vermittelnden Dritten ein familiäres oder wirtschaftliches Naheverhältnis besteht.


Der Vermittler ist als Doppelmakler tätig.

Infrastruktur / Entfernungen

Gesundheit
Arzt <500m
Apotheke <1.000m
Klinik <1.500m
Krankenhaus <500m

Kinder & Schulen
Kindergarten <500m
Schule <500m
Universität <500m
Höhere Schule <1.000m

Nahversorgung
Supermarkt <500m
Bäckerei <500m
Einkaufszentrum <1.500m

Sonstige
Bank <500m
Geldautomat <500m
Post <1.500m
Polizei <500m

Verkehr
Bus <500m
Straßenbahn <1.500m
Bahnhof <500m
Autobahnanschluss <500m
Flughafen <2.500m

Angaben Entfernung Luftlinie / Quelle: OpenStreetMap

Eckdaten Objektnr. 449

Art: Büro / Praxis
Land: Österreich
Baujahr: 2005
Zustand: Neuwertig
Kaltmiete (netto): 2.022,40 €
Kaltmiete: 2.643,20 €
Miete / m²: 13,13 €
Provision: 3 Bruttomonatsmieten zzgl. 20% USt.
Betriebskosten: 620,80 €
MwSt Gesamt: 528,64 €
Nutzfläche: 154,00 m²
Heizwärmebedarf:  B  37,50 kWh/m²a
fGEE:  B  0,92
Immobilie merken Exposé

Ausstattung

Fernwärme


Immobilie anfragen


Ihre persönliche Beratung

SPERER Immobilien GmbH

Ing. Stefan Pichler

Axia Immobilien GmbH - TESTACCOUNT

T +43 7242 306030

H +43 676 4630535