Salzburg: Ideale Anlage-Garconniére in Ruhelage

Wohnung , 5020 Salzburg


Die Garconniere befindet sich im beliebten und gepflegten Stadtteil Gneis, einer der begehrtesten Wohngegenden im Süden der Stadt Salzburg. Diese Lage überzeugt durch ihre ruhige, grüne Umgebung und gleichzeitig hervorragende Anbindung an das Stadtzentrum – eine seltene Kombination, die sowohl Anleger:innen als auch Mieter:innen zu schätzen wissen. Gneis ist geprägt von einer aufgelockerten, wohnfreundlichen Bebauung, viel Grünraum und einem harmonischen Ortsbild. Zahlreiche Spazier- und Radwege – etwa entlang des Almkanals oder rund um den Leopoldskroner Weiher – bieten ideale Möglichkeiten zur Erholung im Freien. Der nahegelegene Hans-Donnenberg-Park ist ein beliebtes Naherholungsgebiet und unterstreicht die besondere Lebensqualität dieser Wohnlage. Die Infrastruktur ist hervorragend ausgebaut: In unmittelbarer Umgebung befinden sich Supermärkte, Bäckereien, Cafés, Apotheken und Ärzte, ebenso wie Bushaltestellen, von denen aus das Stadtzentrum in etwa 10–15 Minuten erreichbar ist. Für den Individualverkehr bietet die Autobahnauffahrt Salzburg-Süd (A10) eine schnelle Verbindung in Richtung Wien, München und in den Süden über Villach. Für Senioren bietet Gneis eine ruhige und sichere Wohnumgebung mit kurzen Wegen zu Nahversorgern und Freizeitmöglichkeiten. Singles schätzen die grüne, aber stadtnahe Lage, die Lebensqualität und Privatsphäre zugleich ermöglicht. Auch für Investoren ist Gneis eine nachhaltig wertbeständige Lage, die aufgrund der hohen Nachfrage nach kleinen, gut gelegenen Wohnungen in Salzburg langfristig attraktive und beständige Renditechancen bietet. Die Kombination aus idyllischer Umgebung, bester Anbindung und hochwertiger Wohnqualität macht Gneis zu einem der gefragtesten Stadtteile Salzburgs – ideal für alle, die urbanes Leben im Grünen suchen oder in eine zukunftssichere Immobilie investieren möchten.

Beschreibung der Immobilie

Salzburg: Ideale Anlage-Garconniére in Ruhelage

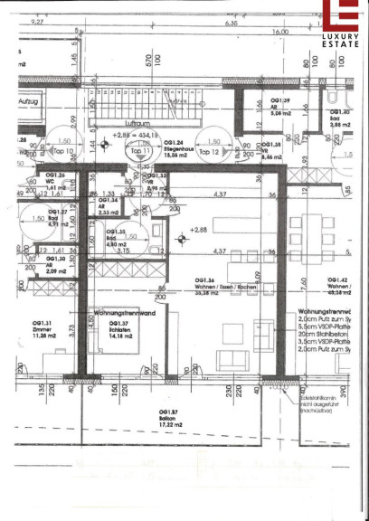
In diesem qualitativ hochwertig errichteten, Stadthaus befindet sich im 1. OG. eine großzügige, modern ausgestattete 59,67 m² große Wohneinheit, die mittelfristig vermietet ist. Die klare strukturierte Fassade des Hauses steht auch von außen für modernes und individuelles Wohnen. Im Eingangsbereich finden Sie im Vorzimmer eine großzügige Garderobe und die Zugänge in den großzügigen und von Licht durchfluteten Essbereich und den Zugang zum Bad/WC mit Duschbadewanne, 



Ein breiter Lift sorgt für barrierefreies Erreichen Ihrer Etage. Der nach Osten ausgerichtete, individuell einzurichtende Wohn- Essbereich und das Schlafzimmer haben schallisolierte 3fach verglaste, große Fenster und verfügen über sämtliche Anschlüsse (Kabel, Internet). Die Wohnung überzeugt durch ihr gut durchdachtes Raumkonzept und verbindet Funktionalität mit höchstem Wohnkomfort. Neben der großzügigen, offenen Küche mit Wohn- Essbereich und einen extra Abstellraum gibt es noch ein schönes Schlafzimmer, 1 Badezimmer mit WC. Ein Dauer-Garagenplatz ist inkludiert, weiters stehen Ihnen in den drei nahen Tiefgaragen Plätze bei Interesse zur Verfügung. Weiters gibt es in der Gegend ausreichend Autoabstellplätze. Alle Einrichtungsgegenstände mit Ausnahme des Küchenblocks sind teilweise im Preis inkludiert.



Bei Bedarf ist der Kauf einer weiteren Wohnung ähnlicher Größe, Lage und Ausstattung im gleichen Objekt möglich.



Diese moderne, unkomplizierte Wohneinheit ist ein ideales Investment und derzeit mittelfristig gut vermietet. Nähere Details auf Anfrage. Wir zeigen Ihnen gerne diese Garconniere !




Hinweis gemäß Energieausweisvorlagegesetz: Ein Energieausweis wurde vom Eigentümer bzw. Verkäufer, nach unserer Aufklärung über die generell geltende Vorlagepflicht, sowie Aufforderung zu seiner Erstellung noch nicht vorgelegt. Daher gilt zumindest eine dem Alter und der Art des Gebäudes entsprechende Gesamtenergieeffizienz als vereinbart. Wir übernehmen keinerlei Gewähr oder Haftung für die tatsächliche Energieeffizienz der angebotenen Immobilie.

Eckdaten Objektnr. 171/211020252

Art: Wohnung
Land: Österreich
Baujahr: 2012
Zustand: Erstbezug
Alter: Neubau
Kaufpreis: 599.000,00
Wohnfläche: 59,67 m²
Zimmer: 2
Bäder: 1
Balkone: 1
Immobilie merken Exposé

Ausstattung

Einbauküche, Personenaufzug, Südbalkon, Badewanne, Tiefgarage


Immobilie anfragen


Ihre persönliche Beratung

Immobilien Lenz Luxury Estate, EV Immobilien GmbH

Hansjörg Lenz

Immobilien Lenz Luxury Estate, EV Immobilien GmbH

T +43 676 84 70 58 200