Grund für Mehrfamilienhaus

Grundstück - Baugrund Eigenheim, 1220 Wien


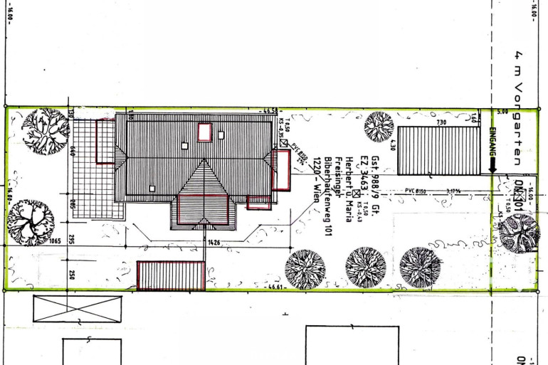
Beschreibung der Immobilie

Grund für Mehrfamilienhaus

Grund für Mehrfamilienhaus

Bauträgergrundstück

Das Grundstück befindet sich im Nahbereich des Oberen Mühlwassers und die Gegend ist geprägt von Einfamilienhäusern und den Erholungsflächen in der Lobau. Einkaufsmöglichkeiten und andere Einrichtungen sind im Nahbereich vorhanden. Durch die Busse 93A, 94A und N91 ist das Zentrum von Wien leicht erreichbar. Nach Abbruch des Bestandes könnte ein Mehrfamilienhaus oder attraktive Wohnungen errichtet werden. Das Grundstück ist komplett aufgeschlossen und es fallen keine zusätzlichen Kosten an.


Sind Sie neugierig geworden?
Dann vereinbaren Sie einfach einen Besichtigungstermin unter 0660-2061 480

Eckdaten:

Grundstück: ca.746m2
Widmung: W1, o, gk (Wohnen, offen oder gekoppelt)
Gebäudehöhe: 6,5m + Dachaufbau 4,5m


Maklerhonorar 3% plus 20% Ust
Wir bitten um Verständnis, dass auf Grund der Nachweispflicht gegenüber dem Eigentümer nur Anfragen mit vollständigen Kontaktdaten (Name, Adresse, Tel., Email) beantwortet werden können. Es wird darauf hingewiesen, dass die angeführten Daten auf Informationen des Eigentümers oder Dritter (z.B. Behörden) beruhen, sodass für die Richtigkeit keine Gewähr übernommen werden kann.

Der Vermittler ist als Doppelmakler tätig.

Infrastruktur / Entfernungen

Gesundheit
Arzt <1.000m
Apotheke <2.000m
Klinik <2.000m
Krankenhaus <2.000m

Kinder & Schulen
Schule <1.500m
Kindergarten <1.500m
Universität <3.000m
Höhere Schule <3.500m

Nahversorgung
Supermarkt <500m
Bäckerei <2.000m
Einkaufszentrum <4.000m

Sonstige
Geldautomat <2.000m
Bank <2.000m
Post <2.000m
Polizei <2.000m

Verkehr
Bus <500m
U-Bahn <2.000m
Straßenbahn <2.000m
Bahnhof <2.000m
Autobahnanschluss <2.500m

Angaben Entfernung Luftlinie / Quelle: OpenStreetMap

Eckdaten Objektnr. 1609/46508

Art: Grundstück - Baugrund Eigenheim
Land: Österreich
Kaufpreis: 699.000,00
Provision: 3% des Kaufpreises zzgl. 20% USt.
Grundstücksfl.: 746,00 m²
Immobilie merken Exposé

Ausstattung

Kabel/Satelliten-TV


Immobilie anfragen


Ihre persönliche Beratung

Firma Mag. Martin F. Kny

Mag. Martin F. Kny

RE/MAX First - REM Immobilienmakler Gmbh & Co KG

H +43 660 2061480