Mitten in Ottakring! Ruhelage - toller Grundriss - Gestaltungspotenzial!
Wohnung
,
1160
Wien
Beschreibung der Immobilie
Mitten in Ottakring! Ruhelage - toller Grundriss - Gestaltungspotenzial!
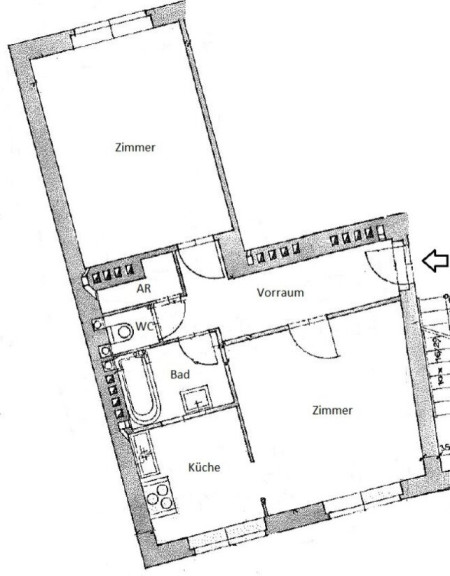
In einer ruhigen Seitengasse liegend, gelangt diese sanierungsbedürftige, rund 56m² große 2 Zimmerwohnung zum Verkauf. Sie liegt im 4.Stock (ohne Lift) eines im Jahre 1953 erbauten Hauses und bietet tolles Gestaltungspotenzial! Alle Räumlichkeiten sind idealer Weise separat über den Vorraum zu betreten. Das Herzstück der Wohnung ist das Wohnzimmer, wo sich auch der Zugang zu der Küche mit Fenster befindet. Das Schlafzimmer hat eine gute Größe und bietet genügend Platz für ein Bett und Stauraum. Das Badezimmer mit Oberlichte ist mit einer Badewanne und einem Handwaschbecken versehen worden. Die separate Toilette, der praktische Abstellraum sowie der Vorraum komplettieren das Immobilienangebot.
Wir weisen darauf hin, dass bei einem Erwerb zu Vermietungszwecken die erzielbare Miete dem WGG (Wohnungsgemeinnützigkeitsgesetz) unterliegt.
Aufteilung:
- Vorzimmer
- Wohnzimmer
- Zimmer
- Badezimmer mit Badewanne
- Abstellraum
- Küchenraum
- separate Toilette
Wir weisen darauf hin, dass zwischen dem Vermittler und dem zu vermittelnden Dritten ein familiäres oder wirtschaftliches Naheverhältnis besteht.
Der Vermittler ist als Doppelmakler tätig.
Infrastruktur / Entfernungen
Gesundheit
Arzt <500m
Apotheke <500m
Klinik <1.000m
Krankenhaus <1.000m
Kinder & Schulen
Schule <500m
Kindergarten <500m
Universität <2.000m
Höhere Schule <1.500m
Nahversorgung
Supermarkt <500m
Bäckerei <500m
Einkaufszentrum <1.000m
Sonstige
Geldautomat <500m
Bank <500m
Post <500m
Polizei <1.000m
Verkehr
Bus <500m
U-Bahn <500m
Straßenbahn <500m
Bahnhof <500m
Autobahnanschluss <4.500m
Angaben Entfernung Luftlinie / Quelle: OpenStreetMap
Eckdaten Objektnr. 6653/822
| Art: | Wohnung |
| Land: | Österreich |
| Baujahr: | 1953 |
| Zustand: | Sanierungsbeduerftig |
| Alter: | Neubau |
| Kaufpreis: | 167.650,00 € |
| Provision: | 6.035,40 € inkl. 20% USt. |
| Betriebskosten: | 136,40 € |
| MwSt Gesamt: | 13,64 € |
| Wohnfläche: | 55,90 m² |
| Zimmer: | 2 |
| Bäder: | 1 |
| WC: | 1 |
| Heizwärmebedarf: | D 100,87 kWh/m²a |
| fGEE: | D 1,98 |
Ausstattung
Fliesen, Laminatboden, Teppichboden, Gas, Badewanne
Ihre persönliche Beratung
Laurenz Schnitzer
Confido Immobilien GmbH
T +43 664 518 45 11
H +43 664 518 45 11