Neuer Preis! Ihre beste Entscheidung! Geschmackvoll sanierter Altbau + Rundum saniertes Gebäude + Perfekte Anbindung und Infrastruktur! Jetzt zugreifen!

Wohnung , 1030 Wien


Sie suchen nach dem gewissen Etwas? Sie möchten in der Stadt mit all ihren Vorteilen leben und doch nahe von großen Erholungsgebieten und der grünen Lunge Wien´s sowie der schönen Alten Donau? Hier müssen Sie keine Kompromisse eingehen! Hier vereint sich die Vielfalt von Cityflair und der Möglichkeit die Seele im schönen, grünen Prater baumeln zu lassen oder spontan einen Sprung ins kühle Nass an der Alten Donau zu machen. Profitieren Sie von einer optimalen Infrastruktur! U-Bahn, Straßenbahn und Bus befinden sich quasi vor der Türe und alle Geschäfte des täglichen Bedarfs erreichen Sie in wenigen Gehminuten.

Beschreibung der Immobilie

Neuer Preis! Ihre beste Entscheidung! Geschmackvoll sanierter Altbau + Rundum saniertes Gebäude + Perfekte Anbindung und Infrastruktur! Jetzt zugreifen!

Alles was das Herz begehrt.... Aber Vorsicht - Sie werden sich verlieben!



Neuer Preis! TOP saniert im typischen Altbauflair! Altwiener Innentüren + Altbau-Sicherheitstüren + Hochwertiger Fischgrät-Parkett bzw. Dielen + Stylisches Badezimmer!



Dieses Projekt vereint alles was das Herz begehrt! Zum Verkauf stehen 32 sanierte Altbauwohnungen sowie 14 stylische Wohnungen im Dachgeschoss. Alle drei Trakte dieser Liegenschaft werden rundum saniert und mehrere Lifte eingebaut. "Klotzen statt Kleckern" lautet hier das Motto...



Hochwertige Armaturen, Teilweise Stuck sowie rundum hochwertige Ausstattung mit Liebe zum Detail, heben dieses Projekt vom üblichen Wohnungsmarkt ab.





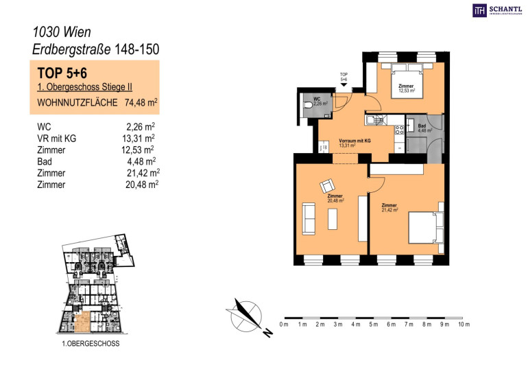
Ihre neue Wohnung befindet sich im 1.Liftstock und teilt sich in einen sehr geräumigen Vorraum, ein separates WC mit Handwaschbecken, ein stylisches Badezimmer mit Walk-In Dusche welches von beiden Schlafzimmern aus begehbar ist, 2 getrennt begehbare Schlafzimmer (eines hofseitig), eine leicht separate Küche sowie ein geräumiges Wohnzimmer.



Highlights: Altbau-Sicherheitstüren, Hornbracht Armaturen, Hochwertiger Fischgrät Parkett, Fußbodenheizung, Teilweise traumhafter Stuck uvm.



Kaufpreis: € 419.000.- 



Wohnfläche: ca. 74,15m² + Kellerabteil



Fertigstellung der Wohnung: 3-4 Monate ab Kauf





Insgesamt werden 32 top-sanierte Altbauwohnungen, 1 Townhouse, sowie 14 neu errichtete Dachgeschoss Wohnungen verkauft!



Folgende Wohnungen haben bereits glückliche neue Besitzer: TOP 1/17-18, TOP 2/50A, TOP 3/51-52, TOP 3/45-46, TOP 4/43-46, TOP 4/41-42, TOP 1/54, TOP 1/56A, TOP 49, TOP 55, TOP 47A, TOP 32, TOP 23-24, TOP 57, TOP 53A, TOP 48, TOP 56, TOP 51, TOP 50, TOP 1/19-20, TOP 1/30, TOP 3/41-42, TOP 1/9-10, TOP 2/28-29, TOP 2/19-20, TOP 1/35-36, TOP 2/25-26, TOP 3/53





Bei konkretem Interesse senden wir Ihnen sehr gerne weiterführende Dokumente zu, wie:



o Grundbuchauszug



o Wohnungseigentumsvertrag



o Nutzwertgutachten



o Eigentümerversammlungsprotokoll (Falls vorhanden) etc...





Unser Service für Sie: Wenn Sie sich für diese Immobilie entschieden haben, begleiten wir Sie gerne vom Kaufanbot weg inkl. Klärung von Sonderwünschen und der Vertragsunterzeichnung über die Wohnungsübergabe bis hin zu diversen Ummeldungen wie Strom und Gas. Entsprechende Formulare oder auch Meldezettel stellen wir Ihnen sehr gerne zur Verfügung.



Gerne unterstützen wir Sie auch bei der Finanzierung Ihres Traumobjekts und finden mit unseren langjährigen Partnern die besten Konditionen für Sie.



Vereinbaren Sie noch heute einen Termin, wir beraten Sie gerne!



www.schantl-ith.at


Hinweis gemäß Energieausweisvorlagegesetz: Ein Energieausweis wurde vom Eigentümer bzw. Verkäufer, nach unserer Aufklärung über die generell geltende Vorlagepflicht, sowie Aufforderung zu seiner Erstellung noch nicht vorgelegt. Daher gilt zumindest eine dem Alter und der Art des Gebäudes entsprechende Gesamtenergieeffizienz als vereinbart. Wir übernehmen keinerlei Gewähr oder Haftung für die tatsächliche Energieeffizienz der angebotenen Immobilie.


Wir weisen darauf hin, dass zwischen dem Vermittler und dem zu vermittelnden Dritten ein familiäres oder wirtschaftliches Naheverhältnis besteht.


Der Vermittler ist als Doppelmakler tätig.

Infrastruktur / Entfernungen

Gesundheit
Arzt <500m
Apotheke <500m
Klinik <1.000m
Krankenhaus <1.000m

Kinder & Schulen
Schule <500m
Kindergarten <500m
Universität <500m
Höhere Schule <1.000m

Nahversorgung
Supermarkt <500m
Bäckerei <500m
Einkaufszentrum <1.000m

Sonstige
Geldautomat <500m
Bank <500m
Post <500m
Polizei <500m

Verkehr
Bus <500m
U-Bahn <500m
Straßenbahn <500m
Bahnhof <500m
Autobahnanschluss <500m

Angaben Entfernung Luftlinie / Quelle: OpenStreetMap

Eckdaten Objektnr. 289593

Art: Wohnung
Land: Österreich
Zustand: Erstbezug
Alter: Altbau
Kaufpreis: 419.000,00
Kaufpreis / m²: 5.650,71 €
Provision: 3% des Kaufpreises zzgl. 20% USt.
Betriebskosten: 115,51 €
MwSt Gesamt: 11,55 €
Wohnfläche: 74,15 m²
Nutzfläche: 74,15 m²
Zimmer: 3
Bäder: 1
WC: 1
Keller: 2,19 m²
Immobilie merken Exposé

Ausstattung

Fliesen, Parkett, Gas, Fußbodenheizung, Personenaufzug, Dusche, Kabel/Satelliten-TV


Immobilie anfragen


Ihre persönliche Beratung

Schantl ITH Immobilientreuhand GmbH

Samir Agha-Schantl

Schantl ITH Immobilientreuhand GmbH

T 0043 664 3070009

H 0043 660 4701793