Lagerhalle mit Büro in Vösendorf zu mieten

Halle / Lager / Produktion - Halle, 2334 Vösendorf


Beschreibung der Immobilie

Lagerhalle mit Büro in Vösendorf zu mieten

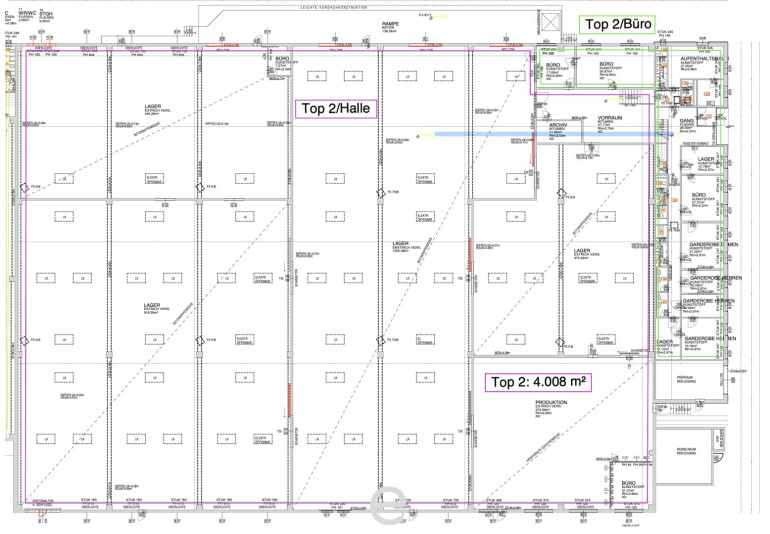
Zur Vermietung stehen rd. 4.008,00 m² Lager sowie rd. 230,00 m² Büro,welche beste Voraussetzungen für eine maßgeschneiderte Lager- sowie Produktionsfläche bieten. Das Büro ist mit einem neuen Vinyl-Boden sowie neuen Küchengeräten ausgestattet. Die Beschickung der Halle erfolgt über ein ebenerdiges Tor sowie über vier fixe LKW-Rampen. Stellplätze können in ausreichender Anzahl am Gelände angemietet werden. Die Halle ist beheizbar und verfügt über eine BUK von 7,95 m. Bei Bedarf können auf dem Gelände noch weitere Büroräumlichkeiten angemietet werden.



Die Lage zeichnet sich durch direkten Anschluss an die A2, die A23 sowie zur B17 Triesterstraße aus. 

Noch nichts gefunden? Wir informieren Sie über geeignete Immobilienangebote noch vor allen anderen.
Legen Sie jetzt Ihren individuellen Suchagenten unter folgendem Link an. Wir schicken Ihnen passende Immobilien exklusiv vorab zu.
Suchagent anlegen - https://eurea-real-estates.service.immo/registrieren/de


Wir weisen darauf hin, dass zwischen dem Vermittler und dem zu vermittelnden Dritten ein familiäres oder wirtschaftliches Naheverhältnis besteht.


Der Vermittler ist als Doppelmakler tätig.

Infrastruktur / Entfernungen

Gesundheit
Arzt <1.500m
Apotheke <500m
Klinik <4.000m
Krankenhaus <3.000m

Kinder & Schulen
Schule <1.500m
Kindergarten <2.000m
Universität <7.500m
Höhere Schule <4.500m

Nahversorgung
Supermarkt <500m
Bäckerei <500m
Einkaufszentrum <500m

Sonstige
Geldautomat <1.000m
Bank <1.500m
Post <2.000m
Polizei <500m

Verkehr
Bus <500m
U-Bahn <2.500m
Straßenbahn <5.000m
Bahnhof <500m
Autobahnanschluss <1.000m

Angaben Entfernung Luftlinie / Quelle: OpenStreetMap

Eckdaten Objektnr. 6244/1000

Art: Halle / Lager / Produktion - Halle
Land: Österreich
Kaltmiete (netto): 29.781,00 €
Kaltmiete: 39.674,12 €
Miete / m²: 7,03 €
Provision: 3 Bruttomonatsmieten zzgl. 20% USt.
Betriebskosten: 9.493,12 €
Heizkosten: 7.925,06 €
MwSt Gesamt: 9.519,83 €
Nutzfläche: 4.238,00 m²
Lagerfläche: 4.008,00 m²
Bürofläche: 230,00 m²
Immobilie merken Exposé

Immobilie anfragen


Ihre persönliche Beratung

Sophie Mayerhofer

COORE-GC Real Estate GmbH

T +4367764855412