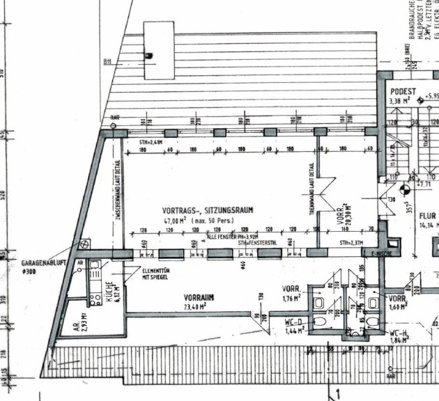
Vortrags-Sitzungsraum - 106m² Büro - U1
                                                            Büro / Praxis
                                ,
                            
                            
                                
                                                                            1220
                                    
                                                                            Wien
                                    
                                    
                                
                                                                    
                                        
                                    
                                
                            
                        
                        Kagraner Platz
Beschreibung der Immobilie
Vortrags-Sitzungsraum - 106m² Büro - U1
106m² Großraumbüro - U1
Ich freue mich auf Ihren Anruf
Paul Kleindl 01/526 26 36 oder 0699/1188 7600
Kagraner Platz  - im zweiten Liftstock eines gepflegten Neubaus befindet sich dieses Gewerbeobjekt. Nahe der U1Station - Kagraner-Platz.
Firmen mit Vorsteuerabzug (UID-Nummer) ist Voraussetzung
Öffentliche Anbindung
Kagraner-Platz U1 Station und diverse Buslinien, die Straßenbahnlinien 26  ist in unmittelbarer Nähe erreicht werden. 
Energieausweis: HWB 135,6
Ich freue mich auf Ihren Anruf
Paul Kleindl 01/526 26 36 oder 0699/1188 7600
Keine Gewähr bei Abweichungen der Flächen & Preise etc.
Das Maklerunternehmen ist als Doppelmakler tätig und steht in einem familiären oder wirtschaftlichen Naheverhältnis mit dem zu vermittelnden Dritten.
Wir weisen darauf hin, dass zwischen dem Vermittler und dem zu vermittelnden Dritten ein familiäres oder wirtschaftliches Naheverhältnis besteht.
Der Vermittler ist als Doppelmakler tätig.
Eckdaten Objektnr. 1760/611
| Art: | Büro / Praxis | 
| Land: | Österreich | 
| Baujahr: | 1926 | 
| Alter: | Altbau | 
| Kaltmiete (netto): | 1.595,85 € | 
| Kaltmiete: | 1.835,23 € | 
| Miete / m²: | 15,00 € | 
| Provision: | 3 Bruttomonatsmieten zzgl. 20% USt. | 
| Betriebskosten: | 239,38 € | 
| Heizkosten: | 148,95 € | 
| MwSt Gesamt: | 396,84 € | 
| Nutzfläche: | 106,39 m² | 
| Bürofläche: | 106,39 m² | 
| Zimmer: | 1 | 
| WC: | 2 | 
| Heizwärmebedarf: | 135,60 kWh/m²a | 
Ausstattung
Zentralheizung, Personenaufzug, Teeküche
Ihre persönliche Beratung
                                                        Paul Kleindl
Lind Immobilien
T +43 1 526 26 36 14
H +43 699 1188 7600