Wohlfühloase in Leoben: Gepflegte 3-Zimmer-Wohnung mit sonniger Loggia und neuem Bad!

Wohnung , 8700 Leoben , Heipelweg 8


In sonniger, zentrumsnaher Siedlung am Murufer in Leoben mit zahlreichen Verkehrsanbindungen und Freizeitmöglichkeiten gelegen.

Beschreibung der Immobilie

Wohlfühloase in Leoben: Gepflegte 3-Zimmer-Wohnung mit sonniger Loggia und neuem Bad!

Leoben / Heipelweg 8 / Top 13


Wunderbare, neu sanierte und freundliche Familienwohnung mit sonniger Loggia am Murufer in Leoben mit guter Verkehrsanbindung. 



Monatliche Kaltmiete inkl. Betriebskosten und USt.: € 772,76

Monatliche Warmmiete inkl. Heizung, Warmwasser, Betriebskosten und USt.: € 973,59 
(zuzüglich Strom).

Einmalige Kaution: € 2.920,74



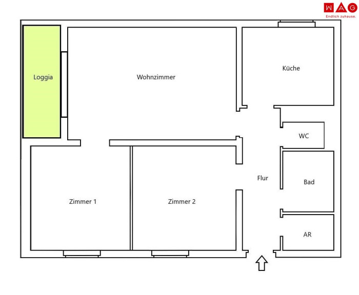
Besonders das geräumige Wohnzimmer mit Loggia lädt zum Verweilen ein und bietet der Familie viel Platz. Zudem verfügt die Wohnung über eine Küche, ein Elternschlafzimmer, ein Kinderzimmer, Bad mit Dusche, getrenntes WC, einem praktischem Abstellraum und Vorzimmer. Ein Kellerabteil ist zur Wohnung zugeordnet.



  • Familienfreundlicher Grundriss
  • Gute Verkehrsanbindung (Bus, Bahn, Radweg).
  • Kindergarten und Schule im Nahbereich
  • Unbefristete Vermietung
  • Sonnige Loggia


Lage: In einer sonnigen Siedlung am Murufer in Leoben gelegen und das Ortszentrum ist in wenigen Minuten erreichbar. Ein Gasthaus, Spielplätze, ein beleuchteter Radweg direkt am Murufer, Bushaltestellen und auf der anderen Murseite, im Ortsteil Lerchenfeld, in wenigen Gehminuten entfernt befinden sich: ein Lebensmittelgeschäft, Kinderarzt, eine öffentliche Hundewiese und die Bahnstation Lerchenfeld.

Sie sind an weiteren Wohnungs- bzw. Gewerbeangeboten interessiert? Ein vielfältiges Angebot finden Sie auf unserer Website.

Zur WAG-Immobiliensuche: SUCHE

Zur WAG-Wohnungsanmeldung: Wohnungsanmeldung

Gerne beraten wir Sie persönlich über unser vielfältiges Angebot, rufen Sie uns einfach an! Und das natürlich ohne Vermittlungsgebühren und provisionsfrei!

Angaben sind ohne Gewähr auf Richtigkeit und Vollständigkeit. Druckfehler vorbehalten.

Infrastruktur / Entfernungen

Gesundheit
Arzt <700m
Apotheke <1.650m
Krankenhaus <2.850m

Kinder & Schulen
Schule <1.250m
Kindergarten <700m
Universität <1.925m
Höhere Schule <2.425m

Nahversorgung
Supermarkt <800m
Bäckerei <2.125m
Einkaufszentrum <2.025m

Sonstige
Bank <2.050m
Geldautomat <2.050m
Post <700m
Polizei <2.350m

Verkehr
Bus <150m
Autobahnanschluss <750m
Bahnhof <600m

Angaben Entfernung Luftlinie / Quelle: OpenStreetMap

Eckdaten Objektnr. 6650/28540

Art: Wohnung
Land: Österreich
Zustand: Gepflegt
Gesamtmiete: 772,76
Kaltmiete (netto): 504,61 €
Kaltmiete: 702,51 €
Provision: PROVISIONSFREI!
Betriebskosten: 181,47 €
MwSt Gesamt: 70,25 €
Wohnfläche: 82,13 m²
Zimmer: 3
Bäder: 1
WC: 1
Keller: 6,00 m²
Heizwärmebedarf:  B  33,40 kWh/m²a
fGEE:  A  0,70
Immobilie merken Exposé

Ausstattung

Parkett, Fernwärme, Personenaufzug, Dusche, Kabel/Satelliten-TV


Immobilie anfragen


Ihre persönliche Beratung

Team WAG Hochsteiermark

WAG Wohnungsanlagen GmbH

T +43 50 3387688

H +43 664 9672157