Bürogebäude in Bergheim

Zinshaus Renditeobjekt - Bürogebäude, 5101 Bergheim


Zentral und dennoch ruhig liegt dieses Bürogebäude am Stadtrand Salzburgs. Bergheim zeichnet sich durch die nähe zu Salzburg und eine perfekte Infrastruktur aus. Busanbindungen sowie die nähe zur Autobahn zeichnen die Lage aus.

Beschreibung der Immobilie

Bürogebäude in Bergheim

Herzlich willkommen in diesem einzigartigen Bürogebäude in Bergheim, einem charmanten Vorort von Salzburg!



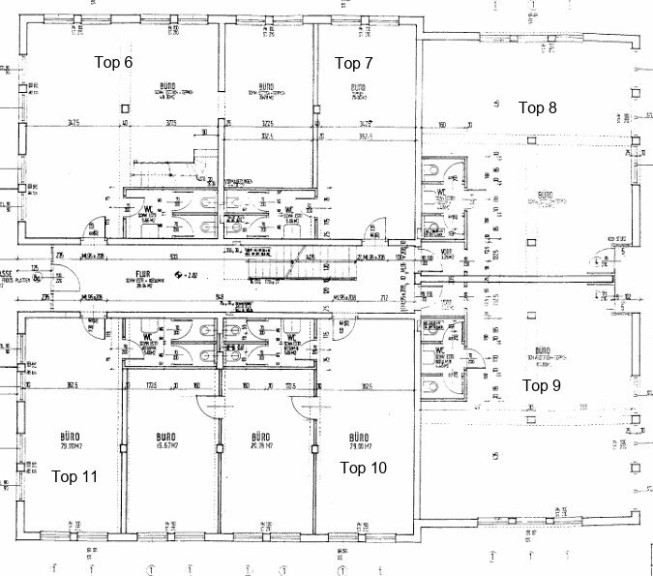
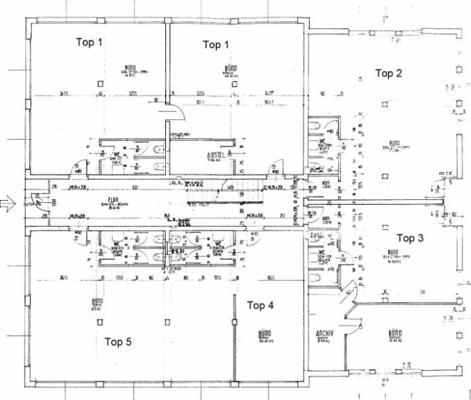
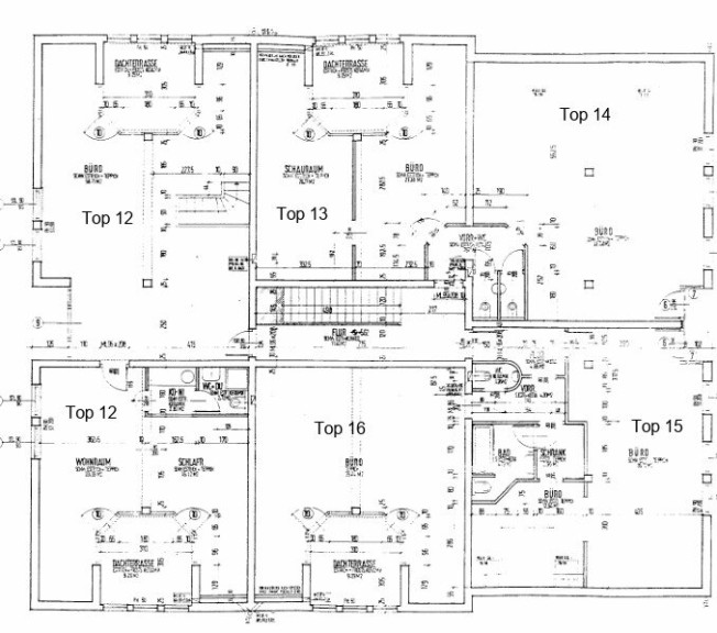
Mit einer Gesamtfläche von 1056,49m² bietet diese Immobilie nicht nur ausreichend Platz für geschäftlichen Aktivitäten, sondern punktet auch mit einer idealen Lage und einer erstklassigen Anbindung an den öffentlichen Verkehr.



Das Gebäude ist komplett vermietet und bringt momentan ca. € 125.264,40 Netto pro Jahr an Mieteinnahmen.



Neben der ausgezeichneten Verkehrsanbindung bietet die Immobilie auch eine optimale Infrastruktur. 



Darüber hinaus verfügt die Immobilie über mehrere Parkplätze direkt vor dem Gebäude, was für Mieter und Kunden eine bequeme Anreise ermöglicht. Auch für Fahrräder gibt es ausreichend Abstellmöglichkeiten, sodass man auch umweltfreundlich zur Arbeit kommen kann.



Nutzen Sie jetzt die Chance, diese exzellente Immobilie in Bergheim zu erwerben. Kontaktieren Sie uns noch heute und vereinbaren Sie einen Besichtigungstermin – wir freuen uns darauf, Ihnen dieses einzigartige Objekt persönlich zu präsentieren!


Der Vermittler ist als Doppelmakler tätig.

Infrastruktur / Entfernungen

Gesundheit
Arzt <1.500m
Apotheke <2.000m
Klinik <4.000m
Krankenhaus <4.000m

Kinder & Schulen
Schule <2.500m
Kindergarten <500m
Universität <2.500m
Höhere Schule <3.500m

Nahversorgung
Supermarkt <500m
Bäckerei <1.000m
Einkaufszentrum <2.500m

Sonstige
Bank <1.000m
Geldautomat <1.000m
Post <1.000m
Polizei <2.000m

Verkehr
Bus <500m
Bahnhof <2.000m
Autobahnanschluss <1.500m
Flughafen <6.500m

Angaben Entfernung Luftlinie / Quelle: OpenStreetMap

Eckdaten Objektnr. 2107

Art: Zinshaus Renditeobjekt - Bürogebäude
Land: Österreich
Provision: 3% des Kaufpreises zzgl. 20% USt.
Nutzfläche: 1.056,49 m²
Immobilie merken Exposé

Ausstattung

Parkplatz


Immobilie anfragen


Ihre persönliche Beratung

MSc. Mustafa Korkmaz

MK Immobilientreuhänder Mustafa Korkmaz

T +43 662 225311

H +43 676 898 525 500