Gemütliche Gartenwohnung in Gablitz

Wohnung , 3003 Gablitz , Linzerstraße 20a


Diese charmante Gartenwohnung bei der Linzerstraße 3003 in Gablitz bietet eine ideale Lage mit Südwest-Ausrichtung. Nur 10 Minuten von Wien entfernt, profitieren Sie von der perfekten Anbindung an die Hauptstadt. In unmittelbarer Nähe finden Sie alles, was das Herz begehrt: Arzt, Apotheke, Schule, Kindergarten, Supermarkt, Bäckerei, Post, Polizei und Busverbindungen. Genießen Sie ruhiges Wohnen in einer lebendigen Umgebung!

Beschreibung der Immobilie

Gemütliche Gartenwohnung in Gablitz

Auskunft: Herr Kahler Andreas 0664 / 33 11 333



Etage: 2.Stock



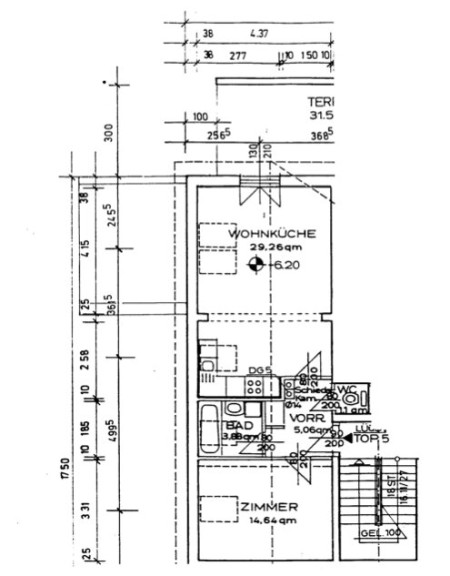
Raumaufteilung:



WohnKüche - Schlafzimmer - Badezimmer - WC - Vorraum



kurz Beschreibung:



Bj. ca.1996 - Heizung: Gaszentralheizung - Fenster: Kunststoffisolierglasfenster - Böden: Laminat, Fliesen - Badezimmer und Küche möbliert



Beschreibung:



Willkommen in Ihrem neuen Zuhause in der idyllischen Gemeinde Gablitz, Niederösterreich! Diese charmante Gartenwohnung im 2. Stock ist der perfekte Rückzugsort für all jene, die naturnahe Ruhe und modernen Komfort schätzen. 



Mit einer großzügigen Fläche von 53,91 m² bietet die Wohnung ausreichend Platz für individuelles Wohnen. Die zwei hellen Zimmer sind ideal für Paare oder kleine Familien, die eine harmonische und entspannte Wohnatmosphäre suchen. Genießen Sie den zauberhaften Grünblick, der Ihnen jeden Morgen ein Lächeln ins Gesicht zaubern wird und Ihnen die Hektik des Alltags vergessen lässt.



Die Wohnung ist geschmackvoll ausgestattet und besticht durch eine ansprechende Kombination aus Fliesen und Laminatböden, die sowohl Funktionalität als auch Stil vereinen. In der modernen Einbauküche können Sie kulinarische Köstlichkeiten zaubern, während das Badezimmer mit Fenster und Badewanne zu einem Ort der Entspannung einlädt. Hier können Sie nach einem langen Tag die Seele baumeln lassen und neue Energie tanken.



Ein besonderes Highlight dieser Wohnung ist der Nordbalkon, der Ihnen die Möglichkeit bietet, die frische Luft und die Ruhe des Gartens zu genießen. Stellen Sie sich vor, wie Sie an lauen Sommerabenden dort entspannen oder den Tag mit einem gemütlichen Frühstück im Freien beginnen!



Die Verkehrsanbindung ist hervorragend – ein Bus bringt Sie schnell und unkompliziert zu den umliegenden Orten. Und auch die Infrastruktur lässt keine Wünsche offen: In unmittelbarer Nähe finden Sie alles, was Sie für den täglichen Bedarf benötigen – Ärzte, Apotheken, Schulen, Kindergärten, Supermärkte und Bäckereien sind nur einen kurzen Spaziergang entfernt.



Die Miete von nur 790,00 € macht diese Gartenwohnung zu einer attraktiven Option für all jene, die Wert auf ein gutes Preis-Leistungs-Verhältnis legen. 



Lassen Sie sich diese Gelegenheit nicht entgehen! Vereinbaren Sie noch heute einen Besichtigungstermin und entdecken Sie Ihr neues Zuhause in Gablitz – ein Ort, an dem Sie sich sofort wohlfühlen werden. Willkommen in Ihrem neuen Lebensabschnitt!


Wir weisen darauf hin, dass zwischen dem Vermittler und dem zu vermittelnden Dritten ein familiäres oder wirtschaftliches Naheverhältnis besteht.


Der Immobilienmakler erklärt, dass er – entgegen dem in der Immobilienwirtschaft üblichen Geschäftsgebrauch des Doppelmaklers – einseitig nur für den Vermieter tätig ist.

Der Anspruch auf Provision gemäß den Bestimmungen des Maklergesetzes und der Verordnung des Bundesministers für wirtschaftliche Angelegenheiten über die Standes- und Ausübungsregeln für Immobilienmakler (StF: BGBl. Nr. 297/1996) tritt mit der Rechtswirksamkeit des vermittelten Geschäfts in Kraft, das heißt mit der Einigung der Parteien oder dem Eintreten einer etwaigen Bedingung. Die Provision wird fällig mit der Unterzeichnung des Kauf- oder Mietvertrages, unter Berücksichtigung des Bestellerprinzips (der Auftraggeber zahlt die Provision) gemäß § 17a Maklergesetz. Die vermittelnden und/oder nachweisenden Personen sowie deren Beauftragte haben einen direkten Zahlungsanspruch gegenüber dem Käufer, dem gewerblichen Mieter oder dem Auftraggeber.

Wir weisen darauf hin, dass alle Angaben ohne Gewähr sind und sich ausschließlich auf Informationen stützen, die uns von unserem Auftraggeber zur Verfügung gestellt wurden. Eine Gewähr für die Vollständigkeit, Richtigkeit und Aktualität dieser Informationen kann nicht übernommen werden. Unsere Allgemeinen Geschäftsbedingungen finden ebenfalls Anwendung. Irrtümer und Zwischenverkauf bleiben vorbehalten. Des Weiteren möchten wir darauf hinweisen, dass wir aufgrund gängiger Geschäftsgebräuche auch als Doppelmakler tätig sein können. Es besteht möglicherweise ein wirtschaftliches oder familiäres Naheverhältnis, das sich aus einer regelmäßigen geschäftlichen Verbindung ergibt.

Information gemäß §11 FAGG, AGV und VRUG:

Bitte haben Sie Verständnis dafür, dass wir Ihnen gemäß einer neuen EU-Richtlinie seit Juli 2014 Informationen zu unseren Objekten und Besichtigungsmöglichkeiten (§ 11 FAGG) erst zusenden können, nachdem Sie bekräftigt haben, dass Sie unser sofortiges Tätigwerden wünschen. Wir informieren Sie zudem, dass uns im Falle eines unterzeichneten Anbots die Maklerprovision nur bei tatsächlichem Vertragsabschluss zusteht. Zudem haben Sie bei einem unterzeichneten Anbot ein 14-tägiges Rücktrittsrecht ohne Angabe von Gründen. Mit Ihrer Anfrage oder E-Mail bestätigen Sie, dass Sie diese Information zur Kenntnis genommen haben.

Diese E-Mail kann rechtlich geschützte oder vertrauliche Informationen enthalten. Sollten Sie nicht der beabsichtigte Empfänger sein oder diese E-Mail irrtümlich erhalten haben, bitten wir Sie, den Absender zu informieren und diese E-Mail zu löschen. Die unbefugte Verwendung dieser E-Mail ist untersagt.

Hinweis:

Seit 1. Januar 2009 sind Verkäufer und Vermieter verpflichtet, einen gültigen Energieausweis vorzulegen. Bei Nichterbringung gilt eine Gesamtenergieeffizienz, die mindestens dem Alter und der Art des Gebäudes entspricht, als vereinbart.

Infrastruktur / Entfernungen

Gesundheit
Arzt <700m
Apotheke <750m
Klinik <7.625m
Krankenhaus <8.275m

Kinder & Schulen
Schule <750m
Kindergarten <625m
Universität <5.975m

Nahversorgung
Supermarkt <775m
Bäckerei <750m
Einkaufszentrum <4.650m

Sonstige
Geldautomat <2.200m
Bank <2.125m
Post <475m
Polizei <475m

Verkehr
Bus <75m
Straßenbahn <7.425m
U-Bahn <7.825m
Bahnhof <2.350m
Autobahnanschluss <5.000m

Angaben Entfernung Luftlinie / Quelle: OpenStreetMap

Eckdaten Objektnr. 6924/345

Art: Wohnung
Land: Österreich
Baujahr: 1996
Alter: Neubau
Gesamtmiete: 790,00
Kaltmiete (netto): 581,57 €
Kaltmiete: 718,18 €
Provision: Gemäß Erstauftraggeberprinzip bezahlt der Abgeber die Provision.
Betriebskosten: 136,61 €
MwSt Gesamt: 71,82 €
Wohnfläche: 53,91 m²
Zimmer: 2
Bäder: 1
WC: 1
Garten: 79,68 m²
Heizwärmebedarf:  C  75,60 kWh/m²a
fGEE:  D  1,91
Immobilie merken Exposé

Ausstattung

Fliesen, Laminatboden, Gas, Etagenheizung, Einbauküche, Nordbalkon, Bad mit Fenster, Badewanne


Immobilie anfragen


Ihre persönliche Beratung

Kahler Real GmbH

Andreas Kahler

Kahler Real Gmbh

H +43 664 33 11 333