Geförderte 2 Zimmer-Wohnung mit Miete-Kaufoption & Stundungsvariante
                                                            Wohnung
                                ,
                            
                            
                                
                                                                            4482
                                    
                                                                            Ennsdorf
                                    
                                    ,
                                        Mauthausner Straße                                                                                            11e                                                                                    
                                    
                                
                                                                    
                                        
                                    
                                
                            
                        
                        Beste Raumplanung - höchste Lebensqualität im Projekt "WINPASSING MITTE" Das geförderte Wohnhaus umfasst 21 hochwertig ausgestattete Wohneinheiten sowie einen Kindergarten, der sich im Erdgeschoss befindet und über einen eigenen, separaten Zugang erschlossen wird – unabhängig vom Stiegenhaus der Wohnungen. Die Wohnungen bestechen durch ihre vielfältigen Ausrichtungen und bieten sowohl Frühaufstehern, die die Morgensonne im Schlafzimmer genießen möchten, als auch Genießerinnen und Genießern eines sonnigen Frühstücks auf Balkon oder Terrasse das perfekte Zuhause – jede Einheit verfügt über einen eigenen Balkon oder eine großzügige Dachterrasse. Zusätzlich sind jeder Wohnung zwei PKW-Abstellplätze zugeordnet – in der Tiefgarage (35 Stellplätze) und im Außenbereich (19 Stellplätze). Ein geräumiges Kellerabteil ist ebenfalls jeder Wohnung zugewiesen. Im Kellergeschoss befindet sich auch ein Kinderwagenabstellraum sowie der Technikraum. Die komfortablen 2 bis 4-Zimmer-Wohnungen sind bequem mit dem Aufzug erreichbar und verteilen sich auf drei Obergeschosse. Für behagliche Wärme sorgt eine effiziente Luft-Wasser-Wärmepumpe, die die Energie über eine angenehme Fußbodenheizung in den Wohnungen verteilt. Eine zentrale Warmwasserbereitung im Technikraum garantiert zusätzlichen Komfort. Die hauseigene Photovoltaikanlage am Dach liefert den Strom für den Betrieb der Wärmepumpen und unterstützt so eine nachhaltige Energieversorgung. An sonnigen Tagen bieten Außenrollläden zuverlässigen Schutz vor übermäßiger Hitze. Für die ordnungsgemäße Müllentsorgung steht außerhalb des Gebäudes ein eigener, gut zugänglicher Bereich zur Verfügung. Die Gemeinde Ennsdorf präsentiert sich als lebendiger und lebenswerter Ort mit rund 3.500 Einwohnern. Eine ausgezeichnete Nahversorgung, eine solide öffentliche Verkehrsanbindung sowie ein vielfältiges kulturelles Angebot prägen das tägliche Leben. Hier genießt man nicht nur hohe Lebensqualität, sondern auch ein starkes Gemeinschaftsgefühl, das Ennsdorf zu einem besonders attraktiven Wohnort macht. Die Verkehrsanbindung ist hervorragend: Mehrere Buslinien verbinden Ennsdorf regelmäßig und zuverlässig mit den umliegenden Städten und Gemeinden. Nur etwa 2,2 Kilometer entfernt liegt der Bahnhof Enns, der direkte Zugverbindungen nach Linz, Wien und darüber hinaus bietet. Von dort aus bestehen zahlreiche nationale und internationale Anschlussmöglichkeiten – ideal für alle, die auch ohne eigenes Auto flexibel und mobil bleiben möchten.
Beschreibung der Immobilie
Geförderte 2 Zimmer-Wohnung mit Miete-Kaufoption & Stundungsvariante
Stundung des Finanzierungsbetrages (Baukosten gestundet) Verzinsung 1 %, ohne Tilgung in 5 Jahren fällig: 24.054,70 EUR
Moderne 2-Zimmer-Balkonwohnung für Ihr neues Glück - WINDPASSING MITTE
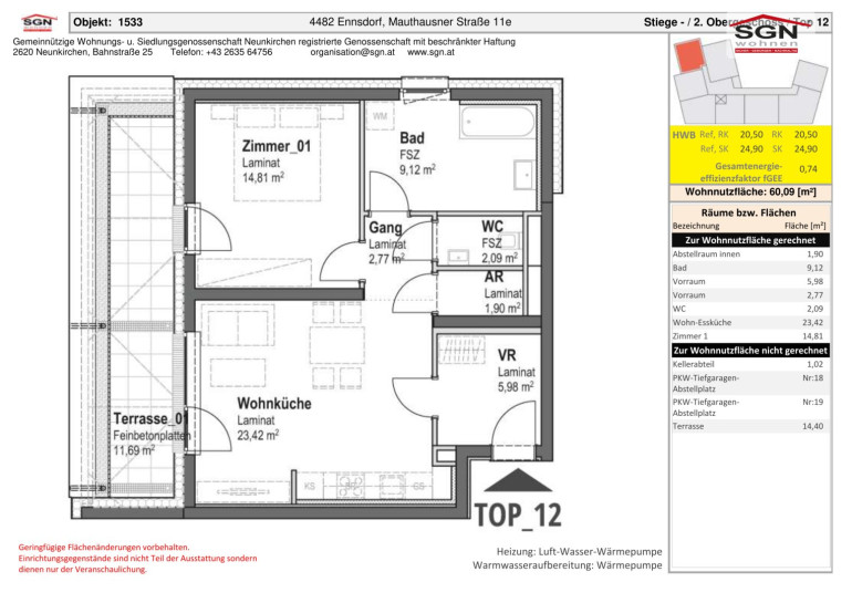
Diese helle und optimal geschnittene 2-Zimmer-Wohnung bietet auf ca. 52 m² Wohnfläche ein modernes Wohnkonzept für Singles, oder Paare. Der Mittelpunkt der Wohnung ist die großzügige Wohnküche mit rund 23 m², die durch ihre offene Gestaltung und die großen Fensterflächen ein besonders freundliches Wohnambiente schafft. Von hier aus gelangen Sie direkt auf den sonnigen Balkon, der nach Süden ausgerichtet ist und ideale Voraussetzungen für entspannte Stunden im Freien bietet.
Das Schlafzimmer, ebenfalls mit südseitiger Ausrichtung, ist gut proportioniert und bietet Platz für ein Doppelbett sowie einen Schrank.
Das Badezimmer überzeugt mit zeitloser Ausstattung, einer Badewanne, einem Waschbecken und einem WC sowie einem Waschmaschinenanschluss. Ein praktischer Abstellraum sowie ein freundlicher Vorraum runden das Raumangebot perfekt ab.
Dank der geschickten Südorientierung ist die Wohnung den ganzen Tag über lichtdurchflutet und sorgt für eine angenehme, freundliche Atmosphäre.
Zugeordnet sind die PKW-Tiefgaragenabstellplätze Nr.: 18 und 19 sowie ein eigenes Kellerabteil.
Infrastruktur / Entfernungen
Gesundheit
Arzt <2.750m
Apotheke <3.075m
Klinik <3.350m
Kinder & Schulen
Schule <1.975m
Kindergarten <2.050m
Nahversorgung
Supermarkt <575m
Bäckerei <1.850m
Einkaufszentrum <4.050m
Sonstige
Bank <1.850m
Geldautomat <1.850m
Post <1.850m
Polizei <2.050m
Verkehr
Bus <25m
Bahnhof <950m
Autobahnanschluss <2.925m
Angaben Entfernung Luftlinie / Quelle: OpenStreetMap
Eckdaten Objektnr. 15330012
| Art: | Wohnung | 
| Land: | Österreich | 
| Baujahr: | 2025 | 
| Zustand: | Erstbezug | 
| Alter: | Neubau | 
| Gesamtmiete: | 811,44 € | 
| Kaltmiete (netto): | 508,00 € | 
| Kaltmiete: | 737,67 € | 
| Betriebskosten: | 229,67 € | 
| MwSt Gesamt: | 73,77 € | 
| Wohnfläche: | 60,09 m² | 
| Zimmer: | 2 | 
| Bäder: | 1 | 
| WC: | 1 | 
| Terrassen: | 1 | 
| Stellplätze: | 1 | 
| Heizwärmebedarf: | 20,50 kWh/m²a | 
| fGEE: | 0,74 | 
Ausstattung
Fliesen, Laminatboden, Fußbodenheizung, Personenaufzug, Bad mit Fenster, Badewanne, Garage
Ihre persönliche Beratung
 
                                                        Fabian Männl, MA
SGN Gemeinnützige Wohnungs- u. Siedlungsgenossenschaft Neunkirchen reg.Gen.m.b.H.
T +43 2635 64756 14
H +43 664 8347376
 
                 
                 
                 
                 
                 
                 
                