Beschreibung der Immobilie
2-Zimmer-Wohnung mit Komfort und Ausblick - Design trifft Panorama
Baubeginn: Frühsommer 2026
Voraussichtliche Fertigstellung: Frühjahr 2027
Parkplätze: Optional erhältlich (nicht im Kaufpreis enthalten)
Dieses Wohnbauprojekt vereint hochwertige Architektur, energieeffiziente Bauweise und modernen Wohnkomfort. Hier entsteht ein Zuhause für Menschen, die Wert auf Qualität, Design und nachhaltiges Wohnen legen – eingebettet in eine ruhige und zugleich zentrale Lage.
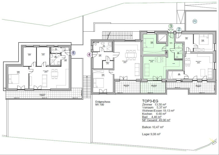
Diese attraktive 2-Zimmer-Wohnung im Projekt „Design trifft Panorama“ überzeugt durch moderne Architektur und eine durchdachte Raumaufteilung, die Komfort und Stil perfekt vereint.
Auf einer Nutzfläche von ca. 49,06 m² bietet die Wohnung ein helles und funktionales Raumkonzept mit optimal genutztem Grundriss
Vom Vorraum führt die linke Tür in das Badezimmer mit WC, während sich rechts das Schlafzimmer befindet, das ausreichend Platz für einen komfortablen Rückzugsort bietet. Geht man den Vorraum geradeaus weiter, gelangt man in die Küchennische, die harmonisch in den offenen Wohn- und Essbereich übergeht – das Zentrum der Wohnung und ein Ort zum Wohlfühlen und Genießen.
Vom Wohnbereich aus öffnet sich der Zugang zum ca. 10,81 m² großen Balkon, der zusätzlichen Freiraum im Freien schafft und zum Entspannen in angenehmer Atmosphäre einlädt.
Wie alle Einheiten im Projekt wird auch diese Wohnung in massiver, energieeffizienter Bauweise errichtet und mit Holz-Alu-Fenstern mit 3-fach-Isolierverglasung sowie Raffstores ausgestattet. Ein Kellerabteil bietet zusätzlichen Stauraum, Fahrradabstellplätze stehen gemeinschaftlich zur Verfügung. Parkplätze können bei Bedarf optional erworben werden.
Infrastruktur / Entfernungen
Gesundheit
Arzt <500m
Apotheke <1.000m
Klinik <2.500m
Krankenhaus <1.000m
Kinder & Schulen
Schule <500m
Kindergarten <500m
Nahversorgung
Supermarkt <1.000m
Bäckerei <1.000m
Einkaufszentrum <1.500m
Sonstige
Geldautomat <1.000m
Bank <1.000m
Post <1.000m
Polizei <1.000m
Verkehr
Bus <500m
Bahnhof <1.500m
Angaben Entfernung Luftlinie / Quelle: OpenStreetMap
Eckdaten Objektnr. 961/35788
| Art: | Wohnung |
| Land: | Österreich |
| Baujahr: | 2026 |
| Alter: | Neubau |
| Kaufpreis: | 198.000,00 € |
| Nutzfläche: | 49,06 m² |
| Zimmer: | 2 |
| Bäder: | 1 |
| WC: | 1 |
| Balkone: | 1 |
| Keller: | 9,08 m² |
| Heizwärmebedarf: | C 63,00 kWh/m²a |
| fGEE: | A 0,81 |
Ihre persönliche Beratung
Dieser Makler ist ein offizielles Mitglied des IR – ir.at Mehr Erfahren

