Beschreibung der Immobilie
Exklusives Penthouse mit 91 m² Dachterrasse und Direktlift
Baubeginn: Frühsommer 2026
Voraussichtliche Fertigstellung: Frühjahr 2027
Parkplätze: Optional erhältlich (nicht im Kaufpreis enthalten)
Dieses Wohnbauprojekt vereint hochwertige Architektur, energieeffiziente Bauweise und modernen Wohnkomfort. Hier entsteht ein Zuhause für Menschen, die Wert auf Qualität, Design und nachhaltiges Wohnen legen – eingebettet in eine ruhige und zugleich zentrale Lage.
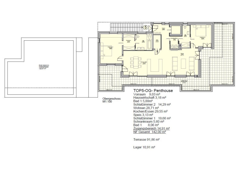
Dieses außergewöhnliche Penthouse vereint modernes Design mit exklusivem Wohnkomfort auf höchstem Niveau. Auf einer großzügigen Nutzfläche von ca. 142 m² und mit einer beeindruckenden Dachterrasse von ca. 91,86 m² bietet diese Wohnung ein Wohnerlebnis der besonderen Art – lichtdurchflutet, offen und hochwertig.
Bereits der Zugang zur Wohnung unterstreicht den exklusiven Charakter: Ein eigener Lift führt direkt in den Vorraum, der einen eleganten Empfangsbereich bildet. Von hier aus öffnet sich der Weg in den spektakulären, offen gestalteten Wohn- und Essbereich, der mit knapp 60 m² das Herzstück der Wohnung darstellt. Die raumhohen Fensterfronten schaffen ein einzigartiges Raumgefühl, während der direkte Zugang auf die großzügige Dachterrasse das Wohngefühl ins Freie erweitert – ideal für gesellige Abende, entspannte Stunden oder einfach zum Genießen der Aussicht.
Der Grundriss überzeugt mit durchdachter Funktionalität: Ein praktischer Abstellraum sowie ein separat gelegener, mit Schiebetür abgetrennter Haushaltsraum sorgen für Ordnung im Alltag.
Das Masterschlafzimmer überzeugt mit Großzügigkeit und durchdachter Planung: Ein direkt angeschlossenes Ankleidezimmer führt nahtlos weiter in das exklusive Badezimmer mit WC – für maximalen Komfort und Privatsphäre Ein weiteres Schlafzimmer mit direktem Terrassenzugang verfügt ebenfalls über ein eigenes Badezimmer mit WC, das mittels Schiebetür dezent abgetrennt ist – perfekt als Gästebereich oder Kinderzimmer.
Wie alle Einheiten des Projekts wird auch dieses Penthouse in massiver, energieeffizienter Bauweise errichtet. Zur hochwertigen Ausstattung zählen Holz-Alu-Fenster mit 3-fach-Isolierverglasung, Raffstores sowie moderne, langlebige Materialien in allen Bereichen. Ein Kellerabteil ist im Kaufpreis inkludiert, Fahrradabstellplätze stehen zur gemeinschaftlichen Nutzung zur Verfügung. Parkplätze können bei Bedarf optional erworben werden.
Mit seiner Kombination aus exklusiver Ausstattung, beeindruckendem Raumangebot und großzügiger Dachterrasse bietet dieses Penthouse ein einmaliges Wohngefühl.
Infrastruktur / Entfernungen
Gesundheit
Arzt <500m
Apotheke <1.000m
Klinik <2.500m
Krankenhaus <1.000m
Kinder & Schulen
Schule <500m
Kindergarten <500m
Nahversorgung
Supermarkt <1.000m
Bäckerei <1.000m
Einkaufszentrum <1.500m
Sonstige
Geldautomat <1.000m
Bank <1.000m
Post <1.000m
Polizei <1.000m
Verkehr
Bus <500m
Bahnhof <1.500m
Angaben Entfernung Luftlinie / Quelle: OpenStreetMap
Eckdaten Objektnr. 961/35790
| Art: | Wohnung - Penthouse |
| Land: | Österreich |
| Baujahr: | 2026 |
| Alter: | Neubau |
| Kaufpreis: | 895.000,00 € |
| Nutzfläche: | 142,00 m² |
| Zimmer: | 3,50 |
| Bäder: | 2 |
| WC: | 2 |
| Terrassen: | 1 |
| Keller: | 10,91 m² |
| Heizwärmebedarf: | C 63,00 kWh/m²a |
| fGEE: | A 0,81 |
Ausstattung
Personenaufzug
Ihre persönliche Beratung
Dieser Makler ist ein offizielles Mitglied des IR – ir.at Mehr Erfahren

