Beschreibung der Immobilie
Wohnung im Bungalow-Charakter mit Gartenidylle
Baubeginn: Frühsommer 2026
Voraussichtliche Fertigstellung: Frühjahr 2027
Parkplätze: Optional erhältlich (nicht im Kaufpreis enthalten)
Dieses Wohnbauprojekt vereint hochwertige Architektur, energieeffiziente Bauweise und modernen Wohnkomfort. Hier entsteht ein Zuhause für Menschen, die Wert auf Qualität, Design und nachhaltiges Wohnen legen – eingebettet in eine ruhige und zugleich zentrale Lage.
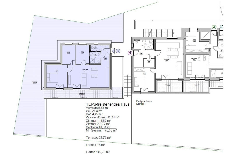
Diese 4-Zimmer-Wohnung mit Bungalow-Charakter ist in einem freistehendem Haus gelegen und bietet ein ganz besonderes Wohnerlebnis mit dem Komfort eines Einfamilienhauses und den Vorzügen eines modernen Wohnprojekts. Mit einer Nutzfläche von ca. 78,33 m², einer Terrasse von ca. 22,79 m² sowie einem privaten Garten mit rund 149,73 m² eignet sich diese Einheit ideal für all jene, die Wert auf Raum, Privatsphäre und Lebensqualität legen.
Vom Vorraum aus gelangt man sowohl in das Badezimmer, als auch in das separat begehbare WC. Der Weg führt weiter in den sehr großzügigen Wohn-, Ess- und Kochbereich, der das Herzstück der Wohnung bildet. Durch die offene Gestaltung entsteht hier ein helles, luftiges Raumgefühl mit direktem Blick und Zugang zur Terrasse die in den Garten führt – perfekt für entspannte Stunden im Grünen, gesellige Runden oder einfach zum Genießen der eigenen Ruheoase.
Vom Wohnbereich aus erschließen sich insgesamt drei Schlafzimmer – eines davon besonders großzügig geschnitten und ideal als Master-Schlafzimmer nutzbar, die beiden weiteren Räume eignen sich flexibel als Kinderzimmer, Büro oder Gästezimmer.
Wie alle Einheiten des Projekts wird auch diese Wohnung in massiver, energieeffizienter Bauweise errichtet. Zur hochwertigen Ausstattung zählen Holz-Alu-Fenster mit 3-fach-Isolierverglasung sowie Raffstores, die für optimalen Wärme- und Sonnenschutz sorgen. Ein Kellerabteil ist im Angebot inkludiert, gemeinschaftliche Fahrradabstellplätze stehen zur Verfügung.
Infrastruktur / Entfernungen
Gesundheit
Arzt <500m
Apotheke <1.000m
Klinik <2.500m
Krankenhaus <1.000m
Kinder & Schulen
Schule <500m
Kindergarten <500m
Nahversorgung
Supermarkt <1.000m
Bäckerei <1.000m
Einkaufszentrum <1.500m
Sonstige
Geldautomat <1.000m
Bank <1.000m
Post <1.000m
Polizei <1.000m
Verkehr
Bus <500m
Bahnhof <1.500m
Angaben Entfernung Luftlinie / Quelle: OpenStreetMap
Eckdaten Objektnr. 961/35791
| Art: | Wohnung |
| Land: | Österreich |
| Baujahr: | 2026 |
| Alter: | Neubau |
| Kaufpreis: | 348.000,00 € |
| Nutzfläche: | 78,33 m² |
| Zimmer: | 4 |
| Bäder: | 1 |
| WC: | 1 |
| Terrassen: | 1 |
| Garten: | 149,73 m² |
| Keller: | 7,16 m² |
| Heizwärmebedarf: | C 63,00 kWh/m²a |
| fGEE: | A 0,81 |
Ihre persönliche Beratung
Dieser Makler ist ein offizielles Mitglied des IR – ir.at Mehr Erfahren

