Bürogebäude mit Lager in Top-Sichtlage von Leobersdorf – Büros & Lager unter einem Dach

Büro / Praxis , 2544 Leobersdorf


Lage Die Immobilie liegt zentral in Leobersdorf, direkt an der Hauptstraße mit starkem Durchzugsverkehr. Die ausgezeichnete Sichtlage garantiert maximale Werbewirkung für Ihr Unternehmen. Geschäfte des täglichen Bedarfs, Gastronomie sowie öffentliche Verkehrsanbindungen befinden sich in unmittelbarer Nähe.

Beschreibung der Immobilie

Bürogebäude mit Lager in Top-Sichtlage von Leobersdorf – Büros & Lager unter einem Dach

Objektbeschreibung



Diese vielseitig nutzbare Gewerbeimmobilie mit einer Gesamtfläche von rund 480 m² bietet eine perfekte Kombination aus Büro-, Lager- und Kundenflächen – ideal für Handels-, Dienstleistungs- oder Logistikunternehmen.

Das Objekt befindet sich direkt an der Hauptstraße von Leobersdorf und überzeugt durch beste Sichtbarkeit sowie hohe Frequenzlage.



Flächenaufteilung




  • Gesamtfläche: ca. 480 m²



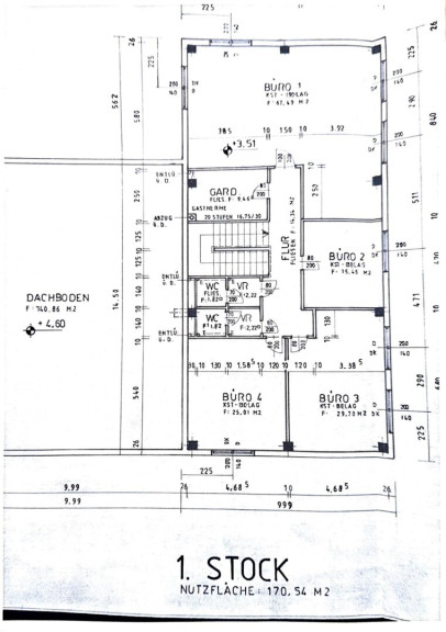
  • Bürofläche: ca. 340 m² – aufgeteilt in 9 Büros und 3 Nebenräume



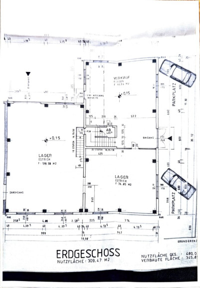
  • Lagerfläche: ca. 140 m² mit 4 m hohem Einfahrtstor – ideal für Warenanlieferung




Ausstattung & Highlights




  • Repräsentativer Eingangsbereich mit Empfangsmöglichkeit



  • Getrennte Sanitäranlagen für Damen und Herren



  • 11 PKW-Stellplätze direkt vor dem Gebäude – ideal für Kunden und Mitarbeiter



  • Gute Raumaufteilung mit flexiblen Nutzungsmöglichkeiten



  • Hervorragende Erreichbarkeit über die Südautobahn A2 und B17




Besonderheiten




  • Perfekte Kombination aus repräsentativer Bürofläche und funktionalem Lagerbereich



  • Top-Sichtbarkeit und werbewirksame Lage



  • Ab 01.02.2026 bezugsfertig und flexibel nutzbar




Fazit



Diese Gewerbeimmobilie vereint optimale Lagefunktionale Ausstattung und repräsentativen Charakter – die ideale Basis für erfolgreiche Unternehmensaktivitäten in Leobersdorf.


Hinweis gemäß Energieausweisvorlagegesetz: Ein Energieausweis wurde vom Eigentümer bzw. Verkäufer, nach unserer Aufklärung über die generell geltende Vorlagepflicht, sowie Aufforderung zu seiner Erstellung noch nicht vorgelegt. Daher gilt zumindest eine dem Alter und der Art des Gebäudes entsprechende Gesamtenergieeffizienz als vereinbart. Wir übernehmen keinerlei Gewähr oder Haftung für die tatsächliche Energieeffizienz der angebotenen Immobilie.


Wir weisen darauf hin, dass zwischen dem Vermittler und dem zu vermittelnden Dritten ein familiäres oder wirtschaftliches Naheverhältnis besteht.


Der Vermittler ist als Doppelmakler tätig.

Infrastruktur / Entfernungen

Gesundheit
Arzt <500m
Apotheke <500m
Klinik <7.000m
Krankenhaus <8.000m

Kinder & Schulen
Kindergarten <500m
Schule <1.000m

Nahversorgung
Supermarkt <500m
Bäckerei <500m
Einkaufszentrum <1.000m

Sonstige
Bank <1.000m
Geldautomat <1.000m
Post <1.000m
Polizei <1.500m

Verkehr
Bus <500m
Bahnhof <1.000m
Autobahnanschluss <1.000m
Straßenbahn <7.500m
Flughafen <4.500m

Angaben Entfernung Luftlinie / Quelle: OpenStreetMap

Eckdaten Objektnr. 8359/275

Art: Büro / Praxis
Land: Österreich
Baujahr: 2000
Zustand: Gepflegt
Alter: Neubau
Kaltmiete (netto): 2.400,00 €
Kaltmiete: 2.650,00 €
Miete / m²: 5,11 €
Provision: 3 Bruttomonatsmieten zzgl. 20% USt.
Betriebskosten: 250,00 €
MwSt Gesamt: 530,00 €
Nutzfläche: 480,00 m²
Lagerfläche: 140,00 m²
Zimmer: 9
WC: 4
Stellplätze: 11
Immobilie merken Exposé

Ausstattung

Etagenheizung, Einbauküche, Dusche, Garage, Parkplatz


Immobilie anfragen


Ihre persönliche Beratung

HAPPYIMMO GmbH

Hannes Pletz

HAPPYIMMO GmbH

H +43 676 911 0 911