Goldblick - 4 Zimmer Wohnung - Ein Projekt von MADILE

Wohnung , 9800 Spittal an der Drau


Im sonniger Lage am Fratres, mit einzigartigem Blick auf Spittal und das Goldeck, entsteht eine exklusive Wohnanlage, bestehend aus drei Gebäuden mit je 8 Wohnungen.

Beschreibung der Immobilie

Goldblick - 4 Zimmer Wohnung - Ein Projekt von MADILE

Mit dem Neubauprojekt „Goldblick“ wird eine Wohnanlage in herrlicher Lage errichtet, welche durch seinen malerischen Ausblick besticht.



Hier werden Sie nicht nur von einer hochwertigen Ausstattung, sondern auch durch die moderne und nachhaltige Bauweise überzeugt.





HIGHLIGHTS



  • Atemberaubender Ausblick
  • Durchdachte Grundrisse 
  • Anspruchsvolle Innenausstattung
  • Kellerabteil für jede Wohneinheit
  • Barrierefreie Zugänge
  • Großzügige Terrassen 
  • Kosteneffizienz aufgrund der Erdwärmepumpe und Photovoltaikanlage
  • Erfahrener Bauträger, über 140 Jahre Firmentradition

Infrastruktur / Entfernungen

Gesundheit
Arzt <1.000m
Apotheke <1.000m
Krankenhaus <1.000m

Kinder & Schulen
Schule <1.000m
Kindergarten <2.500m
Höhere Schule <1.500m

Nahversorgung
Supermarkt <500m
Bäckerei <1.000m
Einkaufszentrum <1.500m

Sonstige
Bank <1.000m
Geldautomat <1.000m
Polizei <1.500m
Post <1.000m

Verkehr
Bus <500m
Autobahnanschluss <1.500m
Bahnhof <1.500m
Flughafen <2.000m

Angaben Entfernung Luftlinie / Quelle: OpenStreetMap

Eckdaten Objektnr. 178

Art: Wohnung
Land: Österreich
Zustand: Erstbezug
Alter: Neubau
Kaufpreis: 462.000,00
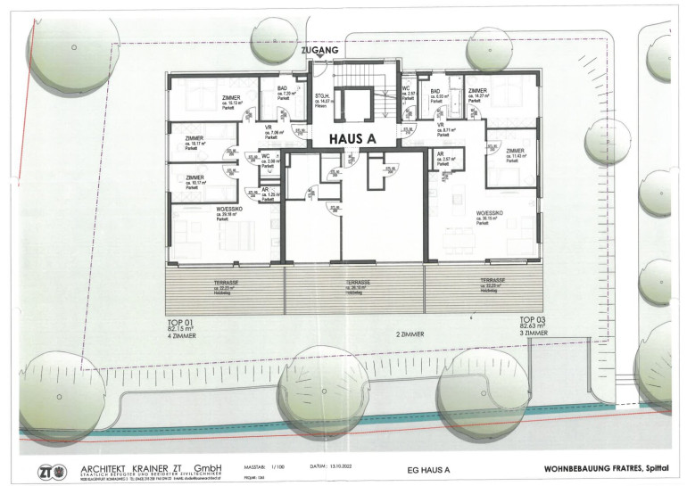
Wohnfläche: 82,51 m²
Zimmer: 4
Garten: 49,34 m²
Heizwärmebedarf:  B  44,00 kWh/m²a
fGEE:  A+  0,61
Immobilie merken Exposé

Ausstattung

Fußbodenheizung, Personenaufzug


Immobilie anfragen


Ihre persönliche Beratung

Madile Wohnbau GmbH

Msc. Andreas Binder

Wallner & Madile Wohnbau GmbH - TESTACCOUNT

T +43 664 8282 969