Wohnen zum Wohlfühlen in schöner Grünlage für Paare oder kleine Familien! Saniert und modernisiert mit durchdachter und praktischer Raumaufteilung! Perfekte Infrastruktur vorhanden!

Wohnung , 4400 Steyr , Paulus-Wörndl-Platz


Beschreibung der Immobilie

Wohnen zum Wohlfühlen in schöner Grünlage für Paare oder kleine Familien! Saniert und modernisiert mit durchdachter und praktischer Raumaufteilung! Perfekte Infrastruktur vorhanden!

Steyr / Münichholz / Wörndlplatz 4



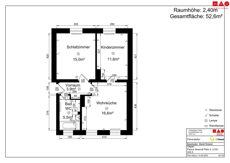
Diese frisch sanierte 2-Zimmer-Wohnung mit einer gemütlichen Wohnküche und zwei weiteren (Schlaf-)räumen vereint modernen Wohnkomfort mit einer praktischen Raumaufteilung – perfekt für alle, die ein gemütliches Zuhause in einer angenehmen Wohngegend suchen. 



Zur besseren Veranschaulichung des Wohnpotenzials wurde ein möglicher Einrichtungsvorschlag im Titelbild mithilfe künstlicher Intelligenz dezent visualisiert. 



Highlights/Besonderheiten:



  • großzügige Wohnküche mit genügend Platz für eine Essgelegenheit
  • gemütliches Schlafzimmer mit ruhiger Ausrichtung
  • ein weiteres kleineres Zimmer mit individuellen Einrichtungsmöglichkeiten z.B. als separates Esszimmer, Büro, Kinderzimmer, ...
  • neuwertiges Badezimmer mit moderner Dusche, Fenster, WC und Platz für eine Waschmaschine
  • geräumiges Kellerabteil inklusive


Umgebung:
Die Wohnlage in Steyr Münichholz bietet den zukünftigen Bewohnerinnen und Bewohnern eine ausgezeichnete Infrastruktur direkt vor der Haustür. Einkaufsmöglichkeiten für den täglichen Bedarf, gemütliche Cafés und Restaurants sind bequem zu Fuß oder mit dem Fahrrad erreichbar. Auch Haltestellen öffentlicher Verkehrsmittel befinden sich in unmittelbarer Nähe, was eine rasche Verbindung ins Stadtzentrum und in andere Stadtteile ermöglicht. Schulen sowie medizinische Einrichtungen sind ebenfalls schnell erreichbar – ideal für alle, die eine ruhige Wohnatmosphäre mit urbanem Komfort verbinden möchten. 



Mietkonditionen
Miete, Betriebskosten und Sanierungszuschlag inkl. Mwst.: € 560,94 (OHNE Strom-, Heiz- und Warmwasserkosten)



Kaution: € 1.339,80



Provisionsfrei & unbefristeter Mietvertrag!


Der Immobilienmakler erklärt, dass er – entgegen dem in der Immobilienwirtschaft üblichen Geschäftsgebrauch des Doppelmaklers – einseitig nur für den Vermieter tätig ist.

Sie sind an weiteren Wohnungs- bzw. Gewerbeangeboten interessiert? Ein vielfältiges Angebot finden Sie auf unserer Website.

Zur WAG-Immobiliensuche: SUCHE

Zur WAG-Wohnungsanmeldung: Wohnungsanmeldung

Gerne beraten wir Sie persönlich über unser vielfältiges Angebot, rufen Sie uns einfach an! Und das natürlich ohne Vermittlungsgebühren und provisionsfrei!

Angaben sind ohne Gewähr auf Richtigkeit und Vollständigkeit. Druckfehler vorbehalten.

Infrastruktur / Entfernungen

Gesundheit
Arzt <500m
Apotheke <750m
Klinik <1.500m
Krankenhaus <3.500m

Kinder & Schulen
Schule <500m
Kindergarten <500m
Universität <1.750m
Höhere Schule <2.500m

Nahversorgung
Supermarkt <500m
Bäckerei <1.000m
Einkaufszentrum <1.250m

Sonstige
Bank <500m
Geldautomat <500m
Post <500m
Polizei <500m

Verkehr
Bus <500m
Bahnhof <1.000m

Angaben Entfernung Luftlinie / Quelle: OpenStreetMap

Eckdaten Objektnr. 6650/21728

Art: Wohnung
Land: Österreich
Zustand: Neuwertig
Gesamtmiete: 560,94
Kaltmiete (netto): 274,50 €
Kaltmiete: 520,34 €
Provision: Gemäß Erstauftraggeberprinzip bezahlt der Abgeber die Provision.
Betriebskosten: 131,50 €
MwSt Gesamt: 40,60 €
Wohnfläche: 52,20 m²
Zimmer: 2,50
Bäder: 1
WC: 1
Heizwärmebedarf:  B  43,00 kWh/m²a
fGEE:  B  0,90
Immobilie merken Exposé

Ausstattung

Fliesen, Laminatboden, Parkett, Zentralheizung, Bad mit Fenster, Dusche, Kabel/Satelliten-TV, Wasch/Trockenraum


Immobilie anfragen


Ihre persönliche Beratung

Team Steyr

WAG Wohnungsanlagen GmbH

T +43 (0)50 338 7388