Teilsaniert-Gewerbeimmobilie in 1060 Wien – 201 m²

Halle / Lager / Produktion , 1060 Wien,Mariahilf


Das Objekt befindet sich in einer ruhigen Gasse des 6. Bezirks. In nur 5 Gehminuten erreicht man die Mariahilferstraße wie auch die U 3 & U6 Station Westbahnhof. Die unmittelbare Nachbarschaft bietet sämtliche Einkaufsmöglichkeiten mit zahlreichen Geschäften des täglichen Bedarfs, Supermärkten, Bank, Trafik sowie eine Vielzahl an Restaurants, Bars und Cafés.Auch ein Hotel ist in der Nähe und Schule.

Beschreibung der Immobilie

Teilsaniert-Gewerbeimmobilie in 1060 Wien – 201 m²

FAST FACTS: 1060 | EIGENTUM | 201m2| Kreativraum-Atelier-Magazin etc. | Gewölbe | Sanierungsbedürftig | Souterrain



Mitten in der Stadt- Ideen gefragt !



In begehrtestem urbanen Umfeld – zwischen Mariahilfer Straße und Liniengasse unweit des Gürtels – präsentiert sich dieses Geschäftslokal / Magazin/Lager  mit großen Gewölberaum im Souterrain eines Altbaues. Die Sanierung mit Trockenlegung der Aussenwände und tragenden Wände ist bereits abgeschlossen.



Der 1892 errichtete Stilaltbau erstrahlt mit schön gegliederter Fassade.

Das Dachgeschoss wurde bereits ausgebaut.



ATELIER-WERKSTÄTTE-CLUBRAUM-STUDIO-LAGER-PROBERAUM



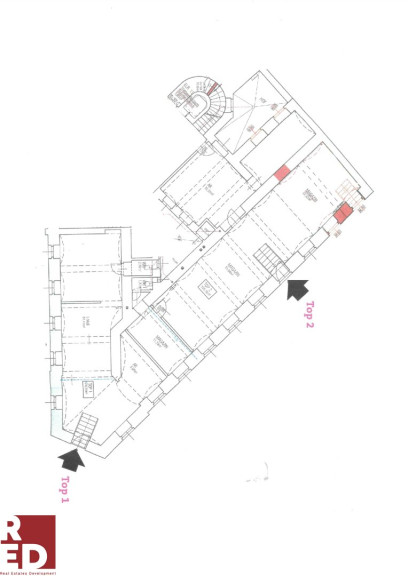
man kann hier viel daraus machen.  Die Einheit besteht aus 2 nebeneinander liegenden Top1,2+2a und gehören zusammen 



Trockenlegung seitens der Hausgemeinschaft an den jeweiligen Aussenwänden wurde bereits fertig gestellt. Nun können Sie selbst nach Ihren Wünschen und Vorstellungen fertigstellen. Es gibt gesamt 2 WC auch die bedürfen einer Fertigstellung. 

Für einen Besichtigungstermin oder Fragen stehe ich Ihnen gern zur Verfügung.


Wir weisen darauf hin, dass zwischen dem Vermittler und dem zu vermittelnden Dritten ein familiäres oder wirtschaftliches Naheverhältnis besteht.

RED Real Estates Development Immobilien und Bauträger GmbH   

Sterngasse 3/2/6

1010 Wien

s.lessmann@immo.red

+43 676 5063031

www.immo.red

Infrastruktur / Entfernungen

Gesundheit
Arzt <500m
Apotheke <500m
Klinik <500m
Krankenhaus <500m

Kinder & Schulen
Schule <500m
Kindergarten <500m
Universität <1.000m
Höhere Schule <1.500m

Nahversorgung
Supermarkt <500m
Bäckerei <500m
Einkaufszentrum <1.000m

Sonstige
Geldautomat <500m
Bank <500m
Post <500m
Polizei <500m

Verkehr
Bus <500m
U-Bahn <500m
Straßenbahn <500m
Bahnhof <500m
Autobahnanschluss <4.500m

Angaben Entfernung Luftlinie / Quelle: OpenStreetMap

Eckdaten Objektnr. 8131/257

Art: Halle / Lager / Produktion
Land: Österreich
Baujahr: 1902
Zustand: Sanierungsbeduerftig
Alter: Altbau
Kaufpreis: 495.000,00
Provision: 3% des Kaufpreises zzgl. 20% USt.
Betriebskosten: 351,92 €
MwSt Gesamt: 70,38 €
Nutzfläche: 201,00 m²
WC: 2
Heizwärmebedarf:  E  174,96 kWh/m²a
fGEE:  C  1,58
Immobilie merken Exposé

Ausstattung

Estrichboden


Immobilie anfragen


Ihre persönliche Beratung

RED REAL ESTATES DEVELOPMENT Bauträger und Immobilien GmbH

Dipl.Ing. Stella Lessmann

RED REAL ESTATES DEVELOPMENT Bauträger und Immobilien GmbH

H +43 676 5063031