BAUBEGINN BEREITS ERFOLGT !!! Exklusive Erstbezug-Doppelhaushälfte in Linz, Wambachsiedlung- mit Garten zum Wohlfühlen!
Haus
- Doppelhaushälfte,
4030
Linz
,
Küffelstraße 26
Die Wohnung befindet sich in der Küffelstraße im Stadtteil Wambachsiedlung in Linz in Oberösterreich. Sie liegt in einer ruhigen Wohngegend und ist nach Südwesten ausgerichtet, was bedeutet, dass sie viel Sonnenlicht und eine angenehme Helligkeit bietet. In unmittelbarer Nähe gibt es verschiedene Annehmlichkeiten wie einen Arzt, eine Apotheke, einen Kindergarten, eine Schule, einen Supermarkt, eine Bäckerei, eine Bank sowie eine Bushaltestelle und eine Straßenbahnhaltestelle.
Beschreibung der Immobilie
BAUBEGINN BEREITS ERFOLGT !!! Exklusive Erstbezug-Doppelhaushälfte in Linz, Wambachsiedlung- mit Garten zum Wohlfühlen!
Gartenwohnung mit Hauscharakter in Ruhelage – Küffelstraße 26, 4030 Linz
Zwischen Stadt und Natur entsteht in der Küffelstraße 26 ein Neubauprojekt, das Raum für Leichtigkeit, Klarheit und Alltag mit Qualität bietet.
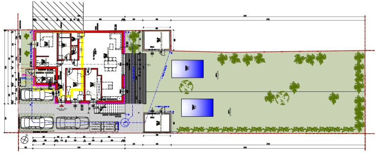
Die Gartenwohnung mit über 159 m² Wohnfläche und großzügigem Privatgarten vereint die Offenheit einer modernen Architektur mit der Geborgenheit eines eigenen Hauses.
Lage & Infrastruktur
Die Küffelstraße zählt zu den begehrten Wohnadressen im Süden von Linz: grün, ruhig und dennoch hervorragend angebunden. Straßenbahn und Bus sind in wenigen Gehminuten erreichbar, ebenso Einkaufsmöglichkeiten für den täglichen Bedarf. Kindergarten, Schule, Apotheke und Ärzte liegen im direkten Umfeld. Hier finden Familien wie auch Berufstätige die perfekte Balance zwischen Rückzug und urbaner Nähe.
Architektur & Raumgefühl
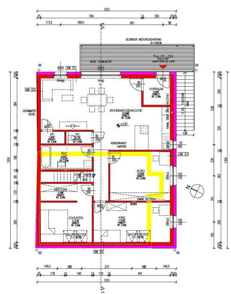
Große Verglasungen holen den Garten ins Haus und schaffen helle, offene Räume. Der Wohn- und Essbereich bildet das Herzstück der Wohnung – fließend, großzügig, verbunden mit der Terrasse.
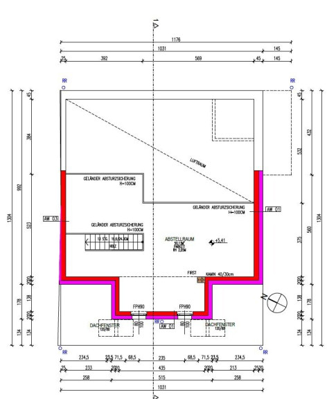
Das Master-Bedroom mit Bad en suite und Ankleide bietet private Rückzugsqualität. Zwei weitere Zimmer, ein zusätzliches Bad sowie die weitläufige Empore im Dachgeschoß eröffnen flexible Nutzungsmöglichkeiten – von Kinderzimmern bis Homeoffice.
Besonderheiten
Wohnfläche: 159,34 m²
Empore mit 50 m² im Dachgeschoß
Garten, Terrasse & Gartenhütte
Optionaler Pool (12 m²)
2 PKW-Stellplätze
Fertigstellung: Sommer 2026 – der Bau ist bereits gestartet.
Ein Zuhause, das Ruhe ausstrahlt und dennoch mitten im Leben steht.
Eine Architektur, die Wert auf Klarheit, Materialität und Atmosphäre legt.
Ein Ort, der bleibt.
Noch nichts gefunden? Wir informieren Sie über geeignete Immobilienangebote noch vor allen anderen.
Legen Sie jetzt Ihren individuellen Suchagenten unter folgendem Link an. Wir schicken Ihnen passende Immobilien exklusiv vorab zu.
Suchagent anlegen - https://immobilien-atelier76.service.immo/registrieren/de
Der Vermittler ist als Doppelmakler tätig.
Infrastruktur / Entfernungen
Gesundheit
Arzt <600m
Apotheke <625m
Krankenhaus <5.000m
Klinik <3.475m
Kinder & Schulen
Kindergarten <425m
Schule <525m
Universität <5.500m
Höhere Schule <7.425m
Nahversorgung
Supermarkt <475m
Bäckerei <625m
Einkaufszentrum <3.425m
Sonstige
Bank <575m
Geldautomat <1.675m
Post <1.900m
Polizei <2.000m
Verkehr
Bus <75m
Straßenbahn <225m
Bahnhof <2.075m
Autobahnanschluss <2.100m
Flughafen <6.450m
Angaben Entfernung Luftlinie / Quelle: OpenStreetMap
Eckdaten Objektnr. 346
Art: | Haus - Doppelhaushälfte |
Land: | Österreich |
Baujahr: | 2025 |
Zustand: | Erstbezug |
Alter: | Neubau |
Kaufpreis: | 649.000,00 € |
Provision: | 3% des Kaufpreises zzgl. 20% USt. |
Wohnfläche: | 159,34 m² |
Grundstücksfl.: | 636,00 m² |
Gesamtfläche: | 159,34 m² |
Zimmer: | 5 |
Bäder: | 1 |
WC: | 1 |
Terrassen: | 1 |
Stellplätze: | 2 |
Garten: | 140,00 m² |
Heizwärmebedarf: | B 45,00 kWh/m²a |
fGEE: | B 0,90 |
Ausstattung
Fliesen, Parkett, Gas, Zentralheizung, Wohnküche / offene Küche, Badewanne, Kabel/Satelliten-TV, Parkplatz
Ihre persönliche Beratung

Mag. Michael Schwarzl
IMMOBILIEN-ATELIER76 Holding GmbH
T +43 650 9575900
H +43 650 9575900