FÜR ANLEGER | VERMIETETE, wunderschöne, moderne & lichtdurchflutete Doppelhaushälfte | 5 Zimmer - ca. 143 m² | AHORNGASSE - St. Georgen, Eisenstadt

Haus - Doppelhaushälfte, 7000 Eisenstadt


Beschreibung der Immobilie

FÜR ANLEGER | VERMIETETE, wunderschöne, moderne & lichtdurchflutete Doppelhaushälfte | 5 Zimmer - ca. 143 m² | AHORNGASSE - St. Georgen, Eisenstadt

Zum Verkauf gelangt eine vermietete, wunderschöne, moderne & lichtdurchflutete Doppelhaushälfte in Ziegelmassivbauweise!



** Link zur Videobesichtigung **



Das Objekt verfügt über ca. 143 m² Wohnfläche sowie 2 Terrassen (zusammen ung. 44 m²), einem großzügiger Balkon (ca. 21,5 m²) und ein Eigengarten (inkl. Vorgarten) mit ca. 235 m².



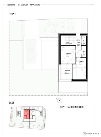
Zur Raumaufteilung:



EG:



  • Eingangsbereich
  • Geräumige, offene Wohnküche (ca. 56 m²) mit Ausgang auf die Terrasse / in den Garten (Ausrichtung W)
  • WC mit Handwaschbecken
  • Abstellraum/Technikraum
  • Stiegenauf/-Abgang


OG:



  • 2 Zimmer
    • beide davon mit Ausgang auf den großzügigen Balkon (ca. 22,5 m²)

  • Badezimmer mit Waschbecken, Duschwanne und WM-Anschluss
  • Separate Toilette mit Handwaschbecken


DG:



  • 2 Zimmer
    • beide davon mit Ausgang auf die zweite Terrasse (ca. 7 m²)

  • Badezimmer mit Dusche und Waschbecken
  • Separate Toilette mit Handwaschbecken
  • Stiegenauf/-Abgang mit Dachflächenfenster


Das Doppelhaus wird mit einem bestehenden Mietvertrag übergeben, das Mietverhältnis wurde auf 10 Jahre abgeschlossen.



Der monatliche Hauptmietzins beläuft sich auf netto EUR 2.174,50 (= EUR 26.094,00 Ertrag p.a.).
 



Kaufpreis: EUR 650.000.- zzgl. 20% USt.



*Die Fotos sind Symbolfotos der spiegelverkehrten, angebauten Doppelhaushälfte!





Weitere Annehmlichkeiten: überdachter PKW-Stellplatz mit Vorbereitung für E-Ladestation; Vorbereitung Klimaanlage in jedem Zimmer; Fußbodenheizung mittels Luft-Wärmepumpe; Vorbereitung für Photovoltaikanlage vorhanden; 3-fach Isolierglasfenster (Innen Kunststoff, außen Aluminium); elektrische Beschattung an allen Fenstern (Rollläden oder Raffstores); und vieles mehr .. | HWB zw. 28,6 kWh/m²a



Lage: in direkter Umgebung (max. 6 Fahrminuten) finden Sie zahlreiche Nahversorger wie Lebensmittelanbieter, Drogeriemärkte - ebenso diverse Sehenswürdigkeiten, Einkaufsstraßen, Cafés und Restaurants; Kindergärten, Volksschulen und weiterführende Bildungseinrichtungen, Apotheken sowie zahlreiche Ärzte sind ebenfalls in wenigen Minuten erreichbar; uvm..



Anbindung: die Autobahn Auffahrt A3 ist über eine Schnellstraße in nur 10 Fahrminuten erreichbar; Bahnhof Eisenstadt befindet sich ca. 3 km entfernt.





Für nähere Informationen erreichen Sie mich am besten unter: +43 664 14 24 164 oder katharina@rinareal.at - Katharina Hlawaty, MA



Die Angaben erfolgen aufgrund der Informationen und Unterlagen, die uns vom Eigentümer und/oder Dritten zur Verfügung gestellt wurden und sind ohne Gewähr. 


Wir weisen darauf hin, dass zwischen dem Vermittler und dem zu vermittelnden Dritten ein familiäres oder wirtschaftliches Naheverhältnis besteht.


Der Vermittler ist als Doppelmakler tätig.

Infrastruktur / Entfernungen

Gesundheit
Arzt <1.500m
Apotheke <2.000m
Klinik <8.500m
Krankenhaus <3.000m

Kinder & Schulen
Schule <1.000m
Kindergarten <1.000m
Universität <2.500m
Höhere Schule <1.500m

Nahversorgung
Supermarkt <1.000m
Bäckerei <1.500m
Einkaufszentrum <3.000m

Sonstige
Bank <1.500m
Geldautomat <1.500m
Post <2.000m
Polizei <1.500m

Verkehr
Bus <500m
Autobahnanschluss <3.500m
Bahnhof <1.500m

Angaben Entfernung Luftlinie / Quelle: OpenStreetMap

Eckdaten Objektnr. 688

Art: Haus - Doppelhaushälfte
Land: Österreich
Baujahr: 2023
Zustand: Erstbezug
Alter: Neubau
Kaufpreis: 650.000,00
Provision: 3% des Kaufpreises zzgl. 20% USt.
Wohnfläche: 142,79 m²
Zimmer: 5
Bäder: 2
WC: 3
Balkone: 1
Terrassen: 2
Stellplätze: 1
Garten: 234,45 m²
Heizwärmebedarf:  B  28,60 kWh/m²a
fGEE:  A+  0,62
Immobilie merken Exposé

Ausstattung

Parkett, Fliesen, Fußbodenheizung, Wohnküche / offene Küche, Westbalkon, Bad mit Fenster, Badewanne, Dusche, Carport


Immobilie anfragen


Ihre persönliche Beratung

RINAREAL Immobilien Entwicklungs- und Vermarktungsgesellschaft mbH

Katharina Hlawaty

RINAREAL Immobilien Entwicklungs- und Vermarktungsgesellschaft mbH

T +43 664 14 24 164