Praktisch geschnittene 2-Raum-Wohnung in zentraler Lage von Grieskirchen - HIGHLIGHT: separate Küche mit Fenster. Ab 01.02.2026 verfügbar!

Wohnung , 4710 Grieskirchen , Griesstraße 7


Beschreibung der Immobilie

Praktisch geschnittene 2-Raum-Wohnung in zentraler Lage von Grieskirchen - HIGHLIGHT: separate Küche mit Fenster. Ab 01.02.2026 verfügbar!

Grießkirchen / Naturnahe Wohnung / Hausruckviertel / Griesstraße 7:



Die Wohnung ist leer und wird ohne Möbel vermietet; mögliche Einrichtungsvorschläge wurden nur zur Veranschaulichung visualisiert.



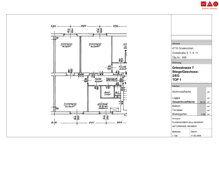
In der Griesstraße 7 in Grieskirchen wartet eine gepflegte 2-Zimmer-Wohnung mit ca. 59,3 m² auf neue Mieter:innen. Highlight ist die separate Küche mit Fenster sowie ein separates WC – ideal für Singles oder Paare, die eine zentrale Lage mit guter Infrastruktur schätzen.



Raumaufteilung & Ausstattung



Die Wohnung überzeugt durch eine effiziente, alltagstaugliche Raumaufteilung:



  • Wohnzimmer in angenehmer Größe
  • Schlafzimmer als ruhiger Rückzugsort
  • Separate Küche mit Fenster – mehr Flexibilität im Alltag
  • Bad mit Dusche
  • WC separat


Lage & Vorteile



Die Wohnung befindet sich in zentrumsnaher Lage von Grieskirchen:



  • Einkaufsmöglichkeiten, Cafés, Restaurants und Ärzt:innen in wenigen Minuten erreichbar
  • Bahnhof & öffentliche Verkehrsmittel in der Nähe – schnelle Anbindung Richtung Wels und Linz
  • Schulen und Kindergärten fußläufig erreichbar
  • Hohe Lebensqualität durch urbane Infrastruktur und gleichzeitige Nähe zur Natur


Mietkonditionen (bereinigt)



  • Gesamtmiete (inkl. BK und USt): € 614,54/Monat 

    (Strom-, Heizungs- und Warmwasserkosten: exkl.)
  • Kaution: € 1.843,62


Eckdaten (kompakt)



  • Objektart: Wohnung
  • Zustand: gepflegt
  • Wohnfläche: 59,3 m²
  • Zimmer: 2
  • Adresse: Griesstraße 7, 4710 Grieskirchen
  • Verfügbar: 01.02.2026

Der Immobilienmakler erklärt, dass er – entgegen dem in der Immobilienwirtschaft üblichen Geschäftsgebrauch des Doppelmaklers – einseitig nur für den Vermieter tätig ist.

Sie sind an weiteren Wohnungs- bzw. Gewerbeangeboten interessiert? Ein vielfältiges Angebot finden Sie auf unserer Website.

Zur WAG-Immobiliensuche: SUCHE

Zur WAG-Wohnungsanmeldung: Wohnungsanmeldung

Gerne beraten wir Sie persönlich über unser vielfältiges Angebot, rufen Sie uns einfach an! Und das natürlich ohne Vermittlungsgebühren und provisionsfrei!

Angaben sind ohne Gewähr auf Richtigkeit und Vollständigkeit. Druckfehler vorbehalten.

Infrastruktur / Entfernungen

Gesundheit
Arzt <400m
Apotheke <500m
Krankenhaus <1.250m

Kinder & Schulen
Schule <275m
Kindergarten <500m

Nahversorgung
Supermarkt <300m
Bäckerei <250m
Einkaufszentrum <375m

Sonstige
Bank <350m
Geldautomat <350m
Post <625m
Polizei <600m

Verkehr
Bus <125m
Bahnhof <400m
Autobahnanschluss <6.200m

Angaben Entfernung Luftlinie / Quelle: OpenStreetMap

Eckdaten Objektnr. 6650/28495

Art: Wohnung
Land: Österreich
Zustand: Gepflegt
Gesamtmiete: 614,54
Kaltmiete (netto): 418,31 €
Kaltmiete: 558,67 €
Provision: Gemäß Erstauftraggeberprinzip bezahlt der Abgeber die Provision.
Betriebskosten: 140,36 €
MwSt Gesamt: 55,87 €
Wohnfläche: 59,25 m²
Zimmer: 2
Bäder: 1
WC: 1
Heizwärmebedarf:  C  63,00 kWh/m²a
fGEE:  C  1,32
Immobilie merken Exposé

Ausstattung

Fliesen, Parkett, Fernwärme, Dusche, Kabel/Satelliten-TV, Wasch/Trockenraum


Immobilie anfragen


Ihre persönliche Beratung

Team Vermietung EBS

WAG Wohnungsanlagen GmbH

T 0503386016