Modernisierte 2-Zimmer-Wohnung mit Zweitwohnsitz Option

Wohnung , 4810 Gmunden


Beschreibung der Immobilie

Modernisierte 2-Zimmer-Wohnung mit Zweitwohnsitz Option

Die wichtigsten Eckdaten dieser Immobilie:



+ Baujahr 1969, Sanierung Wohnung 2024



+ Luft-Wärme-Pumpe



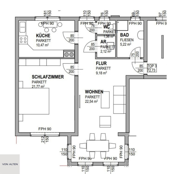
+ ca. 73 m² Wohnfläche



+ 2 Zimmer, separat begehbar



+ Einbauküche mit Miele Geräten



+ Badezimmer mit Dusche und Fenster sowie einem separaten WC



+ Abstellraum



+ Lichtdurchfluteter Wohnbereich und Außenliegender Sonnenschutz



+  Trapa-Parkettböden



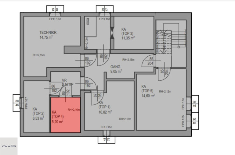
+ Kellerabteil ca. 5,2 m²



+ Kurzzeit-Ferienvermietung zugelassen



+ Option als Zweitwohnsitz



+ inkl. 2 Stellplätze € 24.000







Die Wohnung



Das Wohnhaus wurde 1969 erbaut und 2024 umfassend generalsaniert. Dabei entstanden fünf moderne Wohnungen. 



Zum Verkauf steht eine 2-Zimmer-Wohnung im 1. Obergeschoss mit einer Wohnfläche von ca. 73 m²:



Vom Eingangsbereicherreicht man das Badezimmer, das mit einer Dusche sowie einem Fenster ausgestattet ist. Die Toilette ist separat. Ebenfalls vom Entrée erreichbar ist das Schlafzimmer, die Küche, die mit einer Einbauküche und Miele Geräten ausgestattet ist, den Abstellraum, sowie das Wohnzimmer. Geheizt wird mit einer Luft-Wärme-Pumpe. Alle Fenster verfügen über außenliegende Sonnenbeschattung. Es wurden Parkettböden von TRAPA im gesamten Wohnbereich verlegt. Ein Kellerabteil bietet zusätzlichen Stauraum. Aktuell dürfen die Wohnungen als Zweitwohnsitz erworben werden. 



Kurzzeit-Ferienvermietung: Die Wohnung ist zur Kurzzeit-Ferienvermietung zugelassen und eignet sich daher ideal als Investment oder zur gelegentlichen Nutzung als Ferienwohnung.



***Die Bilder wurden virtuell möbliert***



Die Lage



Diese Immobilie befindet sich in einer begehrten Wohnlage am nördlichen Ende von Gmunden und bietet eine gute Infrastruktur. Durch die optimale öffentliche Anbindung sind das Stadtzentrum sowie der Bahnhof in wenigen Minuten erreichbar. Eine Bushaltestelle befindet sich vor dem Gebäude. Zudem befinden sich sämtliche Nahversorger, Schulen und Freizeiteinrichtungen in unmittelbarer Nähe.



Gmunden am Traunsee ist eine bezaubernde Stadt in Oberösterreich, die sich malerisch am Ufer des Traunsees erstreckt. Das Wahrzeichen der Stadt ist das idyllische Schloss Ort, das auf einer kleinen Insel im See thront und mit seiner historischen Pracht beeindruckt. Die charmante Altstadt besticht durch ihre verwinkelten Gassen, traditionellen Gebäude und den lebendigen Stadtplatz, der von gemütlichen Cafés und Geschäften gesäumt ist.



Die Umgebung bietet zahlreiche Freizeitmöglichkeiten: Der Traunsee lädt zu Bootsausflügen, Segeltörns und anderen Wassersportaktivitäten ein, während die umliegenden Berge perfekte Bedingungen für Wanderungen und Outdoor-Abenteuer bieten. Gmunden ist zudem für seine lange Keramiktradition bekannt, insbesondere die weltberühmte Gmundner Keramik, die den besonderen Charme dieser Stadt unterstreicht.



Als Teil des malerischen Salzkammerguts verbindet Gmunden eine hohe Lebensqualität mit einer reichen kulturellen Geschichte.



Entfernungen: Autobahn: ca. 10 Min., Flughafen Linz: ca. 45 Min.


Wir weisen darauf hin, dass zwischen dem Vermittler und dem zu vermittelnden Dritten ein familiäres oder wirtschaftliches Naheverhältnis besteht.


Der Vermittler ist als Doppelmakler tätig.

Infrastruktur / Entfernungen

Gesundheit
Arzt <2.000m
Apotheke <1.000m
Krankenhaus <2.500m
Klinik <2.500m

Kinder & Schulen
Schule <1.000m
Kindergarten <1.500m

Nahversorgung
Supermarkt <500m
Bäckerei <1.000m
Einkaufszentrum <1.000m

Sonstige
Bank <500m
Geldautomat <1.000m
Post <2.000m
Polizei <2.000m

Verkehr
Bus <500m
Straßenbahn <1.500m
Bahnhof <1.500m
Autobahnanschluss <5.500m
Flughafen <6.000m

Angaben Entfernung Luftlinie / Quelle: OpenStreetMap

Eckdaten Objektnr. 8425/140

Art: Wohnung
Land: Österreich
Baujahr: 1969
Alter: Neubau
Kaufpreis: 249.000,00
Provision: 3% des Kaufpreises zzgl. 20% USt.
Wohnfläche: 72,73 m²
Zimmer: 2
Bäder: 1
WC: 1
Keller: 5,20 m²
Heizwärmebedarf:  D  101,60 kWh/m²a
fGEE: 1,40
Immobilie merken Exposé

Ausstattung

Parkett, Fliesen, Bad mit Fenster, Badewanne, Dusche, Parkplatz


Immobilie anfragen


Ihre persönliche Beratung

von Alten Immobilientreuhand GmbH

Lucie von Alten

von Alten Immobilientreuhand e.U.

T +4369910816911