Kleingartenhaus auf Doppelparzelle im Eigentum - Ober St. Veit beim Lainzer Tiergarten
Haus
- Laube-Datsche-Garten,
1130
Wien















Beschreibung der Immobilie
Kleingartenhaus auf Doppelparzelle im Eigentum - Ober St. Veit beim Lainzer Tiergarten
Die Kleingartenanlage liegt am südwestlichen Hang des Gemeindebergs in Ober St. Veit und besticht durch ihre ruhige und sonnige Lage angrenzend an das Karmelitinnenkloster (ehemaliges Faniteum) und nur etwa 300 Meter vom St. Veiter Tor - dem Zugang zum Lainzer Tiergarten - entfernt.
Das angebotene Grundstück umfasst nahezu 700 m² und setzt sich aus zwei Gartenparzellen sowie zwei kleinen Wegparzellen zusammen. Das Grundstück ist im Eigentum (keine Pacht!), die jährliche Abrechnung der Interessensgemeinschaft „Miss in Kögeln“ für Wasser (nach Verbrauch), Müllabgaben, Versicherung der Wege, Reparaturen der allgemeinen Flächen und Rücklage belief sich 2024 auf rund EUR 280,--. Die Anlage ist gut mit der Buslinie 54B erreichbar - Haltestelle St. Veiter Tor, von dort erreicht man nach etwa 200 Metern den Garten über einen Fußweg. Parkplätze sind an der Bushaltestelle vorhanden, eine direkte Zufahrt zum Grundstück ist nicht möglich.
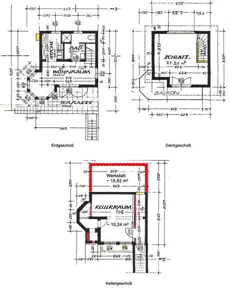
Das Grundstück hat die Widmung „Grünland – Erholungsgebiet – Kleingartengebiet“, die bebaute Fläche darf grundsätzlich 35 m² nicht überschreiten. Auf dem Grundstück sind 35 m² mit einem voll unterkellerten Kleingartenhaus aus dem Jahr 1990 verbaut. Die rund 47 m² Wohnfläche verteilen sich auf Erd- und Dachgeschoß, darüber hinaus gibt es eine ca. 12 m² große, mit einer Markise beschattete Terrasse sowie einen Balkon im Dachgeschoß mit Panoramablick auf die grüne Nachbarschaft.
Im Erdgeschoß verteilen sich Wohnraum, Küche und voll ausgestattetes Badezimmer (Waschtisch, Dusche, Wanne, WC, Waschmaschinenanschluss). Im Schlafzimmer im Dachgeschoß ist ein Split-Klimagerät installiert; an kühlen Tagen sorgen elektrische Heizlüfter für Wärme. Die Fenster im Erdgeschoß sind zweifach verglaste Holzfenster mit Außenrollos, die Dachgeschoßfenster sind zweifach verglaste Kunststofffenster mit Innenjalousien; die Aluminium-Balkontür ist mit Rollläden ausgestattet. Anschlüsse für Strom, Wasser, Kanal und Telefon sind vorhanden. Im Garten finden sich eine Gartenhütte sowie eine vielfältige Obstbepflanzung (Nussbaum, Sauerkirsche, Kirsche, Apfel, Zwetschke, Quitte, Dirndl, Kornellkirsche). Ein auf den Einreichplänen ersichtliches Schwimmbecken wurde inzwischen entfernt.
Abschließend sei noch einmal die begehrte Lage im 13. Bezirk ausdrücklich hervorgehoben: Die Parzelle verbindet die herrliche Sonnenlage in einer absolut ruhigen, von viel Grün umgebenen Kleingartenanlage, die unmittelbare Anbindung an den Lainzer Tiergarten für ausgedehnte Spaziergänge oder Laufrunden, mit guter öffentlicher Erreichbarkeit.
Der Vermittler ist als Doppelmakler tätig.
Infrastruktur / Entfernungen
Gesundheit
Arzt <1.000m
Apotheke <1.500m
Klinik <1.500m
Krankenhaus <2.000m
Kinder & Schulen
Schule <2.000m
Kindergarten <1.500m
Universität <1.500m
Höhere Schule <6.000m
Nahversorgung
Supermarkt <1.500m
Bäckerei <2.000m
Einkaufszentrum <5.000m
Sonstige
Geldautomat <2.000m
Bank <2.000m
Post <2.000m
Polizei <2.500m
Verkehr
Bus <500m
Straßenbahn <1.500m
U-Bahn <2.500m
Bahnhof <2.500m
Autobahnanschluss <4.500m
Angaben Entfernung Luftlinie / Quelle: OpenStreetMap
Eckdaten Objektnr. 95234
Art: | Haus - Laube-Datsche-Garten |
Land: | Österreich |
Baujahr: | 1990 |
Alter: | Neubau |
Kaufpreis: | 820.000,00 € |
Provision: | 3% des Kaufpreises zzgl. 20% USt. |
Wohnfläche: | 47,00 m² |
Grundstücksfl.: | 682,00 m² |
Zimmer: | 2 |
Bäder: | 1 |
Balkone: | 1 |
Terrassen: | 1 |
Keller: | 32,00 m² |
Ausstattung
Fliesen, Elektro, Einbauküche, Südbalkon, Bad mit Fenster, Badewanne, Dusche
Ihre persönliche Beratung

Maximilian Cypris
Rudi Dräxler Immobilientreuhand GesmbH
T +43 1 577 44 34
H +43 664 915 6444