Immobilienpaket in Wien-Floridsdorf – 6 Einheiten mit Option zur Kurzzeitvermietung
                                                            Zinshaus Renditeobjekt
                                ,
                            
                            
                                
                                                                            1210
                                    
                                                                            Wien
                                    
                                    
                                
                                                                    
                                        
                                    
                                
                            
                        
                        Beschreibung der Immobilie
Immobilienpaket in Wien-Floridsdorf – 6 Einheiten mit Option zur Kurzzeitvermietung
Zum Verkauf gelangt ein exklusives Wohnungspaket bestehend aus 6 modernen, lichtdurchfluteten Wohnungen im 21. Wiener Gemeindebezirk.
Die Wohnungen werden als Appartments zur Kurzzeitvermietung genutzt und sind demenstsprechend umgewidmet.
Bei den Immobilien handelt es sich um neu aufgebaute Altbauwohnungen. Insgesamt erstrecken sich die Wohnungen über ca. 383 m² Wohnnutzfläche, welche sich wie folgt aufteilt:
- 3-Zimmer Wohnung, Wohnnutzfläche ca. 69,95 m² im EG
- 2-Zimmer Wohnung, Wohnnutzfläche ca. 36,97 m² im EG
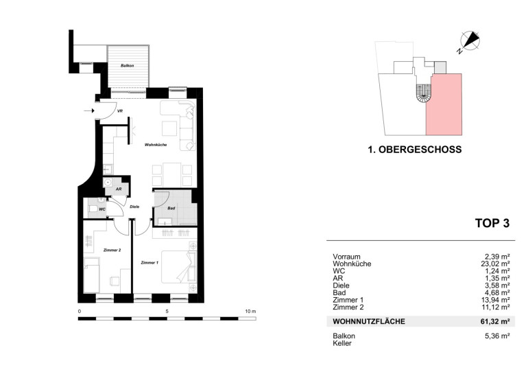
- 3-Zimmer Wohnung, Wohnnutzfläche ca. 61,32 m² im 1. OG
- 3-Zimmer Wohnung, Wohnnutzfläche ca. 76,41 m² im 1. OG
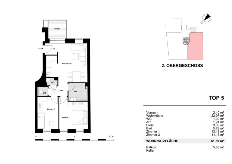
- 3-Zimmer Wohnung, Wohnnutzfläche ca. 61,59 m² im 2. OG
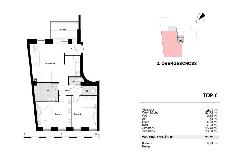
- 3-Zimmer Wohnung, Wohnnutzfläche ca. 76,72 m² im 2. OG
Die zum Verkauf stehenden Wohnungen verfügen über Fußbodenheizung, 3-fach verglaste Kunststofffenster und -terrassentüren mit außenliegendem Sonnenschutz, Parkettboden in den Haupträumen sowie Fliesen in den Nassräumen.
Das Objekt besticht durch die ausgezeichnete Lage in der Nähe des Floridsdorfer Aupark. In unmittelbarer Nähe befinden sich diverse Geschäfte des täglichen Bedarfs, Apotheken, Schulen, Restaurants und Cafés. Die Anbindung an den öffentlichen Verkehr wird über die S-Bahnlinien S1, S2, S3, S4 sowie S7, die U-Bahn Linie U6, Straßenbahnlinien 25, 26, 30 und 31 sowie über die Buslinien N31 gewährleistet. Für nähere Informationen zur Infrastruktur, fordern Sie bitte unser Exposé an.
Überzeugen Sie sich selbst von dieser atemberaubenden Immobilie.
Für Besichtigungen und nähere Informationen stehen wir Ihnen gerne zur Verfügung!
Herr Aleksandar Mihajlovic, MSc
national - Tel: 0660 652 5500
international - Tel: +43 660 652 5500
e-mail: mihajlovic@lifestyle-properties.at
Wir weisen darauf hin, dass zwischen dem Vermittler und dem zu vermittelnden Dritten ein familiäres oder wirtschaftliches Naheverhältnis besteht.
Der Vermittler ist als Doppelmakler tätig.
Infrastruktur / Entfernungen
Gesundheit
Arzt <500m
Apotheke <500m
Klinik <1.000m
Krankenhaus <1.500m
Kinder & Schulen
Schule <500m
Kindergarten <500m
Universität <1.000m
Höhere Schule <500m
Nahversorgung
Supermarkt <500m
Bäckerei <500m
Einkaufszentrum <1.000m
Sonstige
Geldautomat <500m
Bank <500m
Post <1.000m
Polizei <500m
Verkehr
Bus <500m
U-Bahn <1.000m
Straßenbahn <500m
Bahnhof <1.000m
Autobahnanschluss <500m
Angaben Entfernung Luftlinie / Quelle: OpenStreetMap
Eckdaten Objektnr. 5009
| Art: | Zinshaus Renditeobjekt | 
| Land: | Österreich | 
| Zustand: | Erstbezug | 
| Alter: | Altbau | 
| Kaufpreis: | 2.600.000,00 € | 
| Provision: | 3% des Kaufpreises zzgl. 20% USt. | 
| Wohnfläche: | 382,96 m² | 
| Balkone: | 4 | 
| Terrassen: | 1 | 
| Garten: | 41,11 m² | 
| Heizwärmebedarf: | C 69,00 kWh/m²a | 
| fGEE: | C 1,27 | 
Ausstattung
Fliesen, Parkett, Fußbodenheizung, Wohnküche / offene Küche, Personenaufzug
Ihre persönliche Beratung
 
                                                        Aleksandar Mihajlovic
Lifestyle Properties
T +43 1 512 14 84
H +43 660 6525500
F +43 1 512 14 84
 
                 
                 
                 
                 
                 
                 
                 
                 
                 
                 
                 
                 
                 
                 
                 
                 
                 
                 
                 
                 
                 
                 
                 
                 
                 
                 
                 
                 
                 
                