Charmante Wohnung in Dobl mit Balkon und KFZ-Stellplatz
Wohnung
,
8143
Dobl
Die Liegenschaft liegt in ruhiger Umgebung von Dobl. Einkaufsmöglichkeiten, Kindergarten und Schule sind im Ort vorhanden. Die Anbindung an die Stadt Graz ist durch die nahe gelegene Autobahnauffahrt sowie öffentliche Verkehrsmittel gewährleistet.
Beschreibung der Immobilie
Charmante Wohnung in Dobl mit Balkon und KFZ-Stellplatz
Charmante Wohnung mit Balkon in zentraler Lage von Dobl – Viel Platz und tolle Aufteilung!
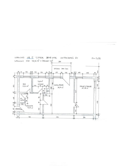
Die Wohnung befindet sich im 1. Obergeschoß eines gepflegten Wohnhauses in Unterberg.
Der Grundriss ist funktional und ermöglicht eine klare Trennung der einzelnen Bereiche.
Der Vorraum erschließt sämtliche Räume. Das Wohnzimmer ist großzügig geschnitten und verfügt über einen direkten Zugang zum Balkon, der zusätzlichen Außenraum schafft. Die Küche ist separat angelegt und eignet sich sowohl zum Kochen als auch als kleiner Essbereich.
Das Schlafzimmer ist hell und bietet ausreichend Platz für ein Doppelbett und Stauraum. Das Badezimmer ist mit einer Badewanne ausgestattet, die Toilette ist separat. Ein Abstellbereich im Vorraum ergänzt die Nutzflächen.
Zur Wohnung gehört ein fixer Parkplatz, der im Mietpreis inkludiert ist. Die Heizkosten (die Wohnung wird mit Strom mittels Infrarotpaneele beheizt) werden nicht über die Miete abgerechnet, sondern direkt mit dem Energieanbieter verrechnet.
Die Liegenschaft liegt in ruhiger Umgebung mit guter Anbindung. Nahversorgung, öffentliche Einrichtungen und die Stadt Graz sind rasch erreichbar.
Für weitere Informationen oder einen Besichtigungstermin stehe ich Ihnen gerne zur Verfügung.
Wir weisen darauf hin, dass zwischen dem Vermittler und dem zu vermittelnden Dritten ein familiäres oder wirtschaftliches Naheverhältnis besteht.
Der Immobilienmakler erklärt, dass er – entgegen dem in der Immobilienwirtschaft üblichen Geschäftsgebrauch des Doppelmaklers – einseitig nur für den Vermieter tätig ist.
Infrastruktur / Entfernungen
Gesundheit
Arzt <500m
Apotheke <2.500m
Kinder & Schulen
Schule <3.500m
Kindergarten <4.500m
Nahversorgung
Supermarkt <2.500m
Bäckerei <2.000m
Einkaufszentrum <8.000m
Sonstige
Bank <3.500m
Geldautomat <3.000m
Post <3.500m
Polizei <3.500m
Verkehr
Bus <500m
Autobahnanschluss <1.000m
Bahnhof <3.500m
Flughafen <7.000m
Angaben Entfernung Luftlinie / Quelle: OpenStreetMap
Eckdaten Objektnr. 7314/577
Art: | Wohnung |
Land: | Österreich |
Zustand: | Modernisiert |
Alter: | Neubau |
Gesamtmiete: | 740,00 € |
Kaltmiete (netto): | 502,29 € |
Kaltmiete: | 672,73 € |
Provision: | Gemäß Erstauftraggeberprinzip bezahlt der Abgeber die Provision. |
Betriebskosten: | 170,44 € |
MwSt Gesamt: | 67,27 € |
Wohnfläche: | 78,46 m² |
Zimmer: | 2,50 |
Bäder: | 1 |
WC: | 1 |
Balkone: | 1 |
Stellplätze: | 1 |
Heizwärmebedarf: | C 58,60 kWh/m²a |
fGEE: | D 1,88 |
Ausstattung
Fliesen, Parkett, Elektro, Einbauküche, Bad mit Fenster, Badewanne, Kabel/Satelliten-TV, Parkplatz
Ihre persönliche Beratung

Jana Lucic
Golden Service GmbH | Great Sales - Premium Immobilienvermittlung
T +43 316 44 50 05
H +43 664 3938185