Modernes und schönes Büro im Ares Tower - 12. Stock - 1220 Wien
Büro / Praxis
,
1220
Wien
,
Donau-City-Straße
Beschreibung der Immobilie
Modernes und schönes Büro im Ares Tower - 12. Stock - 1220 Wien
Einmalige Gelegenheit im Ares Tower Wien – Modernes Büro mit Top-Ausstattung & Donau-Blick
Liebe Unternehmerinnen und Unternehmer,
dies ist Ihre Chance, ein repräsentatives Büro in einer der besten Lagen Wiens zu übernehmen. Das Objekt überzeugt durch hochwertige Ausstattung, flexible Nutzungsmöglichkeiten und eine beeindruckende Aussicht auf die Donau. Ein Arbeitsumfeld, in dem sich Ihre Mitarbeiterinnen und Mitarbeiter rundum wohlfühlen werden.
Objektbeschreibung
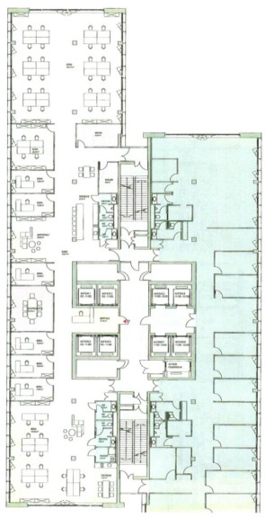
Das Büro befindet sich im renommierten Ares Tower und bietet auf ca. 695 m² Platz für 48 Arbeitsplätze (laut Plan), wahrscheinlich sind mehr möglich. Neben großzügigen Open-Space-Flächen erwarten Sie separate Büros, moderne Meetingräume sowie eine exklusive Lounge- und Küchenlandschaft. Die Flächen sind flexibel nutzbar und können individuell an Ihre Anforderungen angepasst werden.
Raumaufteilung
- Großzügige Open-Space-Bereiche / Event- & Besprechungsflächen inkl. offener Küche
- 6 Einzel- bzw. Teambüros
- 2 Meetingräume (geschlossen & offen)
- Chillout- und Pausenbereich mit hochwertiger Designküche
- Separate Sanitäreinheiten für Damen und Herren
- Badezimmer mit Dusche und Waschmaschine
- Abstellraum, Serverraum und Lagerflächen
Highlights & Extras
- Hochwertige Ausstattung mit Premium-Küche & modernen Raumtrennungen
- Repräsentativer Eingangsbereich
- Flexibles Raumkonzept, modern & hochwertig ausgeführt
- Möglichkeit, die Einrichtung gegen faire Ablöse zu übernehmen
- Zahlreiche Parkmöglichkeiten in der hauseigenen Garage & umliegenden Gebäuden
- Rollstuhlgerecht / barrierefrei
- Kühlung, Bodentanks, Teppichbodenfliesen
- Terrasse mit Blick auf die Donau
- Anlieferungszone für LKWs
- Sanitärbereiche in neuwertigem Zustand
- Flexible Vertragsgestaltung: Einstieg in bestehenden Mietvertrag (Kündigungsverzicht noch 2,5 Jahre, danach monatlich kündbar, 3 Monate Frist). Verlängerung oder Neuvertrag möglich.
Infrastruktur & Lage
Die Lage im Business Viertel Donaucity bietet eine ausgezeichnete Infrastruktur:
- U1 „Kaisermühlen VIC“ in unmittelbarer Nähe – nur wenige Minuten ins Zentrum
- Schnelle Anbindung an die A22 sowie die Flughafenautobahn
- Restaurants, Cafés und Einkaufsmöglichkeiten fußläufig erreichbar
- Donauinsel als Naherholungsgebiet direkt vor der Tür
Ausstattung & Technik
- Klimatisierte Büroflächen mit Heizkörpern (Fernwärme)
- Zentralheizung im Gebäude
- Modernste Gebäudetechnik und Sicherheitsstandards
Kosten
- Hauptmietzins: € 10.932,15 + 20 % USt € 2.186,43 = € 13.118,58
- Betriebskosten-Akonto: € 2.085,00 + 20 % USt € 417,00 = € 2.502,00
- Energie-Akonto: € 1.508,15 + 20 % USt € 301,63 = € 1.809,78
- Sicherheits-Akonto: € 194,60 + 20 % USt € 38,92 = € 233,52
👉 Gesamt netto: € 14.719,90
👉 + 20 % USt: € 2.943,98
👉 Gesamt monatlich brutto: € 17.663,88
- Kaution: 3 Bruttomonatsmieten (Bankgarantie möglich)
- Provision: 3 Bruttomonatsmieten + 20% USt.
- Vergebührung: laut Gebührengesetz
Fazit
Ein repräsentatives Büro mit höchstem Komfort, modernster Ausstattung und einzigartiger Aussicht – ideal für Unternehmen, die Wert auf Qualität, Flexibilität und eine Top-Lage in Wien legen.
Der Ares Tower zählt zu den renommiertesten Bürogebäuden in der Wiener Donaucity und überzeugt durch seine moderne Architektur sowie eine repräsentative Außenwirkung. Die lichtdurchfluteten Büroflächen schaffen ein angenehmes Arbeitsumfeld und lassen sich flexibel an individuelle Unternehmensbedürfnisse anpassen. Die Lage direkt an der U1-Station Kaisermühlen VIC garantiert eine rasche Verbindung in die Wiener Innenstadt sowie zum Hauptbahnhof. Über die nahe A22 und die Flughafenautobahn ist auch der Flughafen Wien in kurzer Zeit erreichbar – ein Vorteil für internationale Geschäftsbeziehungen. In unmittelbarer Umgebung stehen zahlreiche Gastronomiebetriebe, Einkaufsmöglichkeiten und Serviceeinrichtungen zur Verfügung. Zudem bietet die angrenzende Donauinsel ein attraktives Naherholungsgebiet für Pausen oder sportliche Aktivitäten nach der Arbeit. Hochwertige Gebäudetechnik, moderne Sicherheitsstandards und ein professionelles Management gewährleisten einen reibungslosen Betrieb. Damit ist der Ares Tower eine erstklassige Adresse für Unternehmen, die auf Prestige, Komfort und optimale Infrastruktur setzen.
Umgebung & Lage
Die Infrastruktur rund um die Immobilie ist hervorragend:
- Gesundheit: Arzt (<500 m), Apotheke (<250 m), Klinik (<1.250 m), Krankenhaus (<2.250 m)
- Kinder & Bildung: Schule (<250 m), Kindergarten (<250 m), Universität (<1.750 m), Höhere Schule (<3.000 m)
- Nahversorgung: Supermarkt (<250 m), Bäckerei (<250 m), Einkaufszentrum (<2.000 m)
- Verkehrsanbindung: U-Bahn (<500 m), Bahnhof (<500 m), Autobahnanschluss (<250 m)
- Weitere Einrichtungen: Bank (<250 m), Post (<500 m), Polizei (<500 m)
Damit bietet die Lage eine perfekte Kombination aus zentraler Versorgung, schneller Erreichbarkeit und idealer Anbindung.
Der Vermittler ist als Doppelmakler tätig.
Infrastruktur / Entfernungen
Gesundheit
Arzt <500m
Apotheke <250m
Klinik <1.250m
Krankenhaus <2.250m
Kinder & Schulen
Schule <250m
Kindergarten <250m
Universität <1.750m
Höhere Schule <2.750m
Nahversorgung
Supermarkt <250m
Bäckerei <250m
Einkaufszentrum <2.000m
Sonstige
Geldautomat <250m
Bank <250m
Post <250m
Polizei <750m
Verkehr
Bus <500m
U-Bahn <500m
Straßenbahn <1.250m
Bahnhof <500m
Autobahnanschluss <250m
Angaben Entfernung Luftlinie / Quelle: OpenStreetMap
Eckdaten Objektnr. 199396994
Art: | Büro / Praxis |
Land: | Österreich |
Zustand: | Neuwertig |
Alter: | Neubau |
Kaltmiete (netto): | 10.932,00 € |
Kaltmiete: | 13.211,00 € |
Betriebskosten: | 2.085,00 € |
Heizkosten: | 1.508,00 € |
MwSt Gesamt: | 2.943,80 € |
Nutzfläche: | 695,00 m² |
Bürofläche: | 695,00 m² |
Zimmer: | 10 |
Balkone: | 1 |
Heizwärmebedarf: | B 30,00 kWh/m²a |
fGEE: | B 1,00 |
Ausstattung
Fliesen, Parkett, Zentralheizung, Einbauküche, Lastenaufzug, Personenaufzug
Ihre persönliche Beratung

Ing. Philipp Blaha
Lorenz Real Construct Immobilien GmbH
T +43 660 3278082