Architektur trifft Lebensqualität - exklusiv in Salzburg Herrnau
Wohnung
,
5020
Salzburg
Die Herrnaugasse zählt zu den begehrtesten Wohnlagen in Salzburg: ruhig, grün und gleichzeitig bestens angebunden. Hier genießen Sie die perfekte Balance zwischen urbanem Komfort und privatem Rückzugsort. In wenigen Minuten erreichen Sie die Salzburger Altstadt, während Naherholungsgebiete wie die Salzachufer und die Hellbrunner Allee zu entspannten Spaziergängen einladen. Einkaufsmöglichkeiten, Schulen, Cafes und Restaurants befinden sich in unmittelbarer Nähe - alles, was das tägliche Leben angenehm macht, liegt direkt vor Ihrer Haustüre.
Beschreibung der Immobilie
Architektur trifft Lebensqualität - exklusiv in Salzburg Herrnau
Ein Refugium für Anspruchsvolle - modernes Wohnen in zentraler, ruhiger Lage.
Diese stilvolle Gartenwohnung vereint modernes Wohngefühl mit einem hohen Maß an Lebensqualität. In ruhiger, zugleich zentraler Lage von Salzburg Herrnau entsteht ein Zuhause, das urbanen Komfort und private Rückzungsmöglichkeiten perfekt verbindet.
Die durchdachte Raumaufteilung bietet einen offenen Wohn/Essbereich mit Zugang in den Garten, zwei helle Schlafzimmer und ein elegantes Badezimmer sowie einem großen Abstellraum mit Zugang zum Garten.
Hochwertige Materialien und eine zeitlose Architektur machen diese 3- Zimmer - Gartenwohnung zu einem besonderen Rückzugsort für alle, die das Besondere suchen. Ankommen, durchatmen, zuhause sein - mitten in Salzburg und doch ganz bei sich.
Wir weisen darauf hin, dass zwischen dem Vermittler und dem zu vermittelnden Dritten ein familiäres oder wirtschaftliches Naheverhältnis besteht.
Der Vermittler ist als Doppelmakler tätig.
Infrastruktur / Entfernungen
Gesundheit
Arzt <500m
Apotheke <1.000m
Klinik <1.000m
Krankenhaus <1.500m
Kinder & Schulen
Schule <1.000m
Kindergarten <500m
Universität <500m
Höhere Schule <3.500m
Nahversorgung
Supermarkt <500m
Bäckerei <1.000m
Einkaufszentrum <1.000m
Sonstige
Bank <500m
Geldautomat <500m
Post <1.000m
Polizei <500m
Verkehr
Bus <500m
Bahnhof <2.000m
Autobahnanschluss <4.500m
Flughafen <5.000m
Angaben Entfernung Luftlinie / Quelle: OpenStreetMap
Eckdaten Objektnr. 1792/80
Art: | Wohnung |
Land: | Österreich |
Baujahr: | 2026 |
Zustand: | Erstbezug |
Alter: | Neubau |
Kaufpreis: | 1.340.000,00 € |
Provision: | 3% des Kaufpreises zzgl. 20% USt. |
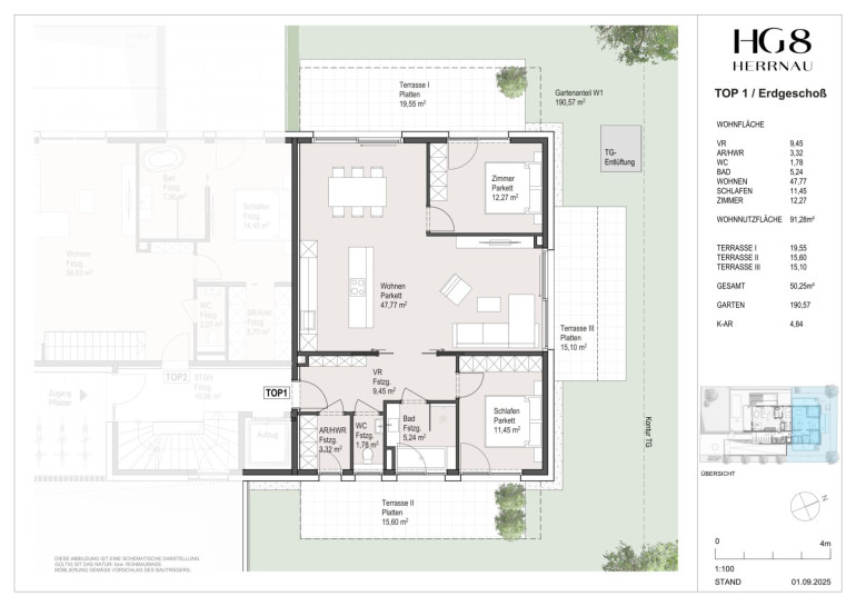
Wohnfläche: | 91,44 m² |
Zimmer: | 3 |
Bäder: | 1 |
WC: | 1 |
Terrassen: | 3 |
Stellplätze: | 2 |
Garten: | 190,57 m² |
Ausstattung
Fliesen, Parkett, Erdwärme, Fußbodenheizung, Personenaufzug, Bad mit Fenster, Dusche, Tiefgarage
Ihre persönliche Beratung

Susanna Scharler
asset.X Immobilien
T +43 664 523 83 03