Premium Bungalow in Weiden am See mit Garten und Bootsanleger

Haus - Bungalow, 7121 Weiden am See


Das Haus liegt in herausragender Lage direkt am Ufer des Neusiedlersees in Weiden am See und vereint Ruhe, Naturverbundenheit und beste Infrastruktur auf besondere Weise. Umgeben von sanften Weinbergen, weitläufigen Schilfflächen und der unverwechselbaren Landschaft des UNESCO-Welterbes Neusiedler See–Fertő bietet diese Umgebung ein einzigartiges Lebensgefühl. Der direkte Zugang zum Wasser schafft ideale Voraussetzungen für Segeln, Surfen oder entspanntes Baden und macht den See zu einem festen Bestandteil des Alltags. Weiden am See überzeugt zudem mit einer sehr guten Verkehrsanbindung. Sowohl mit dem Auto als auch mit öffentlichen Verkehrsmitteln ist der Ort schnell und unkompliziert erreichbar. Vor Ort erwartet Sie ein abwechslungsreiches Angebot an Restaurants, Cafés und Einkaufsmöglichkeiten. Kulturelle Veranstaltungen und Weinfeste bereichern das Leben ebenso wie die Nähe zu Podersdorf, Neusiedl am See und dem Nationalpark Neusiedler See–Seewinkel, die zahlreiche Freizeit- und Erholungsangebote bieten. Diese Lage verbindet naturnahes Wohnen am Wasser mit hohem Wohnkomfort und vielseitigen Freizeitmöglichkeiten und ist damit sowohl für den dauerhaften Lebensmittelpunkt als auch für ein exklusives Feriendomizil bestens geeignet.

Beschreibung der Immobilie

Premium Bungalow in Weiden am See mit Garten und Bootsanleger

Ein Seehaus, das modernes Wohnen, Naturverbundenheit und Exklusivität in einzigartiger Weise vereint!


Diese im Jahr 2023 erbaute Immobilie bietet nicht nur höchsten Wohnkomfort, sondern auch eine direkte Verbindung zum Neusiedlersee – inklusive eigenem Bootsanleger.



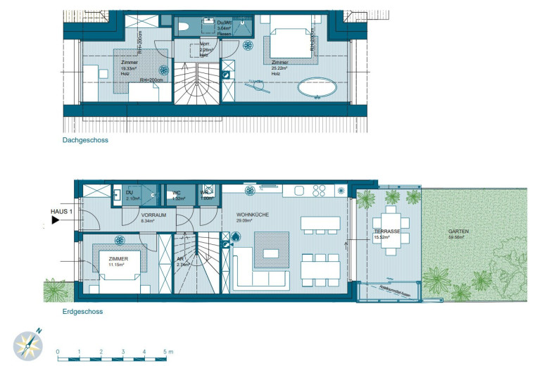
Auf rund 105,6 m² Wohnfläche entfaltet sich ein durchdachtes Wohnkonzept über zwei Ebenen. Lichtdurchflutete Räume, edle Oberflächen und eine großzügige Raumaufteilung schaffen eine Atmosphäre, in der sich Familien ebenso wohlfühlen wie Paare, die Wert auf Ruhe, Stil und Lebensqualität legen.



Das Erdgeschoss empfängt mit einem einladenden Eingangsbereich samt Garderobe. Mittelpunkt des Hauses ist die großzügige Wohnküche mit Essbereich, die nahtlos in das gemütliche Wohnzimmer übergeht. Von hier aus öffnen sich die Türen zur sonnigen Terrasse und in den liebevoll angelegten Garten – ein Ort für entspannte Frühstücke, gesellige Grillabende oder einfach für Momente der Ruhe. Ergänzt wird das Erdgeschoss durch ein flexibles Gästezimmer oder Büro, ein modernes Badezimmer sowie ein separates Gäste-WC.

Im Obergeschoss befinden sich zwei großzügige Schlafzimmer sowie ein stilvoll ausgestattetes Badezimmer mit WC – ideal als privater Rückzugsort.



Auch technisch erfüllt die Immobilie höchste Ansprüche: Eine Luft-Wärmepumpe sorgt für effiziente Wärme und Warmwasser, gesteuert bequem per App. Die Fußbodenheizung schafft behagliche Wärme im ganzen Haus. Ergänzt wird die Ausstattung durch elektrische Raffstores oder Sonnenschutzverglasung, einen Kaminanschluss, Rauchmelder und ein intelligentes Smart-Home-System (Loxone), das Licht, Sonnenschutz und mehr komfortabel per Bewegungsmelder, App oder Schalter steuert.



Der Außenbereich ist ein Highlight für sich: Der grün angelegte, blickgeschützte Garten lädt zum Entspannen ein, die Terrasse bietet Sonne sehr viel Sonne und mit dem eigenen Bootsanleger genießen Sie den direkten Zugang zum Wasser – eine Seltenheit, die dieses Haus zu etwas ganz Besonderem macht. Ein privater Autoabstellplatz inklusive E-Ladestation rundet das Angebot ab.



Hier entstehen nicht nur Räume zum Wohnen, sondern ein Zuhause zum Leben, Genießen und Ankommen – direkt am See.



Alle Daten auf einen Blick:




  • Baujahr: 2023



  • Wohnfläche: ca. 105,59 m² auf zwei Ebenen



  • Terrasse: ca. 15,52 m²



  • Garten: ca. 59,70 m²



  • Zusätzlich: Bootsanleger und Parkplatz



  • Heizung: Die Bereitstellung der Wärme/ des Warmwassers erfolgt mittels einer eigenen Luft-Wärmepumpe. Diese lässt sich mittels App vom Smartphone aus regeln. Die Beheizung selbst erfolgt vollflächig über eine Fußbodenheizung.



  • Zusätzliche Ausstattung:




    • Sonnenschutz: Außenliegende Raffstore (elektrisch, einzeln bedienbar) oder Sonnenschutzverglasung



    • Kaminanschluss



    • Rauchmelder



    • Smart Home: Loxone Bus-System; Steuerung von Beleuchtung (DALI-fähig), Sonnenschutz via Bewegungsmelder, App, iPad oder Schalter; Schalterprogramm: Jung Serie A 550 (ergänzt mit Loxone).







Raumaufteilung – klug und familienorientiert



Erdgeschoss:




  • Eingangsbereich mit Garderobe



  • Große Wohnküche mit Essbereich, viel Tageslicht, edle Oberflächen



  • Gemütliches Wohnzimmer mit Zugang zur Terrasse und Garten



  • Gästezimmer oder Büro



  • Gäste-WC



  • Badezimmer




Obergeschoss:




  • Zwei großzügige Schlafzimmer 



  • Modern ausgestattetes Badezimmer mit WC




Außenbereich – Rückzugsort, Entspannung & Naturverbundenheit




  • Grün angelegter Garten, durch Hecken und Zaun blickgeschützt



  • Sonnige Terrasse  – ideal für Grillabende, Frühstück im Freien oder einfach zum Entspannen



  • Eigener Autoabstellplatz 



  • Bootsanleger



  • Direkter Zugang zum Neusiedlersee





Wir weisen darauf hin, dass zwischen dem Vermittler und dem zu vermittelnden Dritten ein familiäres oder wirtschaftliches Naheverhältnis besteht.


Der Vermittler ist als Doppelmakler tätig.

Infrastruktur / Entfernungen

Gesundheit
Arzt <2.500m
Apotheke <2.000m

Kinder & Schulen
Schule <3.000m
Kindergarten <3.000m

Nahversorgung
Supermarkt <2.000m
Bäckerei <3.500m
Einkaufszentrum <6.500m

Sonstige
Bank <1.500m
Geldautomat <1.500m
Post <1.500m
Polizei <5.000m

Verkehr
Bus <1.500m
Bahnhof <1.500m
Autobahnanschluss <6.000m

Angaben Entfernung Luftlinie / Quelle: OpenStreetMap

Eckdaten Objektnr. 1949/45

Art: Haus - Bungalow
Land: Österreich
Baujahr: 2023
Alter: Neubau
Kaufpreis: 1.200.000,00
Provision: 3% des Kaufpreises zzgl. 20% USt.
Wohnfläche: 105,59 m²
Zimmer: 4
Bäder: 2
WC: 2
Terrassen: 1
Stellplätze: 1
Garten: 59,70 m²
Immobilie merken Exposé

Ausstattung

Parkettboden, Fußbodenheizung, Wohnküche / offene Küche, Parkplatz


Immobilie anfragen


Ihre persönliche Beratung

JR Invest

Constantin Jakobljevich

JR Invest

H +43 664 847 02 67