BAUGRUNDSTÜCK MIT EINREICHPLANUNG
Grundstück
- Baugrund Eigenheim,
1130
Wien
Beschreibung der Immobilie
BAUGRUNDSTÜCK MIT EINREICHPLANUNG
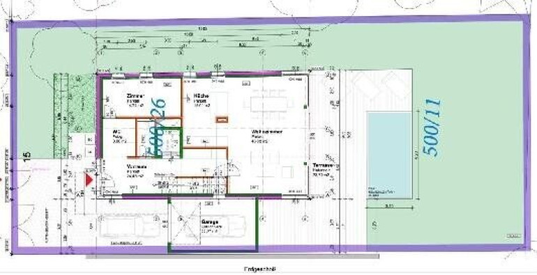
BAUGRUNDSTÜCK MIT EINREICHPLANUNGZum Verkauf steht das 612m² große Grundstück mit genehmigter Planung ein Einfamilienhaus auf 3 Ebenen
Wohnfläche: ca. 265 m²
Keller: ca. 107m²
Terrassen: ca. 103m²
Erdgeschoss:
Vorzimmer, Wohnzimmer mit offener Küche und Ausgang auf eine Terrasse, Arbeitszimmer, WC
1.Obergeschoss:
3 Schlafzimmer mit en-suite Bädern
Dachgeschoss:
2 Schlafzimmer, Bad, WC und 2 Terrassen
Kellergeschoss:
Technikraum ,Fitnessraum sowie Garagenplatz.
Kaufpreis mit genehmigter Planung: EUR 1.800.000,-
Ein Energieausweis wurde vom Eigentümer angefordert und wird nachgereicht.
Infrastruktur / Entfernungen
Gesundheit
Arzt <1.000m
Apotheke <1.000m
Klinik <500m
Krankenhaus <500m
Kinder & Schulen
Schule <1.000m
Kindergarten <500m
Universität <2.000m
Höhere Schule <4.500m
Nahversorgung
Supermarkt <500m
Bäckerei <500m
Einkaufszentrum <4.000m
Sonstige
Geldautomat <500m
Bank <500m
Post <1.000m
Polizei <1.000m
Verkehr
Bus <500m
Straßenbahn <500m
U-Bahn <2.500m
Bahnhof <500m
Autobahnanschluss <3.500m
Angaben Entfernung Luftlinie / Quelle: OpenStreetMap
Eckdaten Objektnr. 18028
Art: | Grundstück - Baugrund Eigenheim |
Land: | Österreich |
Kaufpreis: | 1.450.000,00 € |
Provision: | 3% des Kaufpreises zzgl. 20% USt. |
Grundstücksfl.: | 612,00 m² |
Ihre persönliche Beratung

Mag. Robin Kalandra
KALANDRA Immobilien Robert Kalandra e.U.
T +43-1533326913
H +43-69911804004
F +43-1-533-32-69-20