Rohbau in toller Lage in 3362 Öhling!
Haus
,
3362
Öhling
- ruhige Siedlungslage - traumhafter Aus- bzw. Fernblick - nur knapp 10 km von Amstetten entfernt - gute Verkehrsanbindung (ca. 8 km zur Westautobahn A1 Auffahrt Oed oder ca. 6 km zur Auffahrt Amstetten-West)


























Beschreibung der Immobilie
Rohbau in toller Lage in 3362 Öhling!
Ihr "neuer" Wohntraum - Einfamilienhausrohbau in absolut toller Lage:
Diese traumhafte Liegenschaft beinhaltet ein Wohnhaus mit knapp 230 m² Wohnfläche, das sich auf einem 978 m² großen Grundstück befindet.
Die Liegenschaft befindet sich in einer neueren, ruhigen Wohnsiedlung am Ortsrand von Öhling. Die Gemeinde Oed-Öhling ist eine Gemeinde im westlichen Niederösterreich mit rund 2.000 Einwohnern, die durch die Nähe zur Bezirkshauptstadt Amstetten als Wohnort immer mehr Beliebtheit erfährt. Zahlreiche Vereine, wie die Freiwilligen Feuerwehren, der Musikverein, der Elternverein und verschiedene Sportvereine, bestimmen durch ihre Aktivitäten das öffentliche Leben mit. Sie geben der Jugend ein breites Betätigungsfeld. Die Marktgemeinde stellt dafür Sport- und Spielplätze zur Verfügung und unterstützt die Bemühungen der vielen freiwilligen Funktionäre und Helfer.
Im Ort sind ein Kindergarten, eine Volksschule und auch ein Lebensmittelmarkt vorhanden, die jeweils sehr rasch zu erreichen sind.
Der Hausbau wurde im Jahr 2021 begonnen. wobei sowohl der Keller, als auch die beiden Wohngeschoße, sowie die Doppelgarage in Massivbauweise (Beton bzw. Ziegel) errichtet wurden.
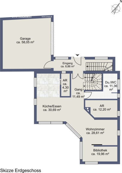
Erdgeschoss mit der zum Teil überdachten und nach Südwesten ausgerichteten Terrasse.
Die gemeinsame Zeit mit der Familie verbringen Sie im geräumigen, offenen Küchen-/Ess- bzw. Wohnbereich mit direktem Zugang ins Freie auf die großzügige Terrasse und den anschließenden Garten. Direkt neben der Küche ist auch eine Speis geplant. Als Alternative zur geplanten Fußbodenheizung (beheizt durch Luftwärmepumpe) können Sie in diesem Bereich auch einen Kachel- oder Kaminofen errichten. Durch die großen Glasflächen können Sie zu jeder Jahreszeit den wunderschönen Blick nach draußen genießen. Zusätzlich gibt es noch einen weiteren Raum, den Sie als Bibliothek, als Büro oder gerne natürlich auch als Gästezimmer verwenden können. Weiters ist noch ein sehr großer Abstellraum (von der Größe her gesehen eigentlich noch ein weiteres Zimmer) vorhanden. Komplettiert wird der Wohnbereich des Erdgeschosses durch ein Badezimmer inkl. Dusche und Gäste-WC.
Zusätzlich vorhanden ist noch eine ca. 58 m² große Doppelgarage, von der Sie auch einen direkten Zugang ins Haus haben.
Obergeschoss
Hier befinden sich insgesamt drei sehr geräumige Kinderzimmer, ein Schlafzimmer mit Schrankraum, das Familienbadezimmer und ein separates WC. Vom Schlafzimmer gelangen Sie auf einen eigenen nach Südosten ausgerichteten Balkon. Bei den 3 Kinderzimmern gibt es jeweils einen Ausgang auf einen gemeinsamen nach Südwesten ausgerichteten Balkon. Auch das Badezimmer mit einer Größe von ca. 18 m² wurde so konzipiert, dass es auch in diesem Bereich keine Platzängste gibt.
Kellergeschoss
Nachdem auch die Garage unterkellert wurde hat der Keller eine gesamte Nutzfläche von über 200 m², wobei die einzelnen Flächen in verschiedenster Art und Weise genutzt werden können (Werkstatt, Kellerstüberl, Fitnessraum, Lagerraum, etc.). Auch ein zusätzliches Bad mit einer Größe von über 15 m² wurde hier bereits geplant und vorinstalliert.
Ein örtlicher Baumeister hat aufgrund einer Objektbesichtigung eine fachtechnische Stellungnahme hinsichtlich möglicher Ausführungsmängel und eine Grobkostenschätzung für die Behebung dieser Mängel erstellt. Bei konkretem Interesse können wir Ihnen selbstverständlich gerne diese Unterlagen zusenden.
Wir ersuchen um Verständnis, dass wir aufgrund der Nachweispflicht gegenüber dem Eigentümer nur Anfragen mit vollständiger Angabe Ihrer Daten (Name, Postanschrift, Telefonnummer und E-Mail-Adresse) bearbeiten können.
Infrastruktur / Entfernungen
Gesundheit
Arzt <1.000m
Apotheke <1.500m
Klinik <1.500m
Krankenhaus <1.500m
Kinder & Schulen
Schule <1.000m
Kindergarten <1.000m
Nahversorgung
Supermarkt <1.000m
Bäckerei <1.000m
Einkaufszentrum <3.000m
Sonstige
Bank <1.000m
Geldautomat <1.000m
Post <1.000m
Polizei <4.000m
Verkehr
Bus <1.000m
Autobahnanschluss <4.000m
Bahnhof <1.000m
Angaben Entfernung Luftlinie / Quelle: OpenStreetMap
Eckdaten Objektnr. 960/73107
Art: | Haus |
Land: | Österreich |
Zustand: | Rohbau |
Alter: | Neubau |
Kaufpreis: | 340.000,00 € |
Provision: | 3% des Kaufpreises zzgl. 20% USt. |
Wohnfläche: | 228,37 m² |
Grundstücksfl.: | 978,00 m² |
Zimmer: | 6 |
Bäder: | 3 |
WC: | 3 |
Balkone: | 2 |
Keller: | 207,30 m² |
Heizwärmebedarf: | B 37,00 kWh/m²a |
fGEE: | A+ 0,64 |
Ihre persönliche Beratung
Dieser Makler ist ein offizielles Mitglied des IR – ir.at Mehr Erfahren