Pferdehof Projekt im Ausseerland
Grundstück
,
8982
Tauplitz
Bad Aussee, Altaussee und Grundlsee sind jeweils nur ca. 25 km, die Kaiserstadt Bad Ischl (Europäische Kulturhauptstadt 2024) ca. 50 km und die Festspielstadt Salzburg und deren Internationaler Flughafen ca. 100 km entfernt. Neben der Schnellstraße B145 Richtung Liezen (Graz und Schladming) und Bad Ischl (Linz/Wien und Salzburg), ist man durch die Salzkammergutbahn mit der Westbahn (Wien-Salzburg-München) verbunden und eine Anreise auch mit öffentlichen Verkehrsmitteln bequem möglich. Das Skigebiet und Ganzjahres-Erholungsgebiet ‚Tauplitzalm‘ erreicht man durch einen modernen Sessellift, in unmittelbarer Nähe gibt es den örtlichen Schlepplift. Die örtliche Langlaufloipe verläuft entlang der Grundstücksgrenze. Durch die Lage von Tauplitz auf 900 m Seehöhe sowie der Tauplitzalm auf 1.650 m ist hier ein nachhaltiger Schi-Betrieb mit hoher Schneesicherheit gewährleistet, die Region gilt als nebelfrei.
Beschreibung der Immobilie
Pferdehof Projekt im Ausseerland
Das angebotene über 5,3 Hektar große Areal für die Realisierung eines Pferdehofes befindet sich in ausnehmend schöner Panoramalage oberhalb von Tauplitz im Landschaftsschutzgebiet. Der traditionsreiche Ort Tauplitz ist seit 2015 Teil der Marktgemeinde Bad Mitterndorf, die gemeinsam mit Bad Aussee, Altaussee und Grundlsee das Steirische Salzkammergut bildet - den Geographischen Mittelpunkt Österreichs.
Die Grundstücke beeindrucken mit ihren sanft abfallenden Wiesen und malerischen Baumgruppen, der Blick auf den Ort und die markante umliegende Bergwelt, allen voran dem beeindruckenden Massiv des Grimming, ist wie die Umgebung unverbaubar.
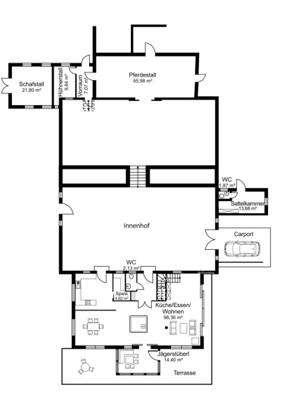
Die 2025 erwirkte Bewilligung für die Errichtung eines Pferdehofes, bestehend aus einem großzügigen vollunterkellerten Bauernhaus samt Nebengebäuden (Stallgebäude, Carport und Sattelkammer) Schwimmteich, Reitplatz, erschlossen über eine privaten Zufahrtstraße stellt eine absolute Rarität dar.
Ein von der Agrarbehörde genehmigtes Bewirtschaftungskonzept als Basis der Hofgründung liegt vor. Seine Umsetzung sowie die Eigenschaft des Käufers als Landwirt sind Voraussetzungen für den Erwerb der Liegenschaft sowie die Realisierung des Projekts.
Die idyllische Lage mit prachtvollem Blick ist unverbaubar, ganzjährig sonnig und ruhig. Der künftige Hof im oberen Teil des Grundstücks wird über eine private Zufahrtstraße vom öffentlichen Weg erschlossen. Die Liegenschaft verfügt über eine eigene Quelle, Strom- und Kanal- Anschlussmöglichkeit befinden sich nahe der Grundstücksgrenze.
Das Bauernhaus weist pro Ebene eine Stockwerksfläche von jeweils ca. 124 m² (Untergeschoss, Erdgeschoss sowie Obergeschoss) auf, das Nebengebäude mit Sattelkammer und Carport ca. 50 m² sowie das Stallgebäude ca. 95 m².
Für das genehmigte Ensemble gibt es eine Kostenschätzung eines namhaften regionalen Unternehmens, das auch die Planung erstellt hat. Bei zeitgerechter Entscheidung und Beauftragung könnten die Gebäude bis Ende 2026 bezugsfertig hergestellt werden.
Die bewilligte Planung und Baubewilligung können vom Käufer verwendet werden und sind im Kaufpreis inkludiert.
Die örtliche Notarin ist mit der Liegenschaft und den rechtlichen Rahmenbedingungen eines Erwerbs und der Realisierung des Projekts vertraut, und steht für die rechtliche Durchführung zur Verfügung.
Der Vermittler ist als Doppelmakler tätig.
Infrastruktur / Entfernungen
Gesundheit
Arzt <500m
Apotheke <6.000m
Kinder & Schulen
Schule <6.000m
Kindergarten <9.500m
Nahversorgung
Supermarkt <500m
Bäckerei <500m
Sonstige
Bank <500m
Geldautomat <500m
Polizei <6.000m
Post <6.000m
Verkehr
Bus <500m
Bahnhof <1.500m
Flughafen <9.000m
Angaben Entfernung Luftlinie / Quelle: OpenStreetMap
Eckdaten Objektnr. 513/2967
| Art: | Grundstück |
| Land: | Österreich |
| Provision: | 3% des Kaufpreises zzgl. 20% USt. |
| Grundstücksfl.: | 53.238,00 m² |
| Bäder: | 2 |
| WC: | 4 |
Ihre persönliche Beratung
Dieser Makler ist ein offizielles Mitglied des IR – ir.at Mehr Erfahren
