Vielseitige Gewerbefläche in Waidring zur Miete
Halle / Lager / Produktion
- Produktion,
6384
Waidring
Die Gemeinde Waidring bietet eine ausgezeichnete Verkehrsanbindung, sowohl auf der Straße als auch im Schienenverkehr. Die B178, die Loferer Straße, verbindet Waidring mit wichtigen Städten wie Salzburg (ca. 50 km) und Kitzbühel (ca. 30 km). Die Nähe zur deutschen Grenze ermöglicht den einfachen Zugang zu den Wirtschaftszentren Südbayerns. Der nächste Autobahnanschluss zur A8 liegt dabei nur etwa 30 Fahrminuten entfernt. Die Region Waidring und das Tiroler Unterland sind als wirtschaftlich stabile Standorte bekannt, die durch ein starkes Netzwerk von mittelständischen Unternehmen geprägt sind. Waidring ist besonders für seine Industrieflächen mit modernen Erschließungsmöglichkeiten beliebt.
Beschreibung der Immobilie
Vielseitige Gewerbefläche in Waidring zur Miete
Vielseitige Gewerbefläche in Waidring zur Miete – flexibel, zentral, sofort bezugsbereit
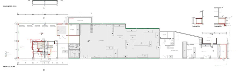
In attraktiver Lage von Waidring (Tirol) erwartet Sie eine großzügige Gewerbefläche mit rund 1.079 m², die vielfältige Nutzungsmöglichkeiten bietet – ideal für Produktion, Werkstatt, Lager oder kombinierte Betriebsformen.
Das rund 3.142 m² große Grundstück bietet nicht nur viel Platz, sondern überzeugt auch durch eine hervorragende Erreichbarkeit für Kunden und Lieferanten aus Tirol, Salzburg und Bayern.
Ihre Vorteile auf einen Blick:
Ca. 1.079 m² sofort nutzbare Gewerbefläche
Widmung: Allgemeines Mischgebiet – zahlreiche Nutzungsmöglichkeiten
Großzügige Zufahrts- und Anlieferzonen, ausreichend Parkplätze
Nachhaltige Heizanlage vorhanden (alternative Nutzung möglich)
Top-Lage mit idealer Anbindung in alle Richtungen
Die Fläche ist leerstehend und kurzfristig verfügbar – perfekt für Betriebe, die rasch durchstarten wollen.
Jetzt Besichtigung vereinbaren und Potenzial entdecken!
Die Vermietung erfolgt im Rahmen eines Insolvenzverfahrens. Wir freuen uns auf Ihre Anfrage!
Weitere interessante Immobilienangebote finden Sie auf zefi.at
Noch nichts gefunden? Wir informieren Sie über geeignete Immobilienangebote noch vor allen anderen.
Legen Sie jetzt Ihren individuellen Suchagenten unter folgendem Link an. Wir schicken Ihnen passende Immobilien exklusiv vorab zu.
Suchagent anlegen - https://zefi-immobilien.service.immo/registrieren/de
Wir weisen darauf hin, dass zwischen dem Vermittler und dem zu vermittelnden Dritten ein familiäres oder wirtschaftliches Naheverhältnis besteht.
Der Vermittler ist als Doppelmakler tätig.
Infrastruktur / Entfernungen
Gesundheit
Arzt <1.000m
Apotheke <9.000m
Kinder & Schulen
Schule <1.000m
Kindergarten <1.000m
Nahversorgung
Supermarkt <500m
Bäckerei <500m
Sonstige
Bank <1.000m
Post <1.000m
Geldautomat <1.000m
Polizei <7.500m
Verkehr
Bus <500m
Angaben Entfernung Luftlinie / Quelle: OpenStreetMap
Eckdaten Objektnr. 5390/1009
Art: | Halle / Lager / Produktion - Produktion |
Land: | Österreich |
Zustand: | Gepflegt |
Möbliert: | Teil |
Alter: | Neubau |
Kaltmiete (netto): | 7.558,74 € |
Kaltmiete: | 7.558,74 € |
Miete / m²: | 7,00 € |
Provision: | 27.211,46 € inkl. 20% USt. |
MwSt Gesamt: | 1.511,75 € |
Nutzfläche: | 1.079,82 m² |
Grundstücksfl.: | 3.142,00 m² |
Lagerfläche: | 1.079,82 m² |
Ausstattung
Fliesen, Laminatboden, Zentralheizung, Einbauküche, Bad mit Fenster, Dusche, DV-Verkabelung, Kabel/Satelliten-TV, Parkplatz, Wasch/Trockenraum
Ihre persönliche Beratung

Mike Rettkowski
Zefi Immobilien GmbH
T 05332 22818
H +43 681 84168667