Traumhaft Wohnen in Nöchling (Bezirk Melk) - herrliche Dachgeschosswohnung - inkl. Badeteich
Wohnung
,
3691
Nöchling
,
Kirchbichl
Nöchling liegt in der südwestlichen Ecke des Waldviertels in Niederösterreich und ist ca. 32 Autominuten von Melk entfernt. Nöchling ist aufgrund des herrlichen Kleinbadeteichs und der traumhaften Wanderrouten ein beliebter kleiner aber feiner Tourismusort im Waldviertel.
Beschreibung der Immobilie
Traumhaft Wohnen in Nöchling (Bezirk Melk) - herrliche Dachgeschosswohnung - inkl. Badeteich
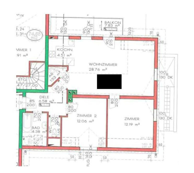
Mitten im herrlichen Wohlfühlort Nöchling liegt unsere schöne geförderte 3 Zimmerwohnung. Aufgrund der Größe ist die Wohnung hervorragend für Paar oder kleine Familien geeignet.
Die Wohnung bietet ca. 71m² Wohnfläche und einen Balkon.
Ein besonderes Highlight dieser Wohnung ist garantiert der eigene Badeteich direkt vor der Haustüre.
Vom geräumigen Wohnzimmer gelangt man direkt auf den schönen Balkon mit Blick auf den Badeteich und den Spielplatz Die Kochnische fügt sich harmonisch in den Wohnbereich ein.
Das Badezimmer ist modern verfliest und mit einer Badewanne ausgestattet. Das WC ist separat angelegt und ebenfalls modern verfliest.
Ein Kellerabteil und ein Autoabstellplatz (in der Miete inkludiert) runden das Wohnungsangebot perfekt ab.
Bildungseinrichtungen wie Kindergarten und Schule, sowie div. Einkaufsmöglichkeiten befinden sich direkt im Ort.
Traumhafte Wanderwege locken jedermann in die herrliche Natur – frei nach dem Motto „Leben ist gehen“.
Diese Immobilie ist eine ausgezeichnete Gelegenheit, um Ihren Wohntraum zu erfüllen. Kontaktieren Sie uns noch heute, um mehr über diese schöne Wohnung zu erfahren.
Bezug: ab sofort (Wohnung wird derzeit modernisiert)
Befristung: unbefristet, 1 Jahr Kündigungsverzicht 3 Monate Kündigungsfrist
Energiekennzahlen: Laut Energieausweis vom 18.8.2020 beträgt der Heizwärmebedarf 43,29 kWh/m²a Klasse B und der Gesamtenergieeffizienz-Faktor 1,176 Klasse C.
Der einmalige Finanzierungsbeitrag beträgt € 14.014,40 und die monatliche Miete beläuft sich auf € 639,44 inkl. BK und Ust.
Die monatlichen Kosten für Warmwasser und Heizung betragen € 143,53.
Noch nichts gefunden? Wir informieren Sie über geeignete Immobilienangebote noch vor allen anderen.
Legen Sie jetzt Ihren individuellen Suchagenten unter folgendem Link an. Wir schicken Ihnen passende Immobilien exklusiv vorab zu.
Suchagent anlegen - https://heimat-oesterreich.service.immo/registrieren/de
Infrastruktur / Entfernungen
Gesundheit
Arzt <5.750m
Apotheke <9.000m
Kinder & Schulen
Schule <750m
Kindergarten <500m
Nahversorgung
Supermarkt <500m
Bäckerei <500m
Einkaufszentrum <10.000m
Sonstige
Bank <5.750m
Geldautomat <5.750m
Post <500m
Polizei <9.250m
Verkehr
Bus <500m
Bahnhof <3.000m
Angaben Entfernung Luftlinie / Quelle: OpenStreetMap
Eckdaten Objektnr. 3955
Art: | Wohnung |
Land: | Österreich |
Baujahr: | 2007 |
Zustand: | Gepflegt |
Alter: | Neubau |
Gesamtmiete: | 639,44 € |
Kaltmiete (netto): | 639,44 € |
Kaltmiete: | 639,44 € |
Provision: | Provisionsfrei |
Wohnfläche: | 70,87 m² |
Zimmer: | 3 |
Bäder: | 1 |
WC: | 1 |
Balkone: | 1 |
Stellplätze: | 1 |
Heizwärmebedarf: | B 43,29 kWh/m²a |
fGEE: | C 1,18 |
Ausstattung
Fliesen, Laminatboden, Badewanne, Parkplatz
Ihre persönliche Beratung

Zehra Yazgi
Heimat Österreich gemeinnützige Wohnungs- und Siedlungsgesellschaft m.b.H.
T 1 9823601 640
H 0676/3226467