Beschreibung der Immobilie
Büroetage U4 Lilienberggasse
Ihr neues Büro in Hietzing - KFZ-Abstellplatz - 3 Minuten bis U4 Hütteldorf - unbefristete Hauptmiete - beste Lage - optimale Aufteilung - hell - ausgezeichnete Infrastruktur
Ich freue mich auf Ihren Anruf!
Paul Kleindl 01/526 26 36
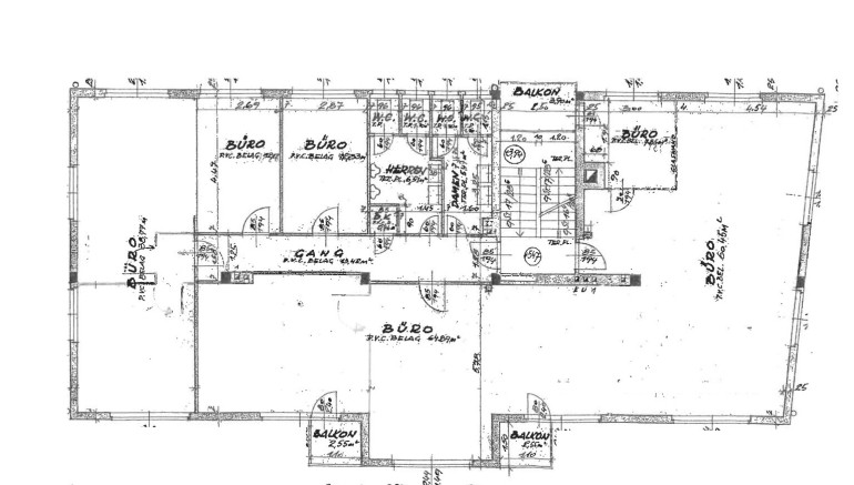
Zur Vermietung gelangt eine 210qm große Bürofläche in der Lilienberggasse, Nähe St. Josef Krankenhaus. Sie befindet sich in der 2. Etage eines eleganten Neubaus.
Ein KFZ-Abstellplatz im Innenhof ist für Sie reserviert.
Die Raumaufteilung:
zentraler Eingangsbereich
offenes Großraumbüro
fünf Büroräume
2 Toiletten und 2 Handwaschbecken Damen und Herren
eine Teeküche
Das funktional nutzbare Büro wird mittels einer Hauszentralheizung beheizt.
Lage und Infrastruktur:
Verkehrstechnisch geht es im 13. Bezirk nicht günstiger. Die Nähe zur U4 Hütteldorf und der Anschluss zum Hackinger Kai gewährt beste Erreichbarkeit, sowohl stadtein- als stadtauswärts. Sämtliche Bedürfnisse des täglichen Bedarfs wie Supermärkte, kleinere Geschäfte, Apotheken, Ärzte, Bars und Restaurants sind schnell zu Fuß zu erreichen.
Resümee:
Ausgezeichnetes Mietobjekt in sehr guter Wiener Lage. U-Bahn Anschluss und die tolle Umgebung bieten ein erfolgreiches Umfeld für Ihr neues Büro.
Miete inkl. Betriebskosten: EUR 2.754,00 zzgl. Ust.
Energieausweis: HWB: 123
Das Maklerunternehmen ist als Doppelmakler tätig.
Ich freue mich auf Ihren Anruf!
Paul Kleindl 01/526 26 36
Der Vermittler ist als Doppelmakler tätig.
Eckdaten Objektnr. 1760/330
Art: | Büro / Praxis |
Land: | Österreich |
Alter: | Neubau |
Kaltmiete (netto): | 2.310,00 € |
Kaltmiete: | 2.754,00 € |
Miete / m²: | 11,00 € |
Provision: | 3 Bruttomonatsmieten zzgl. 20% USt. |
Betriebskosten: | 444,00 € |
MwSt Gesamt: | 550,80 € |
Nutzfläche: | 210,00 m² |
Bürofläche: | 210,00 m² |
Zimmer: | 6 |
WC: | 2 |
Stellplätze: | 1 |
Heizwärmebedarf: | 123,00 kWh/m²a |
Ausstattung
Zentralheizung, Parkplatz, Teeküche
Ihre persönliche Beratung

Paul Kleindl
Lind Immobilien
T +43 1 526 26 36 14
H +43 699 1188 7600