Luxus Beauty Center im Herzen Wiens, Top Lage & Stilvolles Ambiente
Büro / Praxis
- Praxis,
1010
Wien
Beschreibung der Immobilie
Luxus Beauty Center im Herzen Wiens, Top Lage & Stilvolles Ambiente
Im Falle der Notwendigkeit einer Fremdfinanzierung Ihrer Wunschimmobilie ermittelt unser Wohnbau-Finanzierungsexperte gerne die optimale Finanzierungslösung und findet das passende Zins- und Konditionsangebot für Sie. Er vergleicht die aktuellen Angebote aller relevanten Banken und Bausparkassen. Der Angebotsvergleich kann aus einem Portfolio von über 120 Banken erfolgen. Das Erstgespräch ist für Sie kostenfrei und unverbindlich, gerne auch bei Ihnen vor Ort. So sparen Sie Ihre wertvolle Zeit und erhalten eine professionelle und unabhängige Finanzierungslösung vom Spezialisten. Sprechen Sie uns wegen eines Termins gerne an!
Zur Miete gelangt ein exklusiv ausgestattetes Beauty Center in erstklassiger Lage im Herzen Wiens.
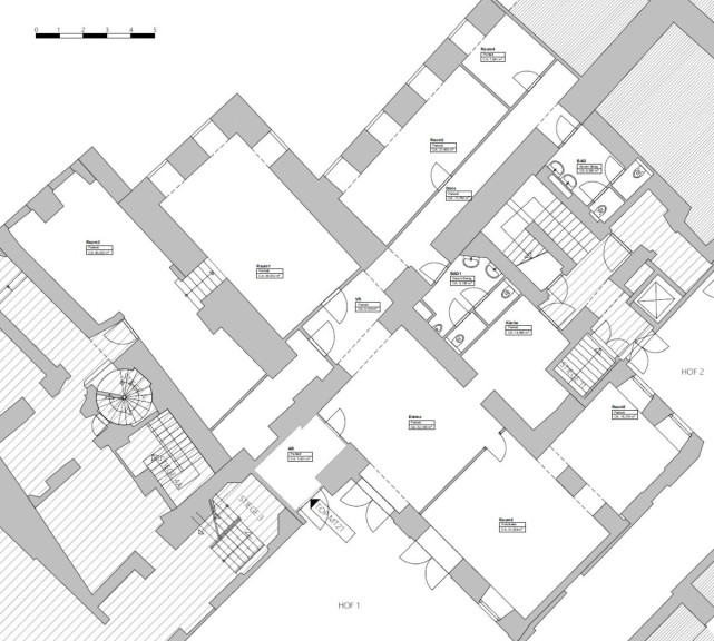
Die Immobilie befindet sich im Erdgeschoss eines historischen Gebäudes und wurde erst kürzlich mit viel Liebe zum Detail sowie unter Verwendung hochwertigster Materialien komplett renoviert. Auf rund 261 m² Nutzfläche bietet das Objekt großzügige, lichtdurchflutete Räumlichkeiten mit optimaler Raumaufteilung. Die stilvolle Einrichtung sowie die durchdachte Planung machen dieses Center zu einer idealen Location für anspruchsvolle Beauty- und Wellness-Dienstleistungen.
Raumaufteilung:
3 Massageräume
2 Pedikür-Räume
4 Maniküre-Plätze
4 Kabinen für Kosmetikbehandlungen
Friseursalon mit 2 separaten Räumen
2 luxuriös ausgestattete WCs mit Duschen
Teeküche
2 Abstellräume
- Empfangs- und Wartebereich
Das Beauty Center besticht durch seine erstklassige Lage im Herzen Wiens sowie durch eine luxuriöse, mit viel Liebe zum Detail durchgeführte Renovierung. Die Immobilie befindet sich in einem charmanten historischen Gebäude und wurde mit hochwertigen Materialien ausgestattet. Die großzügige Raumaufteilung und das stilvolle Ambiente bieten ideale Voraussetzungen für ein exklusives Beauty-, Kosmetik- oder Wellnesskonzept. Nur wenige Gehminuten von der U3-Station Herrengasse, bietet das Objekte perfekte Anbindungsmöglichkeiten an das öffentliche Verkehrsnetz Dank der zentralen 1A-Lage und der sofortigen Bezugsbereitschaft stellt dieses Objekt eine äußerst attraktive und lukrative Geschäftsgelegenheit dar. Bitte beachten Sie, dass das beigefügte Bild ein Referenzbild ist.
Überzeugen Sie sich selbst von dieser atemberaubenden Immobilie.
Gerne lassen wir Ihnen bei ernsthaftem Interesse - vor Kaufanbotlegung - weitere vertraulichen Dokumente zu dieser Liegenschaft zukommen, welche nicht veröffentlicht werden dürfen.
Für Besichtigungen und nähere Informationen stehen wir Ihnen gerne zur Verfügung!
Herr Aleksandar Mihajlovic, MSc
national - Tel: 0660 652 5500
international - Tel: +43 660 652 5500
e-mail: mihajlovic@lifestyle-properties.at
Wir weisen darauf hin, dass zwischen dem Vermittler und dem zu vermittelnden Dritten ein familiäres oder wirtschaftliches Naheverhältnis besteht.
Der Vermittler ist als Doppelmakler tätig.
Infrastruktur / Entfernungen
Gesundheit
Arzt <500m
Apotheke <500m
Klinik <500m
Krankenhaus <1.500m
Kinder & Schulen
Schule <500m
Kindergarten <500m
Universität <500m
Höhere Schule <500m
Nahversorgung
Supermarkt <500m
Bäckerei <500m
Einkaufszentrum <1.000m
Sonstige
Geldautomat <500m
Bank <500m
Post <500m
Polizei <500m
Verkehr
Bus <500m
U-Bahn <500m
Straßenbahn <500m
Bahnhof <500m
Autobahnanschluss <3.500m
Angaben Entfernung Luftlinie / Quelle: OpenStreetMap
Eckdaten Objektnr. 4889
Art: | Büro / Praxis - Praxis |
Land: | Österreich |
Alter: | Altbau |
Kaltmiete (netto): | 5.249,11 € |
Kaltmiete: | 5.973,25 € |
Provision: | 3 Bruttomonatsmieten zzgl. 20% USt. |
Betriebskosten: | 724,14 € |
Heizkosten: | 425,97 € |
MwSt Gesamt: | 1.279,84 € |
Nutzfläche: | 261,00 m² |
Zimmer: | 8 |
Bäder: | 2 |
WC: | 2 |
Heizwärmebedarf: | C 82,80 kWh/m²a |
fGEE: | C 1,08 |
Ausstattung
Fliesen, Parkett, Etagenheizung, Dusche, Teeküche
Ihre persönliche Beratung

Aleksandar Mihajlovic
Lifestyle Properties
T +43 1 512 14 84
H +43 660 6525500
F +43 1 512 14 84