Beschreibung der Immobilie
Westbahnhof Nähe: Büro mit Loggia
Das anzumietende Büro ist in Bestlage, nur eine Straße neben der äußeren Mariahilfer Straße, in der Palmgasse, angesiedelt.
Eine weitere Besonderheit des Bürokomplexes ist die hauseigene Tiefgarage in der bis zu 6 Stellplätze, zu je EUR 90,00 zzgl. USt., angemietet werden können. Die einzigartige Lage zeichnet sich durch den Sitz in der verlängerten Achse der Mariahilfer Straße, in 1150 Wien, und der direkten Autobahnanschlussstelle Wiental- und Westeinfahrt A1, A2 und Gürtel aus.
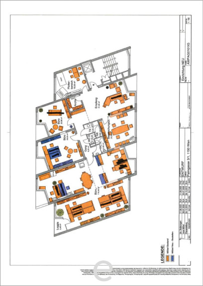
Die Bürofläche lässt sich wie folgt aufteilen:
- einem Empfang mit rd. 41,00m²
- drei Einzelbüros von rd. 20,00-28,00m² wobei eines davon als zusätzliches Besprechungszimmer genutzt werden kann
- ein Besprechungszimmer mit rd. 25,00m²
- einem Open Space/Gruppenbüro mit rd. 118,00m²
- eine Loggia mit rd. 3,50m²
- einer Teeküche
- einem Archiv
- getrennte Sanitäranlagen
Noch nichts gefunden? Wir informieren Sie über geeignete Immobilienangebote noch vor allen anderen.
Legen Sie jetzt Ihren individuellen Suchagenten unter folgendem Link an. Wir schicken Ihnen passende Immobilien exklusiv vorab zu.
Suchagent anlegen - https://eurea-real-estates.service.immo/registrieren/de
Wir weisen darauf hin, dass zwischen dem Vermittler und dem zu vermittelnden Dritten ein familiäres oder wirtschaftliches Naheverhältnis besteht.
Der Vermittler ist als Doppelmakler tätig.
Infrastruktur / Entfernungen
Gesundheit
Arzt <500m
Apotheke <500m
Klinik <500m
Krankenhaus <1.000m
Kinder & Schulen
Schule <500m
Kindergarten <500m
Universität <1.000m
Höhere Schule <1.500m
Nahversorgung
Supermarkt <500m
Bäckerei <500m
Einkaufszentrum <1.000m
Sonstige
Geldautomat <500m
Bank <500m
Post <500m
Polizei <500m
Verkehr
Bus <500m
U-Bahn <500m
Straßenbahn <500m
Bahnhof <500m
Autobahnanschluss <4.500m
Angaben Entfernung Luftlinie / Quelle: OpenStreetMap
Eckdaten Objektnr. 6244/841
Art: | Büro / Praxis |
Land: | Österreich |
Baujahr: | 1976 |
Alter: | Neubau |
Kaltmiete (netto): | 3.325,00 € |
Kaltmiete: | 4.575,00 € |
Miete / m²: | 12,50 € |
Provision: | 3 Bruttomonatsmieten zzgl. 20% USt. |
Betriebskosten: | 1.250,00 € |
Heizkosten: | 350,00 € |
MwSt Gesamt: | 985,00 € |
Nutzfläche: | 266,00 m² |
Stellplätze: | 6 |
Heizwärmebedarf: | C 87,60 kWh/m²a |
fGEE: | C 1,35 |
Ausstattung
Personenaufzug, Tiefgarage, Alarmanlage, Teeküche
Ihre persönliche Beratung

Sophie Mayerhofer
COORE-GC Real Estate GmbH
T +4367764855412