Panorama & Sonnenlage – Doppelhaushälfte mit zwei Balkonen, Garten und zwei Carports
Haus
- Doppelhaushälfte,
5440
Scheffau am Tennengebirge
In traumhafter Sonnenlage mit freiem Blick ins Lammertal liegt diese moderne Doppelhaushälfte in Scheffau am Tennengebirge. Die Kombination aus ruhiger, naturnaher Wohnlage und schneller Erreichbarkeit von Golling, Salzburg oder den Skigebieten der Umgebung macht dieses Objekt besonders attraktiv für Familien, Naturliebhaber und Berufspendler gleichermaßen.
Beschreibung der Immobilie
Panorama & Sonnenlage – Doppelhaushälfte mit zwei Balkonen, Garten und zwei Carports
Das Haus erstreckt sich über drei Ebenen und bietet durchdachten Wohnkomfort auf rund 120 m² Wohnnutzfläche. Der lichtdurchflutete Wohnbereich mit Raumhöhen bis zu 3,50 m beeindruckt mit großzügigen Panoramafenstern, einem offenen Grundriss und direktem Zugang zum sonnigen Balkon. Hier genießt man den Ausblick ins Grüne und auf das Tennengebirge.
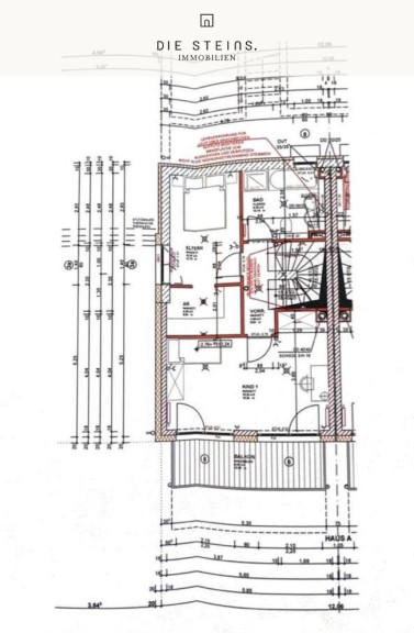
Die Schlafetage verfügt über ein Schlafzimmer mit Zugang zum eigenen Balkon, ein weiteres Zimmer (derzeit als Kinderzimmer genutzt) sowie ein stilvolles Bad mit Wanne, Dusche und Waschbecken.
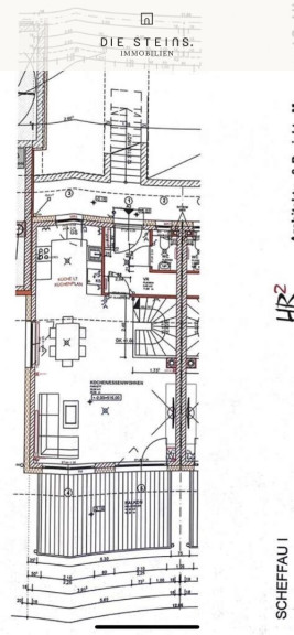
Im Erdgeschoss befindet sich ein zusätzliches Zimmer mit eigenem Zugang zum Garten über die Terrasse – ideal nutzbar als Homeoffice, Fitnessraum oder Hobbybereich.
Zwei Carport-Stellplätze direkt beim Haus und durchdachte Staumöglichkeiten runden das Angebot ab.
Raumaufteilung & Highlights
Wohn-/Essbereich mit offener Küche, Panorama-Südfenster und Zugang zum Balkon
Schlafzimmer mit Zugang zum eigenen Balkon
Vielseitig nutzbares Zimmer im Erdgeschoss mit eigenem Zugang zum Garten über die Terrasse
Badezimmer mit Fenster, Dusche und Badewanne
Gäste-WC mit Waschbecken auf der Wohnebene
Zwei Carports direkt vor dem Haus
Der Vermittler ist als Doppelmakler tätig.
Infrastruktur / Entfernungen
Gesundheit
Arzt <2.500m
Apotheke <2.500m
Kinder & Schulen
Schule <2.500m
Kindergarten <3.000m
Universität <6.000m
Nahversorgung
Supermarkt <2.500m
Bäckerei <2.500m
Sonstige
Bank <1.500m
Geldautomat <2.500m
Post <2.500m
Polizei <2.500m
Verkehr
Bus <500m
Autobahnanschluss <3.500m
Bahnhof <3.000m
Angaben Entfernung Luftlinie / Quelle: OpenStreetMap
Eckdaten Objektnr. 7500/51
Art: | Haus - Doppelhaushälfte |
Land: | Österreich |
Baujahr: | 2010 |
Zustand: | Neuwertig |
Alter: | Neubau |
Kaufpreis: | 550.000,00 € |
Provision: | 3% des Kaufpreises zzgl. 20% USt. |
Betriebskosten: | 211,48 € |
Nutzfläche: | 120,59 m² |
Zimmer: | 5 |
Bäder: | 1 |
WC: | 2 |
Balkone: | 1 |
Terrassen: | 1 |
Stellplätze: | 2 |
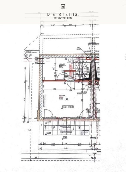
Keller: | 8,43 m² |
Heizwärmebedarf: | C 62,40 kWh/m²a |
fGEE: | C 1,12 |
Ausstattung
Fliesen, Parkett, Einbauküche, Bad mit Fenster, Badewanne, Dusche, Carport
Ihre persönliche Beratung

Simon Prähauser
Stein Projekte GmbH
T +43 676 511 99 15