GESCHÄFTSLOKAL IM SOUTERRAIN

Einzelhandel , 1130 Wien,Hietzing


Beschreibung der Immobilie

GESCHÄFTSLOKAL IM SOUTERRAIN

Zur befristeten Vermietung gelangt eine komplett renovierte Geschäftsfläche im Souterrain eines schönen Hauses auf der Hietzinger Hauptstraße.



Der Zugang erfolgt direkt über die Straße, es gibt zwei weitere Zugänge über das Stiegenhaus. 





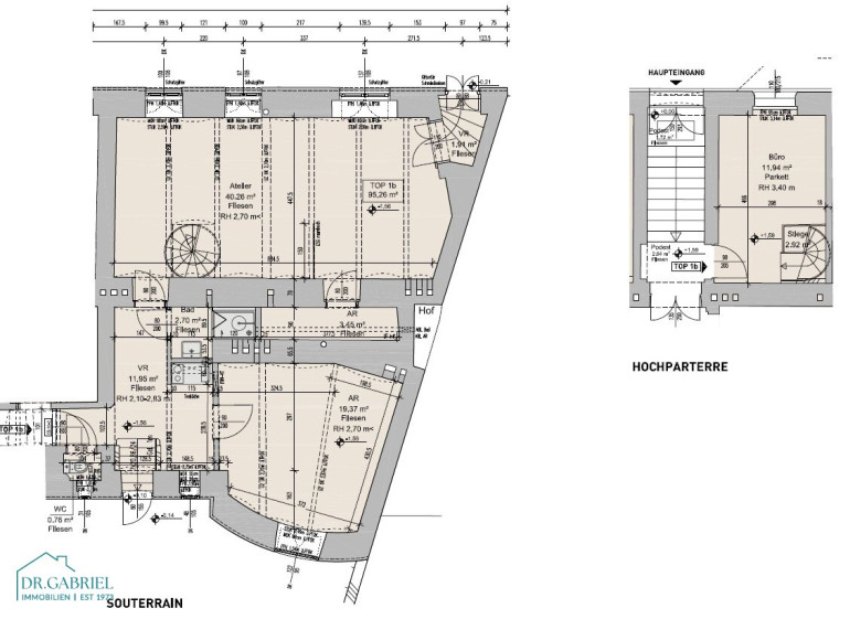
RAUMAUFTEILUNG: 



großer Raum (rd. 40 m²) , Raum mit Kitchenette, weiterer Raum mit rd. 20m², Duschbad, WC, Abstellraum - über eine hübsche Wendeltreppe gelangt man in ein Büro im Hochparterre (rd. 12 m²)



AUSSTATTUNG:



  • Fliesen/Parkettböden
  • komplette Kitchenette
  • Fußbodenheizung


Insgesamt verfügt das Geschäftslokal über 4 Zugänge (Straße, Stiegenhaus, Innenhof).



weitere Objekte finden Sie auf unserer Homepage: www.gabriel.at


Wir weisen darauf hin, dass zwischen dem Vermittler und dem zu vermittelnden Dritten ein familiäres oder wirtschaftliches Naheverhältnis besteht.


Der Vermittler ist als Doppelmakler tätig.

Infrastruktur / Entfernungen

Gesundheit
Arzt <500m
Apotheke <500m
Klinik <1.500m
Krankenhaus <2.000m

Kinder & Schulen
Schule <500m
Kindergarten <500m
Universität <1.500m
Höhere Schule <3.500m

Nahversorgung
Supermarkt <500m
Bäckerei <500m
Einkaufszentrum <3.000m

Sonstige
Geldautomat <500m
Bank <500m
Post <500m
Polizei <1.000m

Verkehr
Bus <500m
U-Bahn <500m
Straßenbahn <500m
Bahnhof <500m
Autobahnanschluss <4.500m

Angaben Entfernung Luftlinie / Quelle: OpenStreetMap

Eckdaten Objektnr. 29467

Art: Einzelhandel
Land: Österreich
Alter: Altbau
Kaltmiete (netto): 1.364,27 €
Kaltmiete: 1.625,00 €
Miete / m²: 14,71 €
Provision: 3 Bruttomonatsmieten zzgl. 20% USt.
Betriebskosten: 260,73 €
MwSt Gesamt: 325,00 €
Nutzfläche: 92,76 m²
Zimmer: 3
Bäder: 1
WC: 1
Heizwärmebedarf:  E  169,40 kWh/m²a
fGEE:  D  2,49
Immobilie merken Exposé

Ausstattung

Fliesen, Parkett, Fußbodenheizung, Dusche


Immobilie anfragen


Ihre persönliche Beratung

Dr. Alexandra Gabriel Realitätenvermittlungsgesellschaft m.b.H.

Dr. Laetitia Gabriel-Hermann

Dr. Alexandra Gabriel Realitätenvermittlungsgesellschaft m.b.H.

T +43 1 533 10 96