Neubau Aktion! 130m2 Nutzfläche Garage 28 m2

Haus - Doppelhaushälfte, 4776 Mitterndorf


Diersbach ist eine Gemeinde in Oberösterreich im Bezirk Schärding im Innviertel. Die Gemeinde liegt im Gerichtsbezirk Schärding. Schärding 19 km Andorf 9 km Passau 24 km und Linz 65 km

Beschreibung der Immobilie

Neubau Aktion! 130m2 Nutzfläche Garage 28 m2

Preisreduziert seit 10.10.2025 NEUER Preis 349.000 Euro





Dieses exklusive Angebot, bietet Ihnen eine Wohnnutzfläche von 130 m².



Eine Luftwärmepumpe sorgt für eine kostengünstige Heizung und ein hochwertiger Massivbau für ein zuverlässiges und langlebiges Zuhause.



Eine Garage und ein Stellplatz sind ebenfalls vorhanden, sodass Sie Ihr Auto sicher unterbringen können



Aufgrund des gut geschnittenen Grundstücks verfügt man über eine bessere Abstandsmöglichkeit zum Nachbarn, da die beiden Terrassen nicht zusammengebaut sind.



Die schöne, nach oben versetzte Bauweise gibt dem Haus optisch, das gewisse etwas. 





Zur Raumaufteilung lässt sich nur sagen, dass hier die verfügbare Fläche sehr gut ausgenutzt wurde.



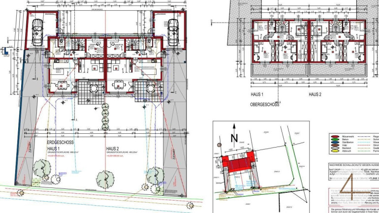
So ist zum Beispiel im Erdgeschoss der offen gehaltene Wohn- Kochbereich durch die südliche Ausrichtung stets Lichtdurchflutet und bietet Ihnen aufgrund der großzügigen Glasflächen einen tollen Blick in Ihren Garten.



Im nördlichen Trakt des Erdgeschosses, befindet sich neben dem Vorraum, ein WC sowie der Technikraum und ein ca. 11m² großes Büro oder Gästezimmer.



Im Obergeschoss befinden sich, aufgeteilt auf einer Fläche von ca. 60m², das elterliche Schlafzimmer mit Schrankraum, 2 sonnig helle Kinderzimmer sowie das Badezimmer mit Dusch und Badewanne als auch das separierte WC.





Der mehr als akzeptable Kaufpreis in Höhe von Preis 349.000 Euro ist im Vergleich zum aktuellen Marktangebot sehr gering, für diese Menge an Wohnraum und Komfort, welchen Sie erhalten.



Dieses Haus kann man um 20.000 Euro fertigstellen lassen. Es fehlen noch Türen, Böden, Sanitär, Terrassenpflaster.

Eckdaten Objektnr. 7963

Art: Haus - Doppelhaushälfte
Land: Österreich
Kaufpreis: 349.000,00
Provision: 3% des Kaufpreises zzgl. 20% USt.
Wohnfläche: 130,00 m²
Grundstücksfl.: 469,00 m²
Heizwärmebedarf:  B  41,00 kWh/m²a
fGEE: 0,68
Immobilie merken Exposé

Immobilie anfragen


Ihre persönliche Beratung

4immobilien GmbH

Thomas Mader

4immobilien OG

T 0664 / 7310 8559