Einfamilienhaus mit Potenzial und großem Garten
Haus
,
2000
Stockerau
Beschreibung der Immobilie
Einfamilienhaus mit Potenzial und großem Garten
Willkommen in Ihrem zukünftigen Eigenheim in Stockerau, Niederösterreich. Dieses charmante Einfamilienhaus bietet Ihnen die perfekte Kombination aus gemütlichem Wohnen auf einer Ebene und den Annehmlichkeiten eines wunderschön angelegten Grundstückes mit ca. 863 m².
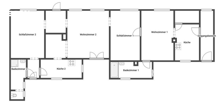
Mit einer derzeitigen Wohnfläche von ca. 117 m² und 4 Zimmern bietet es genügend Platz für Sie und Ihre Familie.
Das Haus ist teilunterkellert.
Das Grundstück befindet sich in einer ruhigen und idyllischen Nachbarschaft und ist ideal für alle, die auf der Suche nach einem ruhigen und entspannten Lebensstil sind.
Dieses Haus bietet Ihnen die Gelegenheit, Ihre Träume von einem gemütlichen Zuhause zu verwirklichen. Es ist zwar renovierungsbedürftig, aber mit ein wenig Kreativität und Liebe zum Detail können Sie hier Ihr neues zu Hause schaffen.
LAGE UND INFRASTRUKTUR:
Das Haus befindet sich an einer TOP-ADRESSE mit Nahanbindung nach Wien (nördlicher Speckgürtel). Stockerau mit ca. 17.000 Einwohnern ist die größte Stadt im Weinviertel. Direkt an der A 22 mit dem PKW erreichen Sie Wien in ca. 20 Minuten, ebenso mittels der S-Bahn oder Regionalzügen (1/2 Stunden Takt).
Das Augebiet befindet sich nur ca. 1 km entfernt und lädt zum Spazierengehen oder Radfahren ein. Die Stadt Stockerau bietet viele Einkaufsmöglichkeiten und eine bunte Vielfalt an Freizeitmöglichkeiten. Kindergärten, Volksschulen, Mittelschule, Gymnasium und eine Handelsschule sind nur einen Sprung entfernt.
Warten Sie nicht länger und vereinbaren Sie noch heute einen Besichtigungstermin. Wir freuen uns darauf, Ihnen diese Immobilie persönlich präsentieren zu können.
Hier geht´s zum 360° Rundgang: https://app.immoviewer.com/portal/tour/3116035?accessKey=6874
Viele weitere Rundgänge, so wie alle neuen s REAL Immobilienangebote finden Sie auf www.sreal.at.
Infrastruktur / Entfernungen
Gesundheit
Arzt <1.000m
Apotheke <500m
Krankenhaus <1.500m
Klinik <8.500m
Kinder & Schulen
Schule <1.000m
Kindergarten <500m
Universität <9.500m
Nahversorgung
Supermarkt <500m
Bäckerei <1.000m
Sonstige
Bank <1.000m
Geldautomat <1.000m
Post <1.500m
Polizei <1.500m
Verkehr
Bus <500m
Autobahnanschluss <1.500m
Bahnhof <1.500m
Flughafen <3.500m
Angaben Entfernung Luftlinie / Quelle: OpenStreetMap
Eckdaten Objektnr. 960/72296
| Art: | Haus |
| Land: | Österreich |
| Baujahr: | 1923 |
| Zustand: | Sanierungsbeduerftig |
| Alter: | Altbau |
| Kaufpreis: | 520.000,00 € |
| Provision: | 3% des Kaufpreises zzgl. 20% USt. |
| Grundstücksfl.: | 863,00 m² |
| Zimmer: | 4 |
| Bäder: | 2 |
| WC: | 2 |
| Garten: | 668,00 m² |
| Heizwärmebedarf: | G 368,20 kWh/m²a |
| fGEE: | G 4,77 |
Ausstattung
Gas, Zentralheizung, Badewanne, Dusche, Bad mit Fenster, Garage
Ihre persönliche Beratung
Dieser Makler ist ein offizielles Mitglied des IR – ir.at Mehr Erfahren

