PREISREDUZIERT! Baugenehmigtes Projekt mit 4 Wohnhauseinheiten in absolut ruhiger grüner Wohnlage
Haus
,
1220
Wien
Badeteich Hirschstetten ca. 25 Gehminuten entfernt Libellenteich Motorikpark 1220
Beschreibung der Immobilie
PREISREDUZIERT! Baugenehmigtes Projekt mit 4 Wohnhauseinheiten in absolut ruhiger grüner Wohnlage
Nur € 174.750,-- baugenehmigt pro Wohneinheit! DIESES PROJEKT KANN SOFORT UMGESETZT WERDEN!
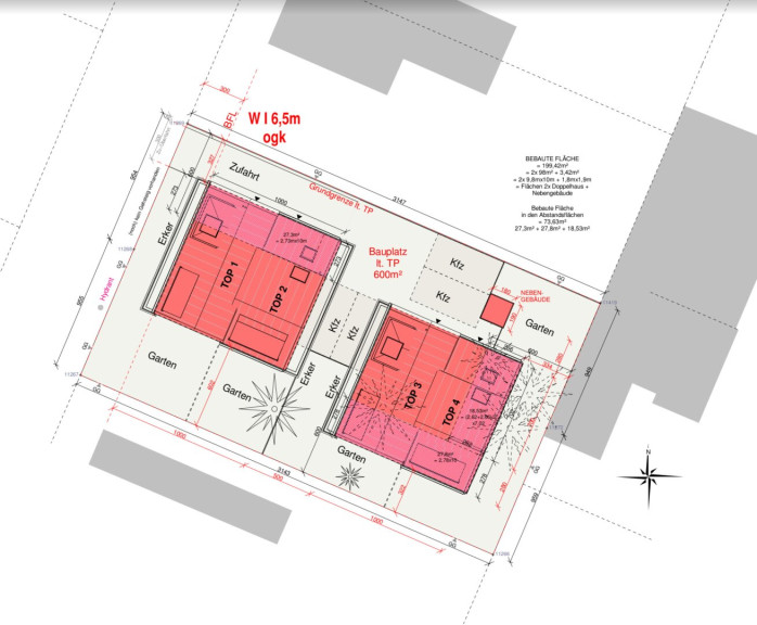
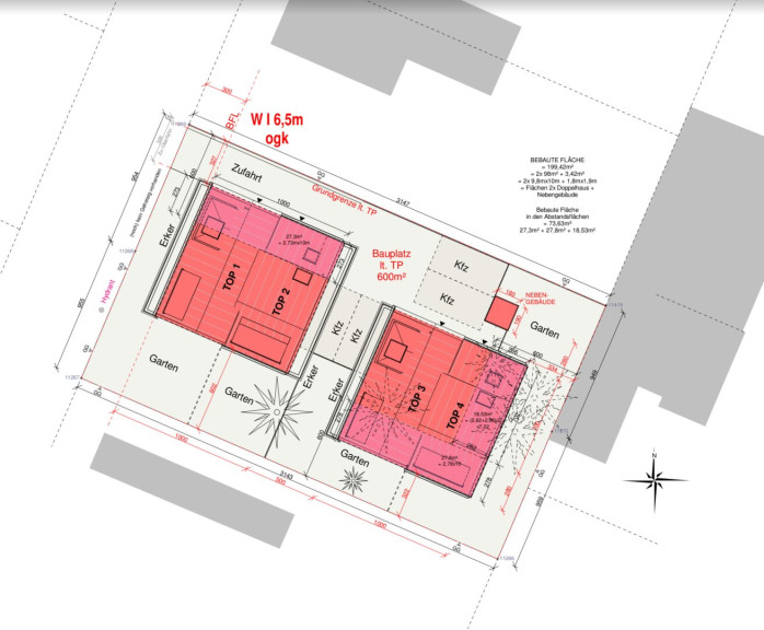
Angeboten wird ein baugenehmigtes Bauprojekt mit 4 Familienwohneinheiten. Zwei Doppelhäuser mit je 3 Geschoßebenen mit Eigengärten, Terrassen und PKW-Stellflächen. Der Baugrund befindet sich in sehr ruhiger und grüner Wohnlage, umgeben von Einfamilienhäusern. Über die A23 ist die schnelle Erreichbarkeit gegeben. Das Grundstück ist eben und frei von Bestandsgebäuden (keine Abbrucharbeiten)
Gerne steht Ihnen Herr Alexander Ringsmuth, für weitere Fragen bzw. flexibel gestaltbare Besichtigungstermine unter 0676 842 055 100 zur Verfügung.
Irrtum und Änderungen vorbehalten!
Hinweis gemäß Energieausweisvorlagegesetz: Ein Energieausweis wurde vom Eigentümer bzw. Verkäufer, nach unserer Aufklärung über die generell geltende Vorlagepflicht, sowie Aufforderung zu seiner Erstellung noch nicht vorgelegt. Daher gilt zumindest eine dem Alter und der Art des Gebäudes entsprechende Gesamtenergieeffizienz als vereinbart. Wir übernehmen keinerlei Gewähr oder Haftung für die tatsächliche Energieeffizienz der angebotenen Immobilie.
Wir weisen darauf hin, dass zwischen dem Vermittler und dem zu vermittelnden Dritten ein familiäres oder wirtschaftliches Naheverhältnis besteht.
Der Vermittler ist als Doppelmakler tätig.
Infrastruktur / Entfernungen
Gesundheit
Arzt <1.500m
Apotheke <1.500m
Klinik <1.500m
Krankenhaus <5.000m
Kinder & Schulen
Schule <1.500m
Kindergarten <1.500m
Universität <4.500m
Höhere Schule <4.000m
Nahversorgung
Supermarkt <1.000m
Bäckerei <1.500m
Einkaufszentrum <3.000m
Sonstige
Geldautomat <2.500m
Bank <3.000m
Post <3.000m
Polizei <3.000m
Verkehr
Bus <500m
U-Bahn <3.000m
Straßenbahn <2.500m
Bahnhof <3.000m
Autobahnanschluss <1.500m
Angaben Entfernung Luftlinie / Quelle: OpenStreetMap
Eckdaten Objektnr. 15815
Art: | Haus |
Land: | Österreich |
Kaufpreis: | 699.000,00 € |
Provision: | 3% des Kaufpreises zzgl. 20% USt. |
Wohnfläche: | 412,00 m² |
Nutzfläche: | 689,00 m² |
Grundstücksfl.: | 600,00 m² |
Stellplätze: | 4 |
Ihre persönliche Beratung

Alexander Ringsmuth
Alexander Ringsmuth GmbH
T +43 1 3709098
H +43 676 842 055 100