Klimatisierte Bürofläche mit großer Terrasse bei U3 Schweglerstraße!

Büro / Praxis , 1150 Wien,Rudolfsheim-Fünfhaus , Stättermayergasse


Diese attraktive Büro- bzw. Praxisfläche befindet sich in der begehrten Stättermayergasse im 15. Bezirk von Wien. Die Lage überzeugt durch ihre hervorragende Anbindung: Die U3-Station Schweglerstraße ist nur wenige Gehminuten entfernt und ermöglicht schnellen Zugang zum Stadtzentrum. Umgeben von einer Vielzahl an Restaurants, Cafés und Einkaufsmöglichkeiten, bietet diese Immobilie nicht nur eine ideale Arbeitsumgebung, sondern auch eine hohe Lebensqualität.

Beschreibung der Immobilie

Klimatisierte Bürofläche mit großer Terrasse bei U3 Schweglerstraße!

Quick Facts: Terrasse mit 32,50qm I ruhig I repräsentativ I Klimageräte I Lift I U3 Schweglerstraße I Teeküche



Ich freue mich auf Ihren Anruf!

Irene Lindenberger, MSc 01/526 26 36 



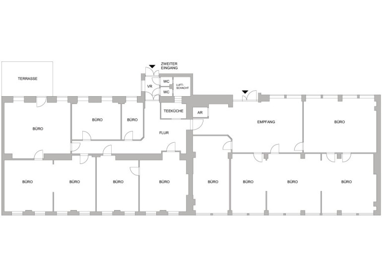
Auf 358,70qm präsentiert sich Ihnen hier ein originelles Büro im 2. Liftstock. Das Gebäude liegt wenige Meter zur U3 Station Schweglerstraße und Straßenbahnlinien 9 und 49. Das Büro besteht aus einem Empfangsbereich, 11 Büroeinheiten, einem Abstellraum, einer Teeküche und zwei Toiletten sowie einer Terrasse mit 32,50qm. 



Betreten werden kann das Büro durch zwei Eingänge durch zwei separate Stiegenhäuser. Durch die zwei getrennten Eingangsbereiche ist es auch möglich, die Bürofläche zu teilen. 



Ausstattung:
Klimaanlage, Terrasse, Toiletten, Teeküche, EDV-Verkabelung, Hauszentralheizung - Fernwärme.



Resümee:
Das Büro besticht durch die Größe und die praktische Aufteilung, die Nähe zu den öffentlichen Verkehrsmitteln und dem marktgerechten Mietpreis mit einer unbefristeten Hauptmiete.



Energieausweis: HWB 54,49



Ich freue mich auf Ihren Anruf!

Irene Lindenberger, MSc 01/526 26 36 


Wir weisen darauf hin, dass zwischen dem Vermittler und dem zu vermittelnden Dritten ein familiäres oder wirtschaftliches Naheverhältnis besteht.


Der Vermittler ist als Doppelmakler tätig.

Eckdaten Objektnr. 1760/93

Art: Büro / Praxis
Land: Österreich
Baujahr: 1900
Zustand: Nach_vereinbarung
Alter: Neubau
Kaltmiete (netto): 4.627,23 €
Kaltmiete: 5.420,59 €
Miete / m²: 12,90 €
Provision: 3 Bruttomonatsmieten zzgl. 20% USt.
Betriebskosten: 793,36 €
Nutzfläche: 358,70 m²
Zimmer: 11
WC: 2
Terrassen: 1
Heizwärmebedarf:  C  54,49 kWh/m²a
Immobilie merken Exposé

Ausstattung

Zentralheizung, Personenaufzug


Immobilie anfragen


Ihre persönliche Beratung

Lind Immobilien

Irene Lindenberger

Lind Immobilien

T +43 1 526 26 36

H +43 660 824 3952