Sehr helle Bürofläche - komplett saniert in 5020 Salzburg zu mieten
Büro / Praxis
- Bürofläche,
5020
Salzburg
,
Franz-Josef-Straße 15
Zwischen Mirabellplatz und Hauptbahnhof gelegen, bietet das Objekt perfekte Anbindung an öffentliche Verkehrsmittel und fußläufige Erreichbarkeit der Salzburger Innenstadt. Bushaltestellen befinden sich unmittelbar vor dem Gebäude bzw. in Gehweite mit den Linien 1, 2, 3, 5, 6, 14, 21, 22 und 25.
Beschreibung der Immobilie
Sehr helle Bürofläche - komplett saniert in 5020 Salzburg zu mieten
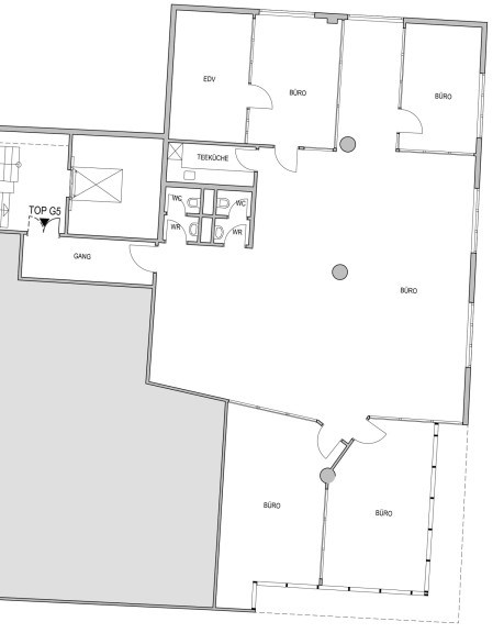
Sehr helle Bürofläche komplett saniert in idealer Lage - großzügige RaumaufteilungDie ausgesprochen hellen und freundlichen Räumlichkeiten mit ca. 250 m² Nutzfläche befinden sich im 1.OG eines Büro- und Wohngebäudes in guter Salzburger Innenstadtlage im Andräviertel mit süd-östlicher Ausrichtung.
Derzeit werden die Flächen saniert - Raumaufteilung und Mieterwünsche können somit beim Ausbau aktuell noch berücksichtigt werden. Die auf den Photos noch erkennbare Treppe ins EG wird im Zuge der Sanierung verschlossen und eine Decke eingezogen.
TG-Stellplätze können bei Bedarf angemietet werden.
Nettomiete ab € 15,00/m² je nach Ausbau/Umbau.
In den Betriebskosten sind die HK und Lüftungskosten bereits enthalten.
Eckdaten Objektnr. 505250127
| Art: | Büro / Praxis - Bürofläche |
| Land: | Österreich |
| Baujahr: | 1994 |
| Zustand: | Teil_vollsaniert |
| Gesamtmiete: | 5.899,13 € |
| Kaltmiete (netto): | 3.705,00 € |
| Miete / m²: | 15,00 € |
| Provision: | 3 BMM |
| Betriebskosten: | 768,97 € |
| Heizkosten: | 277,78 € |
| Bürofläche: | 247,00 m² |
Ausstattung
Fernwärme, Zentralheizung, Personenaufzug, DV-Verkabelung
Ihre persönliche Beratung
Dieser Makler ist ein offizielles Mitglied des IR – ir.at Mehr Erfahren
