Büro- und Lagerfläche im Industriegelände Fulpmes zu vermieten
Büro / Praxis
- Bürofläche,
6166
Fulpmes
Beschreibung der Immobilie
Büro- und Lagerfläche im Industriegelände Fulpmes zu vermieten
Entdecken Sie Ihre neue Büro- und Lagerfläche im Industriegebiet der Gemeinde Fulpmes im Stubaital!
In einem neu errichteten Betriebsgebäude werden diverse Betriebsflächen zur Miete angeboten. Aktuell besteht die Möglichkeit die gesamte Bürofläche und Teile der Lagerfläche oder Teile der Bürofläche und Teile der Lagerfläche anzumieten.
Die individuell anmietbare Fläche ermöglicht es Ihnen, Ihre individuellen Vorstellungen und Bedürfnisse zu verwirklichen. Ob Bürofläche für Ihr Unternehmen oder zusätzlich mit für Sie notwendiger Lagerfläche – hier haben Sie die optimale Grundlage, um Ihre Visionen zu realisieren.
Ein weiterer Pluspunkt der Immobilie ist die unmittelbare Nähe zur Landeshauptstadt Innsbruck, die mit dem Auto in ca. 20 Minuten zu erreichen ist. In unser Nachtbarland Italien (Brenner) benötigt man ca. 25 Minuten.
Mietpreise inkl. Betriebskosten, Strom und Glasfaserinternetzugang pro Monat:
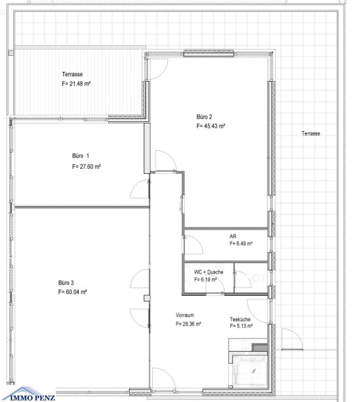
Gesamtes Bürogeschoss inkl. 4 Kfz-Stellplätze: € 2.772,60 inkl. USt. (Miete Brutto: € 2.400,00, BK Brutto: € 372,60)
Büro 1 mit Terrassenzugang inkl. 1 Kfz-Stellplatz: € 834,00 inkl. USt. (Miete Brutto: € 681,00, BK Brutto: € 153,00)
Büro 2 inkl. 2 Kfz-Stellplätze: € 990,00 inkl. USt. (Miete Brutto: € 740,00, BK Brutto: € 250,00)
Büro 3 inkl. 2 Kfz-Stellplätze: € 1.308,00 inkl. USt. (Miete Brutto: € 978,00, BK Brutto: € 330,00)
Lagerfläche: € 9,60 inkl. USt. (Betriebskosten abhängig von der Mietfläche)
Im Falle einer Teilanmietung können der Vorraum, die Teeküche und die WC-Anlagen gemeinsam mit anderen Mietern genutzt werden und in den Betriebskosten ist die Reinigungskraft für diese Flächen inbegriffen.
Die Ebene der Bürofläche ist mittels Aufzugs mit der Ebene der Lagerfläche verbunden.
Lassen Sie sich diese einmalige Gelegenheit nicht entgehen und vereinbaren Sie noch heute einen Besichtigungstermin! Ihre neue Bürofläche in Fulpmes wartet auf Sie.
Alle Angaben, Maße und Zeichnungen sind unverbindliche Planungsangaben ohne Gewähr auf Basis der Eigentümerangaben. Für Eingabefehler übernehmen wir keine Haftung.
Nebenkosten: Kosten Mietvertragserstellung, Kaution in Höhe von 3 Bruttomonatsmieten, Vergebührung des Mietvertrages beim Finanzamt und ein Maklerhonorar in Höhe von 3 Bruttomonatsmieten zzgl. 20% USt. (abhängig von der Mietvertragsdauer).
Infrastruktur / Entfernungen
Gesundheit
Arzt <2.000m
Apotheke <2.000m
Kinder & Schulen
Schule <1.500m
Kindergarten <2.000m
Nahversorgung
Supermarkt <1.500m
Bäckerei <1.000m
Sonstige
Bank <2.000m
Geldautomat <1.000m
Polizei <2.500m
Post <2.500m
Verkehr
Bus <500m
Bahnhof <2.500m
Autobahnanschluss <7.000m
Straßenbahn <2.500m
Angaben Entfernung Luftlinie / Quelle: OpenStreetMap
Eckdaten Objektnr. 142
Art: | Büro / Praxis - Bürofläche |
Land: | Österreich |
Zustand: | Neuwertig |
Alter: | Neubau |
Heizwärmebedarf: | C 51,47 kWh/m²a |
fGEE: | A+ 0,70 |
Ihre persönliche Beratung

Martin Penz
ImmoPenz - Martin Penz
T +43 5225 64678
H +43 699 164 678 01
F +43 5225 64852