Panoramablick auf das Kitzsteinhorn - Apartmenthaus

Haus , 5721 Piesendorf


Das Apartmenthaus befindet sich in Fürth/Piesendorf, einer idyllischen Gemeinde im Salzburger Land, in unmittelbarer Nähe zu Zell am See und Kaprun. Es liegt in absoluter Ruhelage und bietet einen spektakulären Panoramablick auf das Kitzsteinhorn und die umliegende Bergwelt. Nahversorger, Ärzte und Schulen sind in wenigen Minuten erreichbar.

Beschreibung der Immobilie

Panoramablick auf das Kitzsteinhorn - Apartmenthaus

Panoramablick auf das Kitzsteinhorn – Gepflegtes Apartmenthaus mit 3 Einheiten



Highlights/Eckdaten• Grundstück: ca. 861 m² (Gartenfläche ca. 702 m²)



• Wohnfläche: ca. 238 m²



• 3 separate Wohneinheiten (Anlage oder Eigennutzung)



• Baujahr: 1992 (Massivbauweise)



• Heizung: Öl & Solarenergie



• 1 Garage + 3 Außenstellplätze



• Energieausweis: HWB 56 kWh/m²a, fGEE 1,05



• Zustand: gepflegt



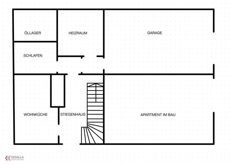
Raumaufteilung



Konzept: Das Haus ist in drei separate Wohneinheiten aufgeteilt, was flexible Nutzungsmöglichkeiten als Mehrgenerationenhaus oder zur Vermietung bietet .



Obergeschoss: Hier befinden sich großzügige Wohnbereiche mit Kachelofen, Wintergarten und Zugang zu den Balkonen, die den Blick nach Süden/Westen freigeben. Die Ebene umfasst mehrere Schlafzimmer, Bäder und Küchen .



Erdgeschoss/Nebenräume: Neben einer Garage und Technikräumen (Heizraum, Öllager) befindet sich hier ein Apartment und ein Apartment im Bau.





Kaufpreis: Preis auf Anfrage





Fazit



Dieses Objekt in sonniger Aussichtslage vereint Ruhe, Natur und Renditepotenzial. Mit seiner soliden Massivbauweise und der Aufteilung in drei Einheiten ist es sowohl für Anleger als auch für große Familien eine seltene Gelegenheit in der Region Zell am See-Kaprun.


Der Vermittler ist als Doppelmakler tätig.

Infrastruktur / Entfernungen

Gesundheit
Arzt <4.500m
Apotheke <3.000m
Krankenhaus <3.000m

Kinder & Schulen
Schule <2.000m
Kindergarten <2.000m

Nahversorgung
Supermarkt <1.500m
Bäckerei <2.500m
Einkaufszentrum <4.000m

Sonstige
Bank <3.000m
Geldautomat <4.000m
Polizei <3.000m
Post <3.000m

Verkehr
Bus <500m
Bahnhof <1.000m
Flughafen <4.000m

Angaben Entfernung Luftlinie / Quelle: OpenStreetMap

Eckdaten Objektnr. 6019/93

Art: Haus
Land: Österreich
Baujahr: 1992
Zustand: Gepflegt
Möbliert: Voll
Alter: Altbau
Provision: 3% des Kaufpreises zzgl. 20% USt.
Wohnfläche: 238,00 m²
Grundstücksfl.: 861,00 m²
Gesamtfläche: 2.310,00 m²
Bäder: 3
Balkone: 2
Stellplätze: 4
Garten: 702,00 m²
Heizwärmebedarf: 56,00 kWh/m²a
fGEE: 1,05
Immobilie merken Exposé

Ausstattung

Öl, Solarenergie, Dusche, Bad mit Fenster, Badewanne, Garage, Parkplatz


Immobilie anfragen


Ihre persönliche Beratung

DESALLA House & Home GmbH

Kerstin Desalla

Immoteam 21 GmbH

H +43 650 4868207