Traumhafte Wohnung (in zwei Einheiten abgetrennt) in Stumm zu kaufen

Wohnung - Dachgeschoß, 6275 Stumm


Die Gemeinde Stumm im Zillertal liegt auf der Sonnenseite des Zillertals und zählt mit seinen 1.855 Einwohnern zu der drittgrößten Ortschaft der Ersten Ferienregion Fügen-Kaltenbach. Auf 650m Seehöhe gelegen und mit einem großen Freizeitangebot ist der Ort ein attraktives Urlaubsdomizil für Familien. Stumm im Zillertal, der Heimatort des Weltmeisters und Olympiasiegers Stephan Eberharter, empfängt dich und deine Familie in idyllischer Atmosphäre und mit seinem traditionellen, zauberhaften Charakter. Der Ortskern von Stumm im Zillertal lädt zum Flanieren ein und charmante Geschäfte und Cafés mit herrlichen Sonnenterrassen bescheren dir einzigartige Erholungs-Momente in der Ferienregion Fügen-Kaltenbach.

Beschreibung der Immobilie

Traumhafte Wohnung (in zwei Einheiten abgetrennt) in Stumm zu kaufen

Neu und exklusiv bei SH-Immobilien GmbH - Traumhafte Wohnung (in zwei Einheiten abgetrennt) in Stumm zu kaufen



Diese Wohnung befindet sich im obersten Geschoss einer gepflegten Wohnanlage in zentraler und sonniger Lage von Stumm im Zillertal.



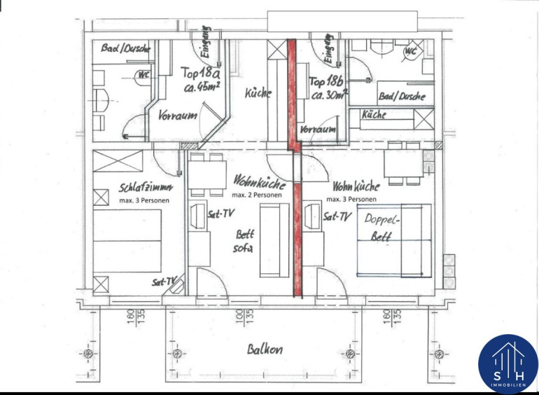
Auf ca. 75 m2 bietet die Wohnung zwei abgetrennte Wohnräume (Tops) mit inkl. 3 Zimmer. Sie können in einer Wohnung wohnen und die andere vermieten oder sie einfach zusammenführen bzw. öffnen, da sie nur mit Zwischentüren (lärmsicher) abgetrennt sind.



Die größere Einheit mit ca. 45 m2 hat ein eigenes WC mit Badewanne und Waschmaschinenanschluss, eine eigene Küche mit Wohnzimmer, ein großes Schlafzimmer sowie einen Balkon.



Die Einheit mit 30 m2 bietet ein eigenes WC mit Badewanne, eine eigene Küche mit Wohnzimmer sowie einen Balkon.



Ein Parkplatz ist bereits im Kaufpreis enthalten, ein weiterer Parkplatz kann für 10.000 Euro dazugekauft werden. Ebenso gehört ein Kellerabteil zur Wohnung. 



Wir freuen uns über Ihre Anfrage und stehen für weitere Fragen und Besichtigungen vor Ort sehr gerne zur Verfügung.



Ihr Ansprechpartner



Sebastian Haberl



0043/ 664 137 66 42


Hinweis gemäß Energieausweisvorlagegesetz: Ein Energieausweis wurde vom Eigentümer bzw. Verkäufer, nach unserer Aufklärung über die generell geltende Vorlagepflicht, sowie Aufforderung zu seiner Erstellung noch nicht vorgelegt. Daher gilt zumindest eine dem Alter und der Art des Gebäudes entsprechende Gesamtenergieeffizienz als vereinbart. Wir übernehmen keinerlei Gewähr oder Haftung für die tatsächliche Energieeffizienz der angebotenen Immobilie.


Der Vermittler ist als Doppelmakler tätig.

Infrastruktur / Entfernungen

Gesundheit
Arzt <500m
Apotheke <500m
Klinik <500m

Kinder & Schulen
Schule <500m
Kindergarten <500m

Nahversorgung
Supermarkt <500m
Bäckerei <500m

Sonstige
Bank <500m
Geldautomat <1.000m
Post <1.000m
Polizei <1.500m

Verkehr
Bus <500m
Bahnhof <1.000m

Angaben Entfernung Luftlinie / Quelle: OpenStreetMap

Eckdaten Objektnr. 1727/77

Art: Wohnung - Dachgeschoß
Land: Österreich
Baujahr: 2003
Zustand: Gepflegt
Alter: Neubau
Kaufpreis: 315.000,00
Provision: 3% des Kaufpreises zzgl. 20% USt.
Betriebskosten: 240,00 €
Wohnfläche: 75,00 m²
Zimmer: 3
Bäder: 2
WC: 2
Balkone: 1
Stellplätze: 2
Immobilie merken Exposé

Ausstattung

Estrichboden, Fliesen, Öl, Zentralheizung, Einbauküche, Badewanne, Dusche, Kabel/Satelliten-TV, Parkplatz, Wasch/Trockenraum


Immobilie anfragen


Ihre persönliche Beratung

SH-Immobilien GmbH

Sebastian Haberl

SH-Immobilien GmbH

H +43 664 137 66 42