Parkbad Krumpendorf in wenigen Minuten fußläufig erreichbar
Grundstück
- Baugrund Eigenheim,
9201
Krumpendorf
Beschreibung der Immobilie
Parkbad Krumpendorf in wenigen Minuten fußläufig erreichbar
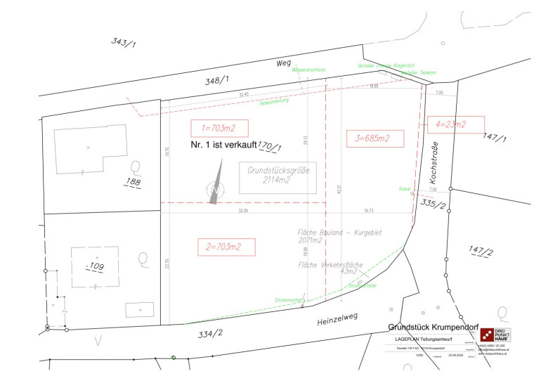
1 x mit ca. 703 m² am Lageplan als Grundstück 1 gekennzeichnet / Kaufpreis € 239.020,--
1 x mit ca. 703 m² am Lageplan als Grundstück 2 gekennzeichnet / Kaufpreis € 256.595,--
VERKAUFT 1 x mit ca. 685 m² am Lageplan als Grundstück 3 gekennzeichnet / VERKAUFT
Ebene Grundstücke - Die Teilung wird auf Kosten der Verkäufer durchgeführt
Die Widmung für dieses Grundstück ist Bauland-Kurgebiet mit einer GFZ von 0,6
Wasser, Strom und Kanal ist noch nicht am Grundstück aber in unmittelbarer Nähe vorhanden.
Krumpendorf ist eine idyllische Gemeinde in Kärnten, die für ihr malerisches Alpenpanorama und ihre ruhige Atmosphäre bekannt ist. Hier können Sie die Natur in vollen Zügen genießen und den Alltagsstress hinter sich lassen. Die Verkehrsanbindung ist ausgezeichnet, sodass Sie bequem mit dem Bus in die umliegenden Städte und Gemeinden gelangen können.
Aber auch in Krumpendorf finden Sie alles, was Sie für den täglichen Bedarf benötigen. Ein Arzt, eine Apotheke, eine Schule und ein Supermarkt sind in wenigen Minuten zu Fuß erreichbar. Sie müssen also nicht weit fahren, um alle wichtigen Einrichtungen zu erreichen.
Ein weiterer Vorteil dieses Grundstücks ist seine Vielseitigkeit. Sie können hier Ihr individuelles Traumhaus ganz nach Ihren Vorstellungen und Bedürfnissen planen und bauen lassen. Egal ob Sie sich für ein modernes Einfamilienhaus, eine gemütliche Doppelhaushälfte oder eine stilvolle Villa entscheiden, hier ist in Abstimmung mit der Gemeinde Krumpendorf vieles möglich. Lassen Sie Ihrer Kreativität freien Lauf und gestalten Sie Ihr neues Zuhause.
Das Grundstück bietet zudem ausreichend Platz für einen Garten. Genießen Sie Sommerabende auf Ihrer Terrasse oder gestalten Sie einen Gemüsegarten, um Ihr eigenes Obst und Gemüse anzubauen. Kinder haben hier genügend Platz zum Spielen und Toben, während Sie die Sonne und die frische Luft genießen.
Zögern Sie nicht länger und sichern Sie sich jetzt dieses Baugrundstück in Krumpendorf, Kärnten. Nutzen Sie diese Gelegenheit und verwirklichen Sie Ihren Traum vom Eigenheim in einer der schönsten Regionen Österreichs. Wir freuen uns auf Ihre Kontaktaufnahme und beraten Sie gerne bei allen Fragen rund um dieses Grundstück.
Die angegebenen Daten stammen vom Eigentümer und/oder Dritten und wurden mit Sorgfalt erhoben. Für die Richtigkeit und Vollständigkeit kann jedoch keine Haftung übernommen werden. Zahlenangaben können gegebenenfalls gerundet oder geschätzt sein. Das Anbot ist freibleibend und unverbindlich. Irrtümer und Änderungen sind vorbehalten.
Hinweis gemäß Energieausweisvorlagegesetz: Ein Energieausweis wurde vom Eigentümer bzw. Verkäufer, nach unserer Aufklärung über die generell geltende Vorlagepflicht, sowie Aufforderung zu seiner Erstellung noch nicht vorgelegt. Daher gilt zumindest eine dem Alter und der Art des Gebäudes entsprechende Gesamtenergieeffizienz als vereinbart. Wir übernehmen keinerlei Gewähr oder Haftung für die tatsächliche Energieeffizienz der angebotenen Immobilie.
Der Vermittler ist als Doppelmakler tätig.
Eckdaten Objektnr. 833
Art: | Grundstück - Baugrund Eigenheim |
Land: | Österreich |
Kaufpreis: | 239.020,00 € |
Provision: | 3% des Kaufpreises zzgl. 20% USt. |
Grundstücksfl.: | 703,00 m² |
Ihre persönliche Beratung

Hugo Ebner
Hugo Ebner Immobilien
H 0676 6330370